Leopoldstraße 57
Location

München, Germany

Building Type

Public buildings

Customer

Karl Glock GmbH - info@metallbau-glock.de - Dillinger Str. 45 - 86609 - Donauwörth - Germany - http://www.metallbau-glock.de/

Architect

Keil, Stoll und Partner - 80339 - München - Germany

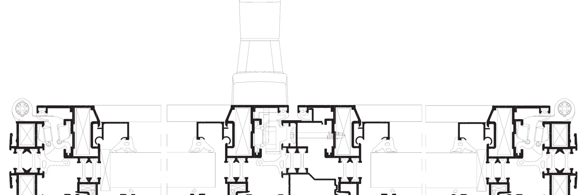
Used systems

Façades WICTEC, Windows WICLINE, Doors WICSTYLE

20_12_11 002.jpg

Façades WICTEC

WICTEC 50

Find more about WICTEC 50

WICTEC 50

Windows WICLINE

WICLINE 75 TOP

Find more about WICLINE 75 TOP

WICLINE 75 TOP

Doors WICSTYLE

WICSTYLE 75 evo

Find more about WICSTYLE 75 evo

WICSTYLE 75 evo

Other references

Other References Reference page

Centro Scolastico
Centro Scolastico
Ärztehaus Ulm
Ärztehaus Ulm
Hersfelder Kleiderwerke GmbH
Hersfelder Kleiderwerke GmbH

CONTACT US

Are you looking for professional advice? Do you have a suggestion that you would like to share with us? Get in contact with an expert by clicking on the link below.

Contact us