WICLINE 65 evo / 75 evo

An elegant appearance combined with efficient ventilation are the characteristics of the aluminium system WICLINE evo in its Italian opening version. Concealed friction stays ensure an outward opening also for large size sashes, with a secure opening fixation in any position. Special frame profiles for curtain wall integration as well as a large selection of friction stay sizes guarantee maximum versatility of the system.

Characteristics

System test results / CE product pass in accordance with EN 14351-1:2006+A2:2016

Air permeability
Water tightness
Resistance to wind load
Operating forces
Mechanical strength
Repeated opening / closing
Impact resistance
Quality assurance
Environmental management
Class 4
E1200
Class C5 / B5
Class 1
Class 4
Class 2 (10 000 cycles)
Class 3
Certified according to ISO 9001:2008
Certified according to ISO 14001

Technical performance

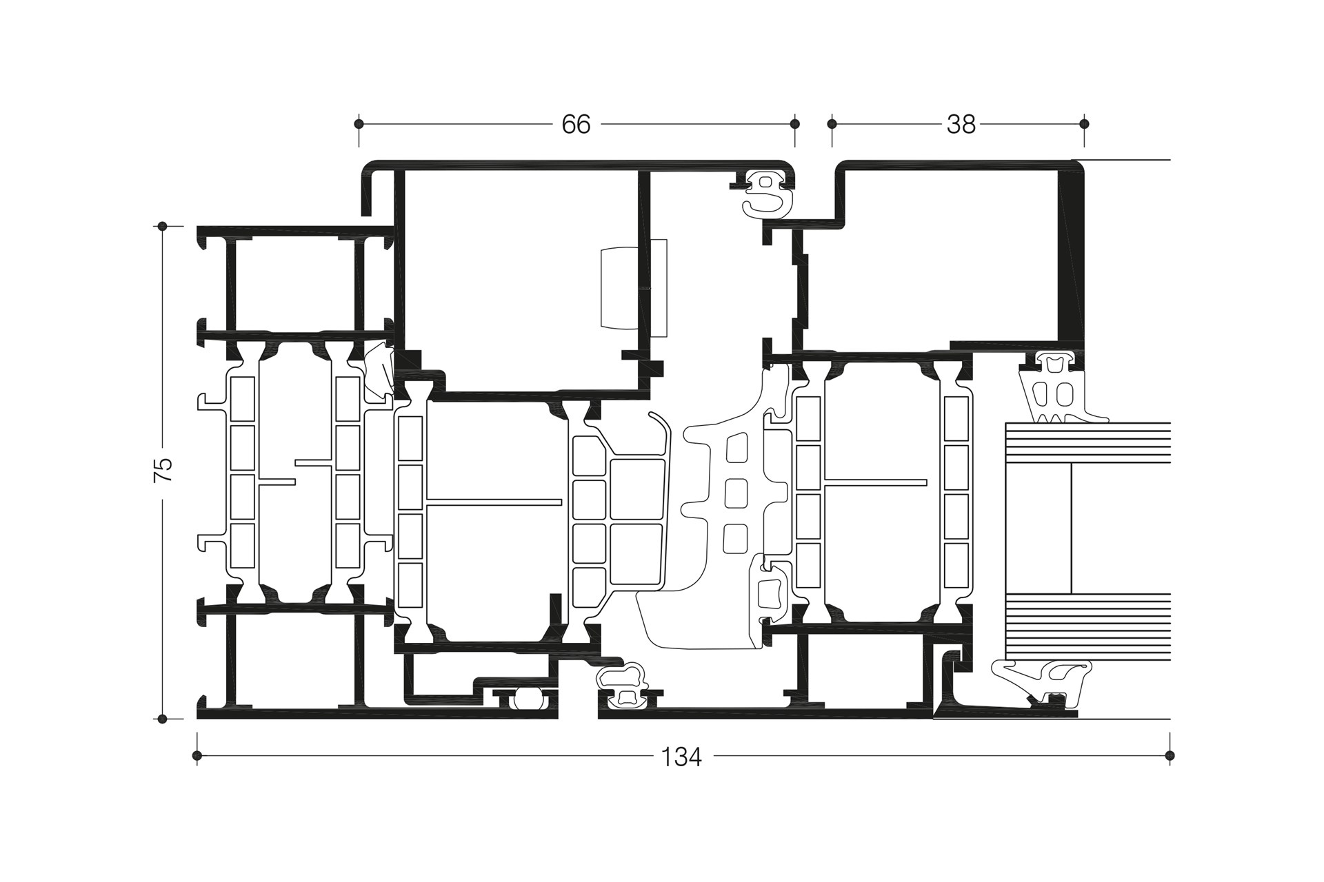
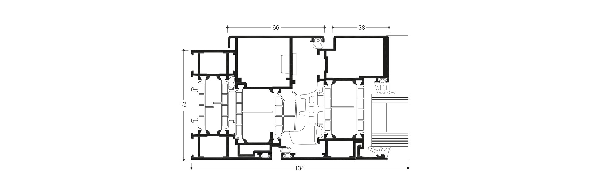
Profile technology

  • High insulation multi-chamber system in symmetric design, quality assured thermal insulator connection
  • Patented corner and butt joint connection technology for high rigidity of frames and sashes
  • Infill thickness up to 69 mm

Thermal insulation

  • Uf values: up to 1.5 W/(m²K)
  • Uw values: up to 1.0 W/(m²K) with triple glazing

Gasket concept

  • Centre gasket with formed corners

Hardware

  • Concealed friction stay fittings, with vertical adjustment
  • Operation either manual or motorised
  • Sash weight: up to 150 kg
  • Sash sizes (w x h): up to 2000 mm x 2200 mm

CONTACT US

Are you looking for professional advices? Do you have a suggestion you would like to share with us? Get in contact with expert by clicking on the link below.

Contact us