WICLINE 65 evo/75 evo
A sash opening towards the outside offers advantages like effec-tive ventilation, the choice between manual and motorised opera-tion, and avoids a disturbing sash towards the inside. With large sash dimensions available and optimised functionality WICLINE evo offers an interesting alternative opening type for architecture.
Documentation
Characteristics
System test results / CE product pass in accordance with EN 14351-1:2006+A2:2016
Air permeability
Water tightness
Resistance to wind load
Operating forces
Load bearing capacity of safety devices
Mechanical strength
Repeated opening / closing
Impact resistance
Quality assurance
Environmental management
Class 4
E1200
Class C5 / B5
Class 1
Fulfilled
Class 4
Class 2 (10 000 cycles)
Class 3
Certified according to ISO 9001:2008
Certified according to ISO 14001
Technical performance
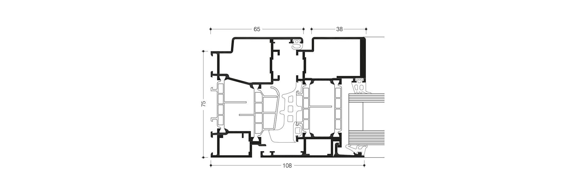
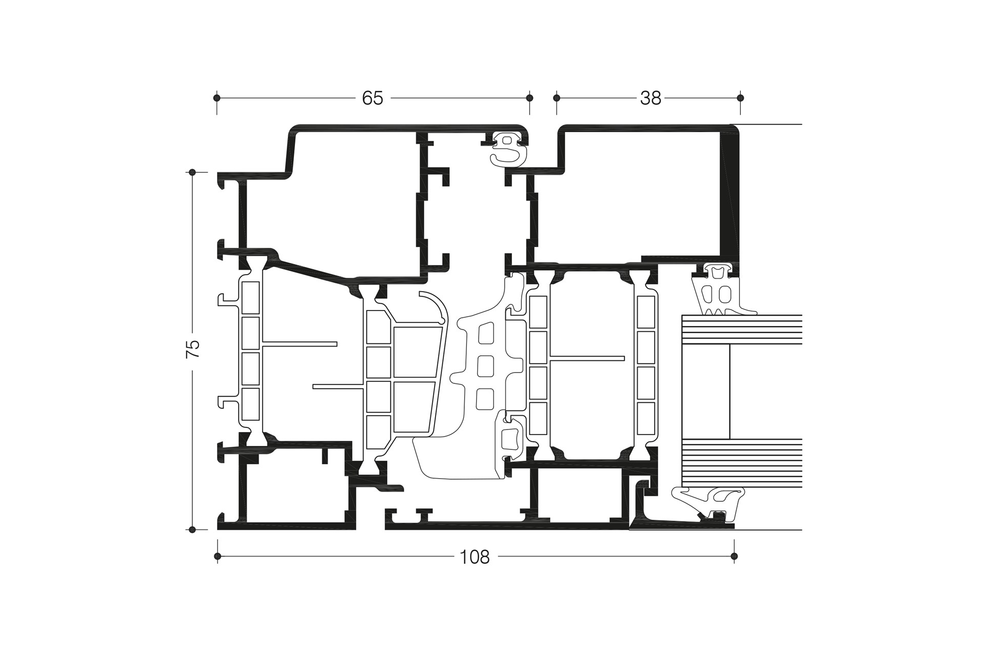
Profile technology
- High insulation multi-chamber system in symmetric design, quality assured thermal insulator connection
- Patented corner and butt joint connection technology for high rigidity of frames and sashes
- Infill thickness up to 69 mm
- Uf values up to 1.5 W/(m²K)
- Uw values up to 0.94 W/(m²K)
Gasket concept
- Centre gasket for superior tightness and improved thermal insulation
Hardware
- Externally applied turn hinges, either with
- top fixation for top-hung opening
- lateral fixation for side-hung opening
- Operation either manual or motorised
- Sash weight up to 150 kg
- Sash sizes (w x h): up to 2000 mm x 2000 mm




