WICSTYLE Burglar resistance
Personal security and building protection – for your building you need a solution approach which can be accomplished with aluminium systems in a wholistic and compatible way. This is achieved by the WICONA series for windows, curtain walls and doors. Each of them can provide in burglar resistance, in combination with other additional functions.
The various levels of resistance classes can be achieved with all WICSTYLE door series without visual alterations of the constructions, with only a minimum of additional measures on the basis of the standard design.
Documentation
Technical performance
- The currently valid standard for burglar resistance, DIN EN 1627, has come into effect in European countries in 2011 and 2012. It replaced former national standards. The classifications have been modi-fied to classes RC1N to RC3, which are not identical with the former classes WK1 to WK3, as the test sequences have been changed.
Test results of the WICONA door series
- The WICSTYLE 65 evo and WICSTYLE 75 evo door series with several variations have been tested according to the new standard DIN EN 1627. They can easily be specified and implemented without any additional measurement according to this new standard.
- The double leaf full panic doors have been successfully tested up to RC3
Burglar resistance according to DIN EN 1627 resp. DIN 1627 / classifications
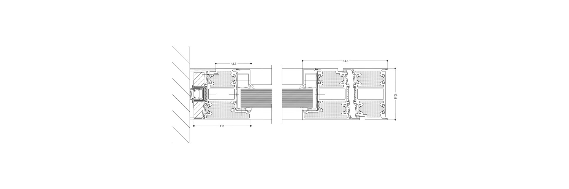
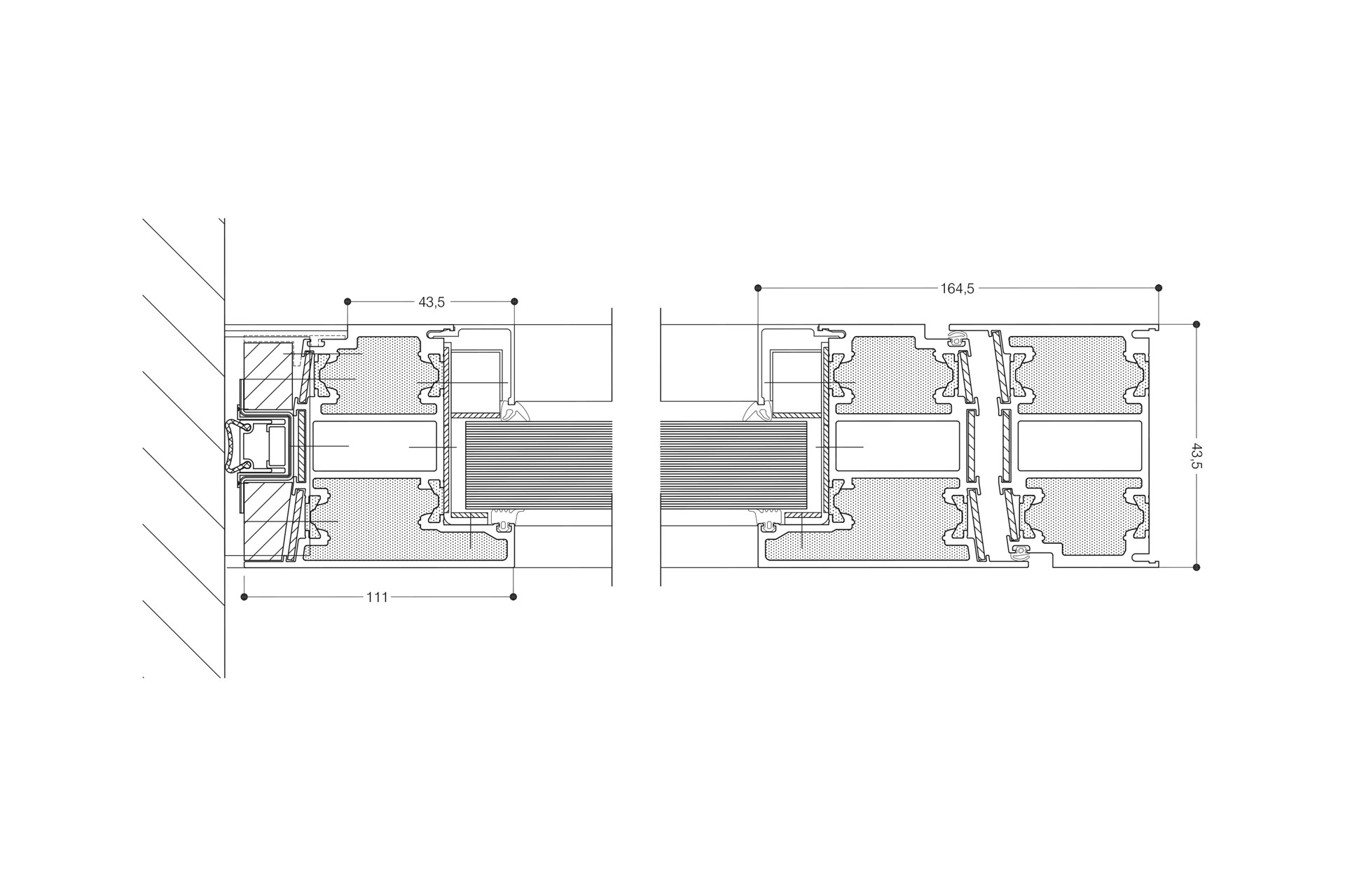
WICSTYLE 65 evo / 75 evo Hinged doors
WICSTYLE 65 evo / 75 evo Classic design
WICSTYLE 65N, non-insulated
RC1N, RC2N, RC2, RC3
RC1N, RC2N, RC2, RC3
WK1, WK2


