WICLINE Burglar resistant

Personal security and building protection – for your building you need a solution which can be accomplished with aluminium systems in a wholistic and compatible way. This is achieved by the WICONA series for windows, curtain walls and doors. Each of them can provide burglar resistance, in combination with other additional functions. The various levels of resistance classes can be achieved with all WICLINE window series without visual alterations of the constructions, with only a minimum of additional measures on the basis of the standard design.
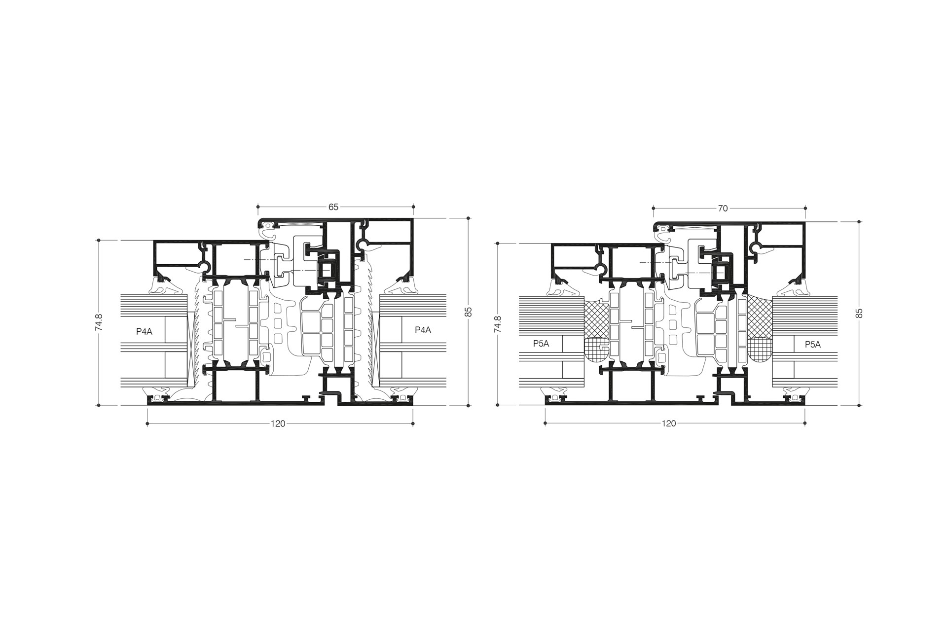
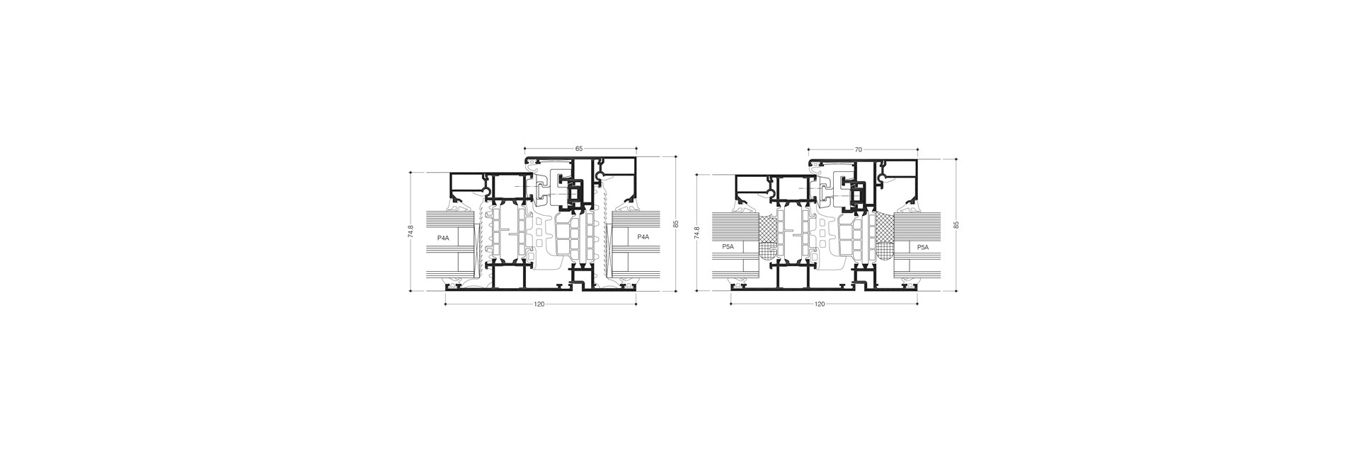
WICLINE 75 evo RC2 / WICLINE 75 evo RC3
WICLINE 75 evo RC2 / WICLINE 75 evo RC3
WICLINE 75 evo RC2 / WICLINE 75 evo RC3

Technical performance

Burglar resistance according to EN 1627

  • The currently valid standard for burglar resistance, EN 1627, has come into effect in European countries in 2011 and 2012. It replaced former national standards. The classifications have been modified to classes RC1N to RC3, which are not identical with the former classes WK1 to WK3.

Test results of the WICONA window series

  • The new WICLINE 65 evo and WICLINE 75 evo series with several variations have been tested according to the new standard EN 1627. They can easily be specified and implemented without any additional measurement according to this new standard.

Burglar resistance according to EN 1627 resp. DIN 1627 / classifications

WICLINE 65 evo / 75 evo Turn / turn-tilt / tilt / tilt- first / double casement
WICLINE 65 evo / 75 evo Fanlight
WICLINE 65 evo / 75 evo Concealed sash
WICLINE 65 evo / 75 evo Classic design
WICLINE 95 Turn/ Turn-tilt/ Tilt/ Tilt-first/ Fanlight
WICLINE 115 AFS Turn/ Turn-tilt/ Tilt/ Tilt-first/ fixed field
RC1N, RC2N, RC2, RC3
RC1N, RC2N, RC2, RC3
RC1N, RC2N, RC2, RC3
RC1N, RC2N, RC2, RC3
RC1N, RC2N, RC2, RC3
RC1N, RC2N, RC2, RC3

CONTACT US

Are you looking for professional advices? Do you have a suggestion you would like to share with us? Get in contact with expert by clicking on the link below.

Contact us