
Location
Roquebillière, France
Year
2016
Building Type
Cultural&leisure
Architect
Coste Architecture - Paris - France & Chevalier-Triquenod - Nice - France
Customer
Difral - Carros - France
Other planning committee
Hervé Fabre - Photographe - France
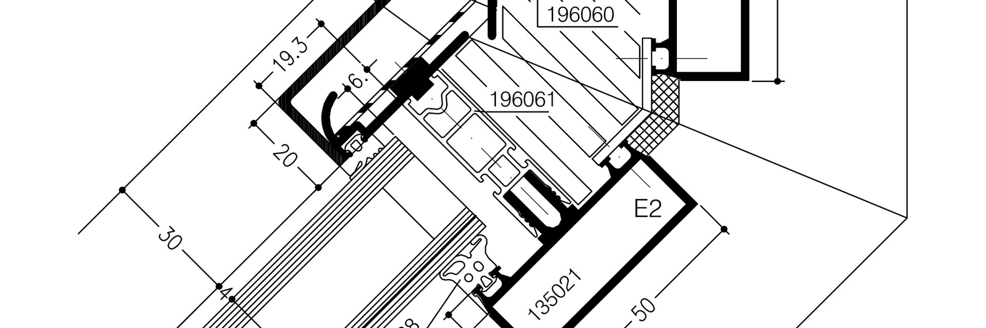
Used systems
Façades WICTEC, Sliders WICSLIDE, Doors WICSTYLE




















