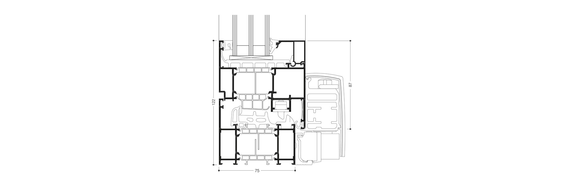
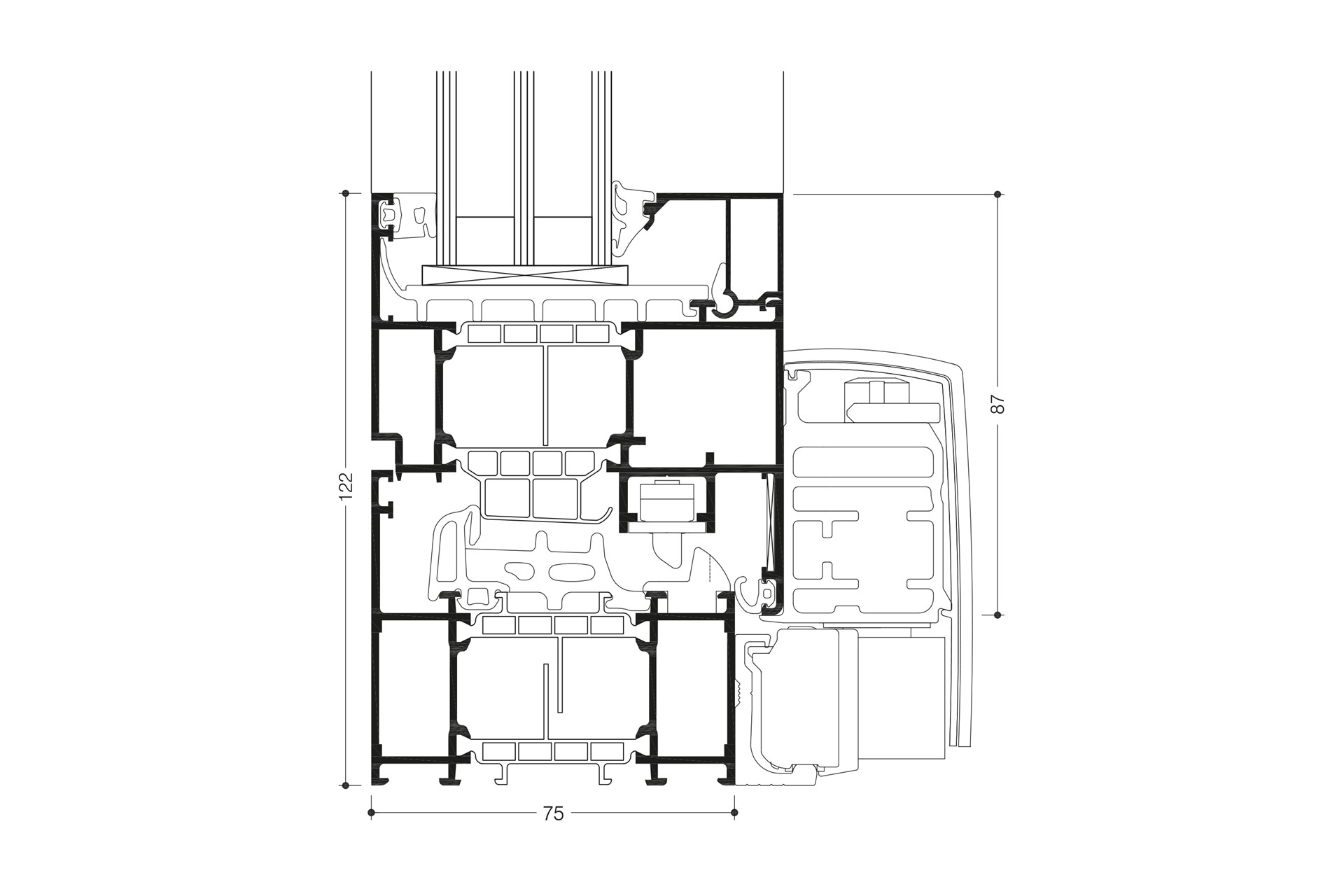
WICLINE 65 evo / 75 evo
In this space saving opening version the sash can be tilted or slid away to the side with ease. High operation comfort, secure ventilation positioning and the high technical performance values are characteristic for this opening type of the WICLINE evo aluminium window system.
Documentation
Characteristics
System test results / CE product pass in accordance with EN 14351-1:2006+A2:2016
Air permeability
Water tightness
Resistance to wind load
Operating forces
Mechanical strength
Repeated opening / closing
Quality assurance
Environmental management
Class 4
E750
Class C5 / B5
Class 1
Class 4
Class 2 (10 000 cycles)
Certified according to ISO 9001:2008
Certified according to ISO 14001


