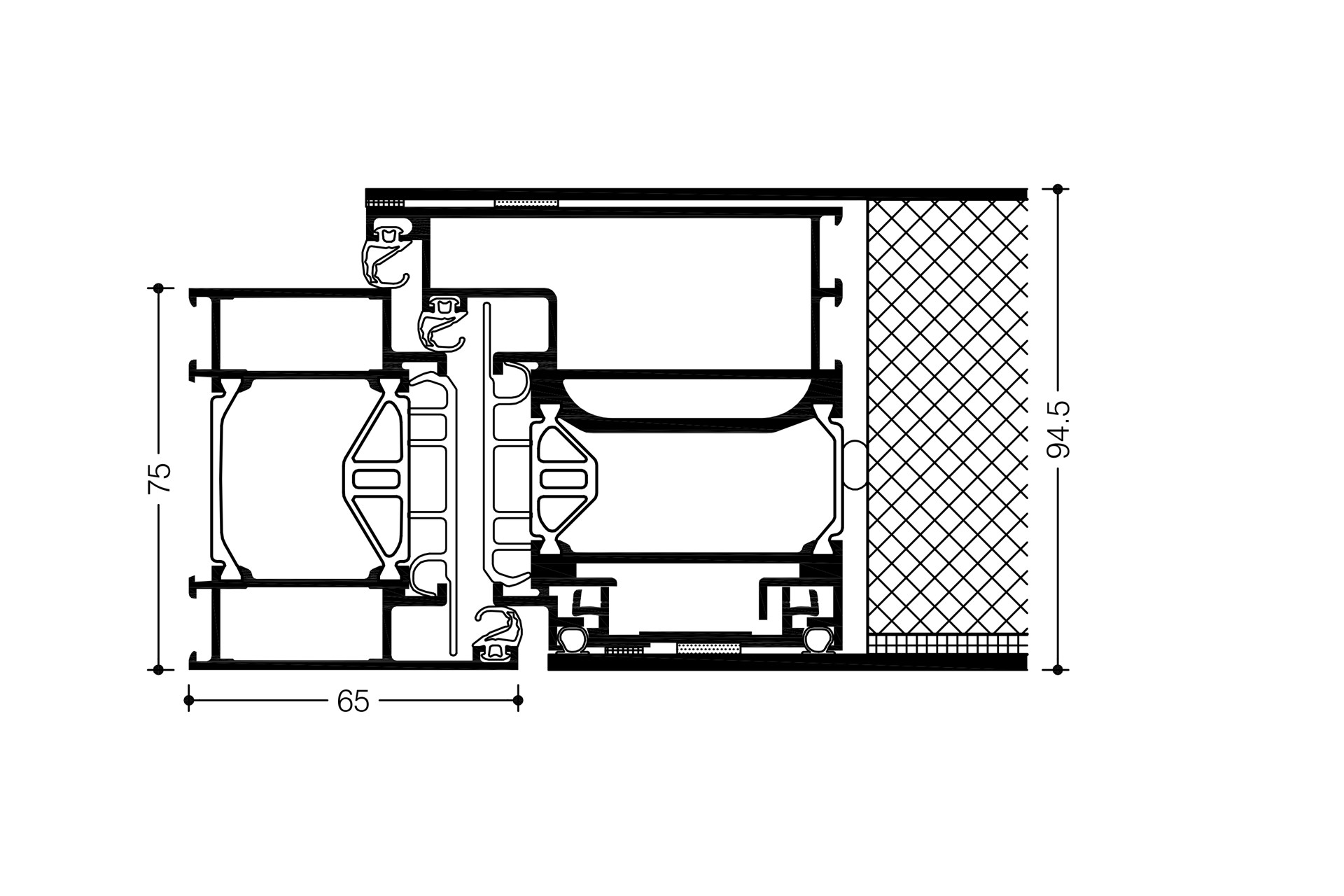
WICSTYLE 75 evo
Complete system for single- and double-leaf doors, which can be both inward or outward opening. With its smooth rebated cover profile, it doesn‘t just deliver on looks, but its seamless design offers an easy cleaning solution.
Characteristic design using profile covering infills. With this patented solution, WICONA introduces an innovative front door to meet the highest demands of design and energy efficiency. Besides giving the leaf covering the desired visually harmonious effect, this construction also reduces deformation of the doors leaves to a minimum using the bi-metal effect.
Documentation
Characteristics
System test results / CE product pass in accordance with EN 14351-1:2006+A2:2016
Air permeability
Water tightness
Resistance to wind load
Operating forces
Behaviour between different climates
Burglar resistance
Class 2
Up to class 5A
Class C2
Class 5
Up to class 2(d) / 3(e)
RC3


