WICLINE 65 evo / 75 evo Dold båge
Alternativet med dold båge i aluminiumfönstersystemet WICLINE, erbjuder en speciell glasfals som är placerad direkt i isolerzonen. Som ett resultat av detta utförande ger systemet en extremt tunn siktlinje, utmärkta värmeisoleringsegenskaper samt en slät design från utsidan. Det förbättrade förhållandet mellan profil och glas ger systemet ett väldigt bra Uw-värde, ökat ljusinsläpp samt panoramaeffekter.
Dokumentation
Egenskaper
Systemtestresultat / CE produktöversikt enligt SS-EN 14351-1:2006+A2:2016
Luftpermeabilitet
Vattentäthet
Vindmotstånd
Manövreringskrafter
Lastkapacitet av säkerhetsanordningar:
Mekanisk styrka
Upprepning öppna/stänga
Slagmotstånd
Korrosionsbeständighet hos beslag
Inbrottsskydd
Kvalitetssäkring
Miljöpåverkan
Klass 4
E1200
Klass C5 / B5
Klass 1
Uppfylld
Klass 4
Klass 2 (10 000 cykler)
Klass 3
Klass 5
RC1N, RC2N, RC2, RC3
Certifierad enligt SS-EN ISO 9001:2008
Certifierad enligt SS-EN ISO 14001
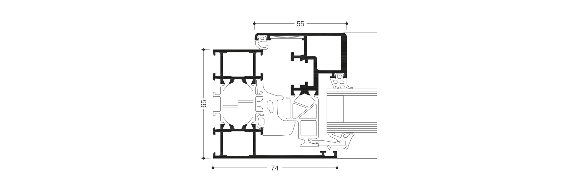
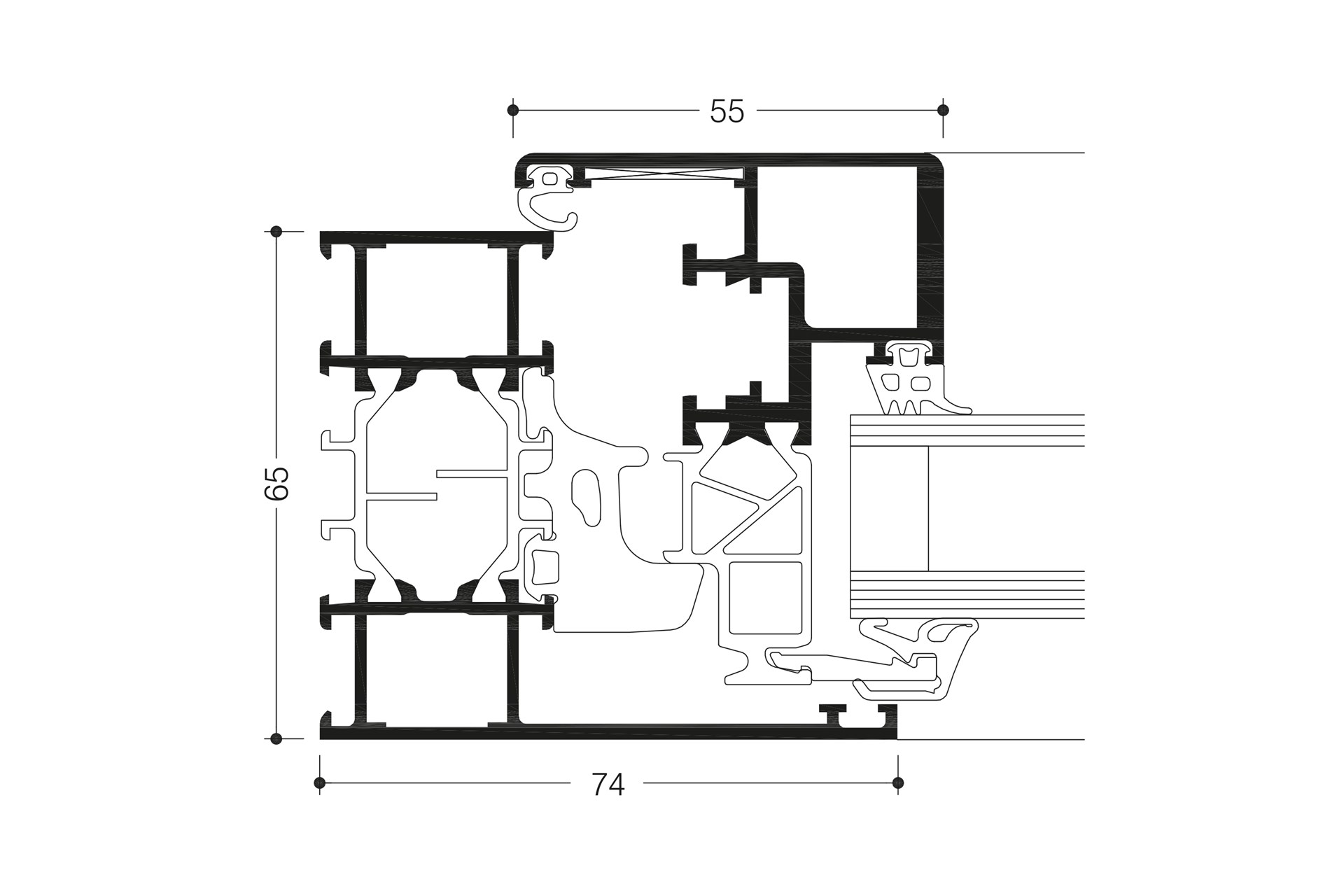
Teknisk beskrivning
Profilernas uppbyggnad
- Högisolerat flerkammarsystem i symmetrisk design, kvalitetssäkrad anslutning mellan skalprofiler och isolator
- Patenterad hörn- och spröjsförbindning för hög stabilitet i karmar och bågar
- Fyllningstjocklekar upp till 42 mm
- Valmöjlighet med integrerad karm i fasadsystem
Värmeisolering
- Uf-värden: ner till 1.5 W/(m²K)
- Uw-värden: ner till 0.94 W/(m²K) med 3-glas
Tätningskoncept
- Centrerad mittätning i tre utföranden:
- Genomgående mittätning, inga anslutningar i hörnen
- Hörnartiklar för att undvika limning i hörnen
- Vulkaniserade ramar
Beslag
- Lättmanövrerade systembeslag:
- Dolda gångjärn, med integrerad dämpning vid maximal öppningsvinkel, 105°
- Bågvikter:
- Dolda gångjärn: upp till 130 kg
- Bågstorlekar (b x h): 1400 mm x 2250 mm
- Öppningsbegränsare i olika utföranden finns att välja till
Alternativa utföranden
- Integrerad i fasadsystem
- Överljus
- Inbrottsskydd (se separata systemtester)
Nu också tillgänglig med WICONAs prisbelönta dolda handtag i kombination med profil: 1010615, 1010616 and 1010632.


