WICLINE 65 evo
Avancerad teknik och ett omfattande profilsortiment gör aluminiumfönstersystemet WICLINE 65 till ett perfekt allround fönster med ett mångsidigt applikationsspektrum. Med ett konstruktionsdjup på endast 65 mm uppfyller detta system höga krav på termisk prestanda och ljudisolering.
Dokumentation
Egenskaper
Systemtestresultat / CE produktöversikt enligt SS EN 14351-1:2006+A2:2016
Luftpermeabilitet
Vattentäthet
Vindmotstånd
Ljudprestanda
Manövreringskrafter
Lastkapacitet av säkerhetsanordningar:
Mekanisk styrka
Upprepning öppna/stänga
Korrosionsbeständighet hos beslag
Inbrottsskydd
Skottskydd
Kvalitetssäkring
Miljöpåverkan
Klass 4
E900
Klass C5 / B5
Rw (C; Ctr) = 47 (–1; –4) dB
Klass 1
Uppfylld
Klass 4
Klass 3 (20 000 cykler)
Klass 5
RC1N, RC2N, RC2, RC3
FB4 S, FB4 NS (beroende på glas)
Certifierad enligt SS-EN ISO 9001:2008
Certifierad enligt SS-EN ISO 14001
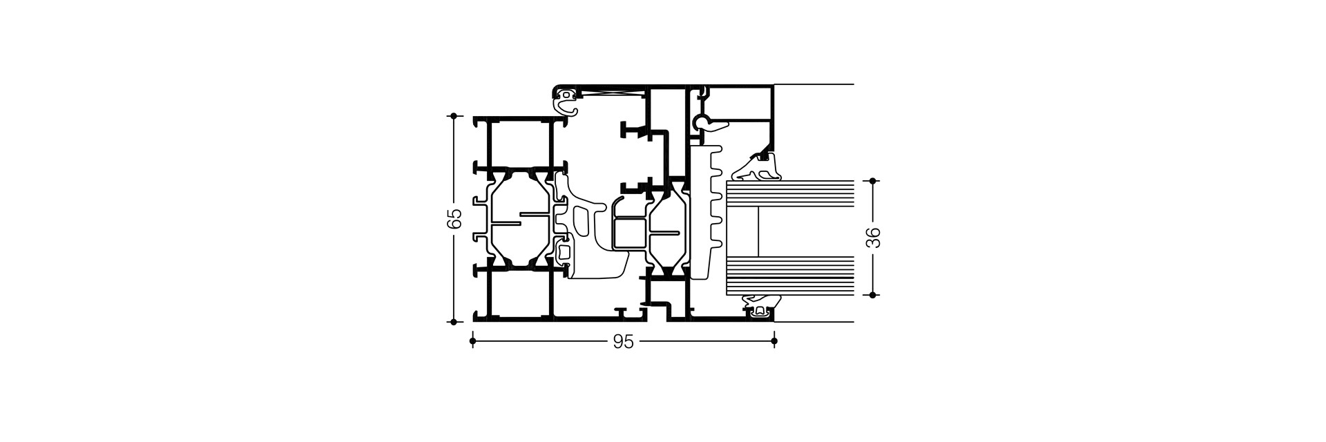
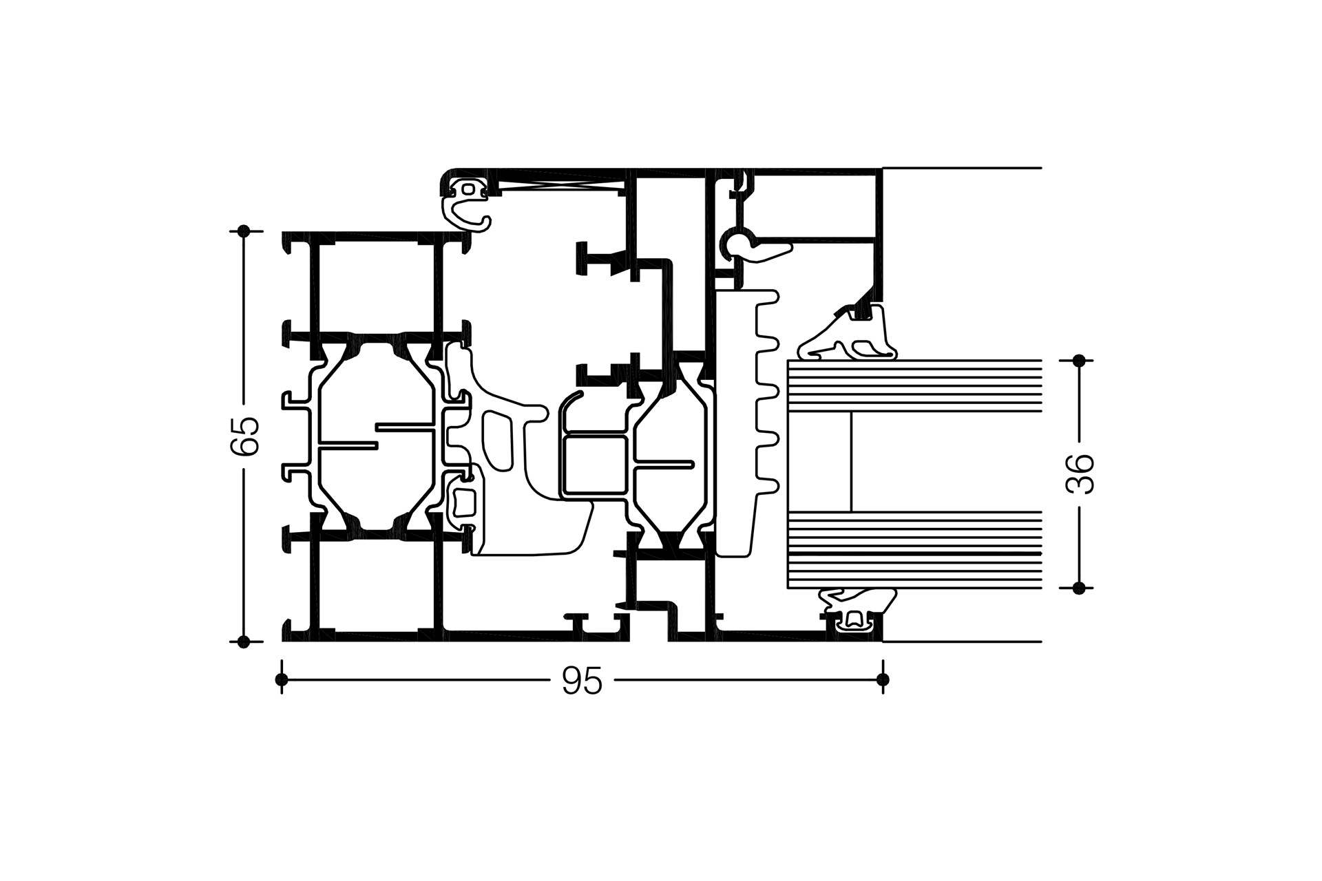
Teknisk beskrivning
Profilernas uppbyggnad
- Högisolerat flerkammarsystem i symmetrisk design, kvalitetssäkrad anslutning mellan skalprofiler och isolator
- Patenterad hörn- och spröjsförbindning för hög stabilitet i karmar och bågar
- Fyllningstjocklekar upp till 59 m
Värmeisolering
- Uf värden ner till 1.4 W/(m²K)
- Uw värden ner till 0.93 W/(m²K) med 3-glas
Tätningskoncept
- Centrerad mittätning i tre utföranden:
- Genomgående mittätning, inga anslutningar i hörnen
- Hörnartiklar för att undvika limning i hörnen
- Vulkaniserade ramar
Beslag
- Lättmanövrerade systembeslag, alternativt:
- Synliga gångjärn, anodiserade eller lackerade i valfri kulör
- Dolda gångjärn, med integrerad dämpning vid maximal öppningsvinkel, 105°
- Bågvikter:
- Synliga sido-vrid beslag: upp till 160 kg
- Dolda sido-vrid beslag: upp till 200 kg
- Sidobeslag (på begäran): upp till 300 kg
- Bågstorlekar (b x h): upp till 1700 mm x 2500 mm
- Öppningsbegränsare i olika utföranden finns att välja till
Öppningstyper, utåtgående
- Topphängt fönster
- Sidohängt fönster
- Topphängt fönster med saxbeslag (Senk-klapp)
Beslag
- Synliga beslag för topp- eller sidohängda
- Dolda beslag för topp-hängda med saxbeslag (Senk-klapp)
- Bågvikter: upp till 150 kg
- Bågstorlekar (b x h): upp till 2000 mm x 2000 mm
- Exempel på standardbåge
- Exempel på blockfönster (dold båge)
Kompatibla med dörrserien WICSTYLE 65 evo och WICSTYLE 75 evo

