WICTEC 50A
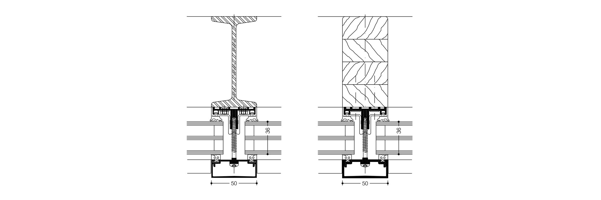
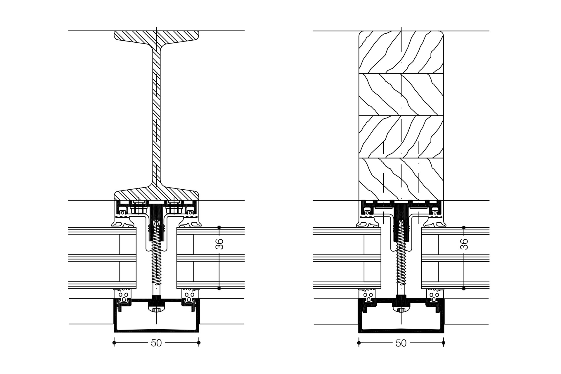
I vissa fall kan det, av estetsiska eller funktionella anledningar, vara fördelaktigt att göra en glasfasad där stommen är av till exempel trä eller stål. WICTEC 50A är ett system som gör det möjligt genom att man fi xerar glaset direkt på en sådan konstruktion. WICTEC 50A erbjuder möjligheter med ett stort urval av konstruktionsmaterial såsom aluminium, stål eller limträ, alla med identiskt exteriört utseende och samma glasningsteknik som för en standardfasad.
Egenskaper
Systemtestresultat / CE produktöversikt enligt SS-EN 13830
Luftpermeabilitet
Vattentäthet
Vindmotstånd
Slagmotstånd
Inbrottsskydd
Skottskydd
Kvalitetssäkring
Miljöpåverkan
Klass AE
RE 1200
2000 / –3200 Pa, Säkerhet 3000 / –4800 Pa
Klass E5 / I5
RC1N, RC2N, RC2
FB4
Certifierad enligt ISO 9001:2008
Certifierad enligt ISO 14001
Teknisk beskrivning
Systembredd
Stomkonstruktions bredd
Stomkonstruktionens material
50 mm
från 50 mm
Limträ, Stålrör, Öppna stålprofiler
System
- Fritt val av stomkonstruktionsmaterial, välj mellan limträ och stål. Konstruktionsbredd från 50 mm
- Samma systemprofi l för hela adapterfasaden, både vertikalt och horisontellt
- Överlappning via vertikala och horisontella tätningsartiklar i olika dräneringsnivåer
- Enkel och effektiv monteringsteknik av aluminiumprofi lerna genom skruvning
- Alternativt, lätt fi xering med ståldubbar för montering i stålprofi ler med godstjocklek från 4 mm
- Optimal för 3D konstruktioner, glastak och rymliga volymkonstruktioner
- Glasning utifrån med synliga eller dolda skruvar


