PROJECT DETAILS
The Fulmar Building is part of a collection of buildings within an extensive project by property developer Knight Dragon, and aimed to create a new and vibrant district on the Greenwich Peninsula. This building was constructed by Kier under a Design & Build Contract with DSDHA being the architectural Consultant responsible for taking forward the original masterplan, while Glasssolutions - part of the Saint-Gobain group supplied and installed the fenestration package.
The Fulmar Building has a distinctive form generated by the irregular plot shape, which follows the sweep of one of the primary streets nearby.
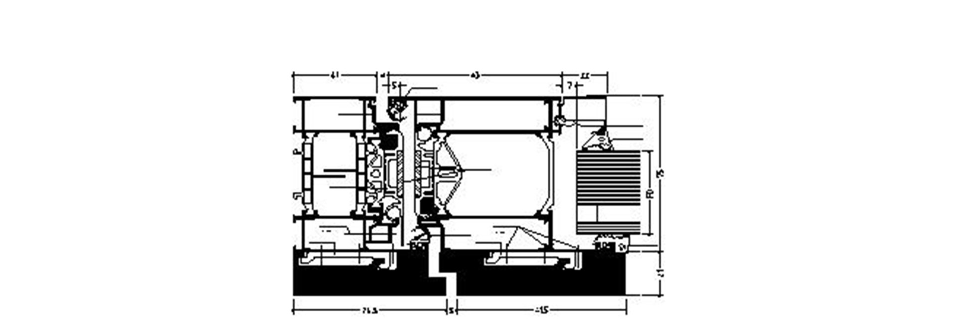
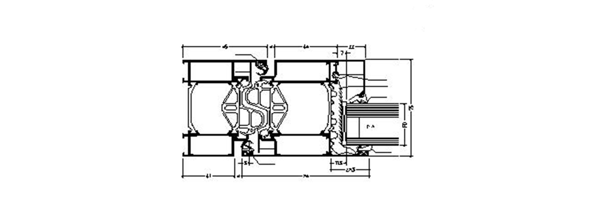
Forming a key aspect of the design response, WICONA systems fabricated specifically for this project include WICTEC curtain walling, concealed WICLINE side-hung windows, WICSTYLE doors and WICLINE 160 units. All systems chosen offer slim sightlines, high security and a long low-maintenance life.
The WICLINE system offers both aesthetic flexibility and a high level of functionality, allowing the specifier to optimise energy performance, acoustic insulation and security. Like the other WICONA systems it is compatible with the WICTEC façade options which extend from the classic stick assemblies to unitised and even structural glazed elevations. Compliant with the EN13830 standard for curtain walling, WICTEC is fully tested for weather resistance and fire performance, and is readily adaptable to almost any architectural style thanks to the ready availability of diverse profile types.
This project was one of three major buildings in phase two of the development focused around the historic Thames coal jetty, the Fulmar comprises 139 residential units and over 200 square metres of commercial space, plus private amenity space and public realm, car and cycle parking.


















