
Location
Sindelfingen, Germany
Year
2009
Building Type
Office buildings
Architect
Schwarz Architekten - 70469 - Stuttgart - Germany
Customer
Dodel Metallbau GmbH - 89079 - Ulm - Germany - http://www.dodel-metallbau.de/
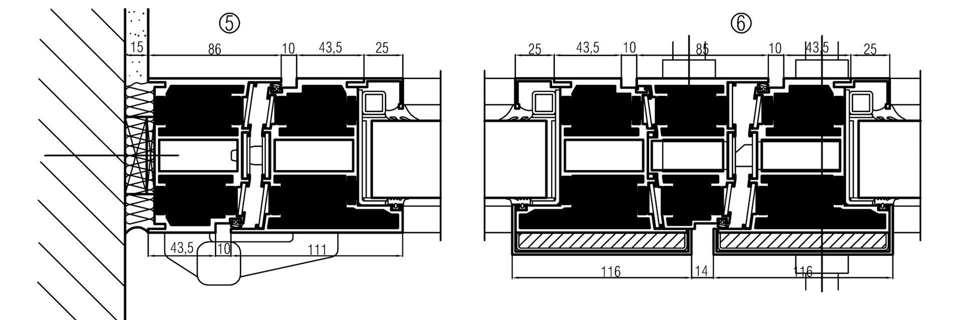
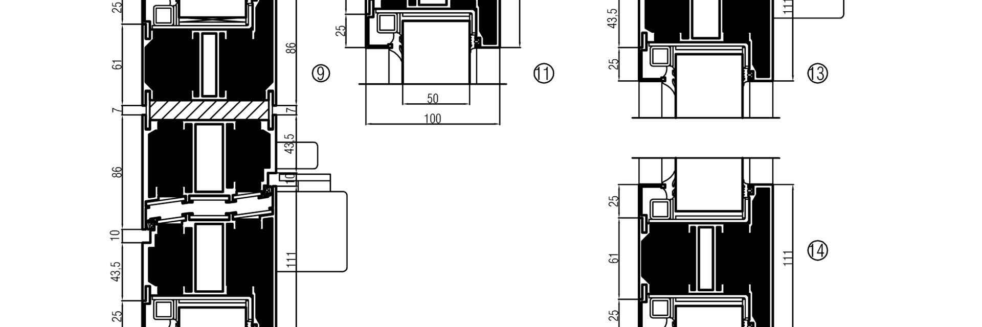
Used systems
Doors WICSTYLE, Windows WICLINE, Sliders WICSLIDE






























