
Location
Tours, France
Year
2014
Building Type
Office buildings
Architect
Boille & Associés - lavat@boille-associés.com - 43, rue Edouard Vaillant - 37015 - Tours - France - http://www.boille-associés.com/
Customer
Société Duval Métalu - 155 Rue Isaac - 72000 - Le Mans - France - http://www.duval-metalu.fr/
Other planning committee
Maitre D'ouvrage - ARTPROM - 13, rue Edouard Vaillant - 37015 - Tours - France - http://www.artprom.fr/ & Photographe - Xavier Benony - France
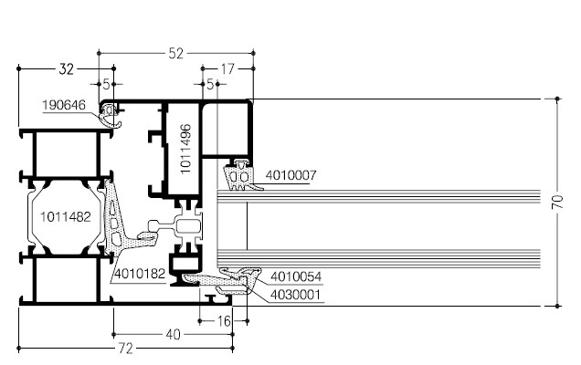
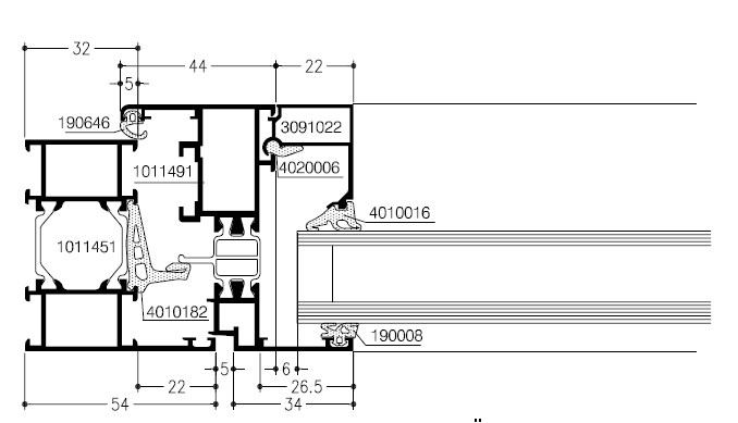
Used systems
Windows WICLINE, Façades WICTEC, Doors WICSTYLE


















