
Location
Eugendorf, Austria
Year
2019
Building Type
Sales facilities
Customer
Metallbau Brandauer / Russbach
Other planning committee
Kuhn Gruppe & Bau- und Immobilienunternehmen Hillebrand
Architect
_
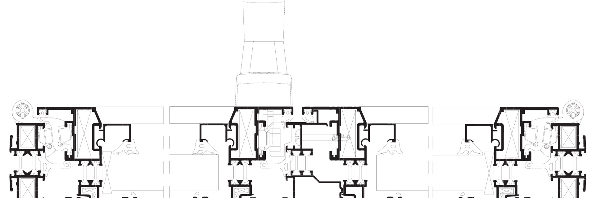
Used systems
Façades WICTEC, Windows WICLINE, Doors WICSTYLE
































