WICLINE Skottskydd
Personsäkerhet och byggnadsskydd, för din byggnad behöver du en komplett lösningsmetod som kan åstadkommas med ett omfattande och enhetligt aluminiumsystem. Det kan uppnås med WICONA byggsystem för fönster, fasader och dörrar. Alla kan utföras med skottskydd i kombination med andra funktioner. De olika säkerhetsklasserna kan uppnås på otaliga WICLINE profi lkombinationer, endast genom att lägga till ett standardutförande av yttre skydd i aluminium.
Dokumentation
Teknisk beskrivning
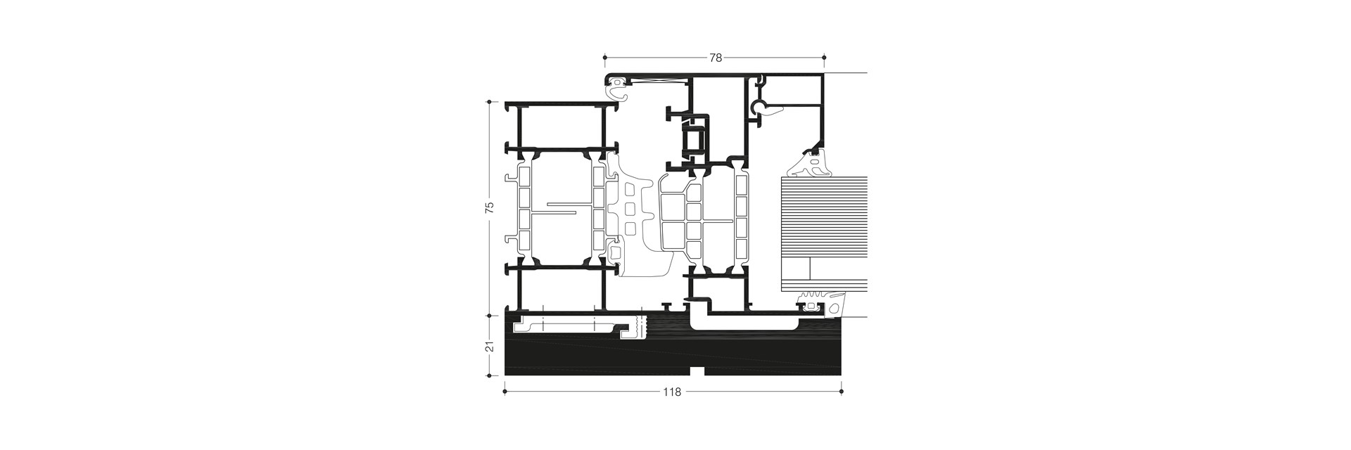
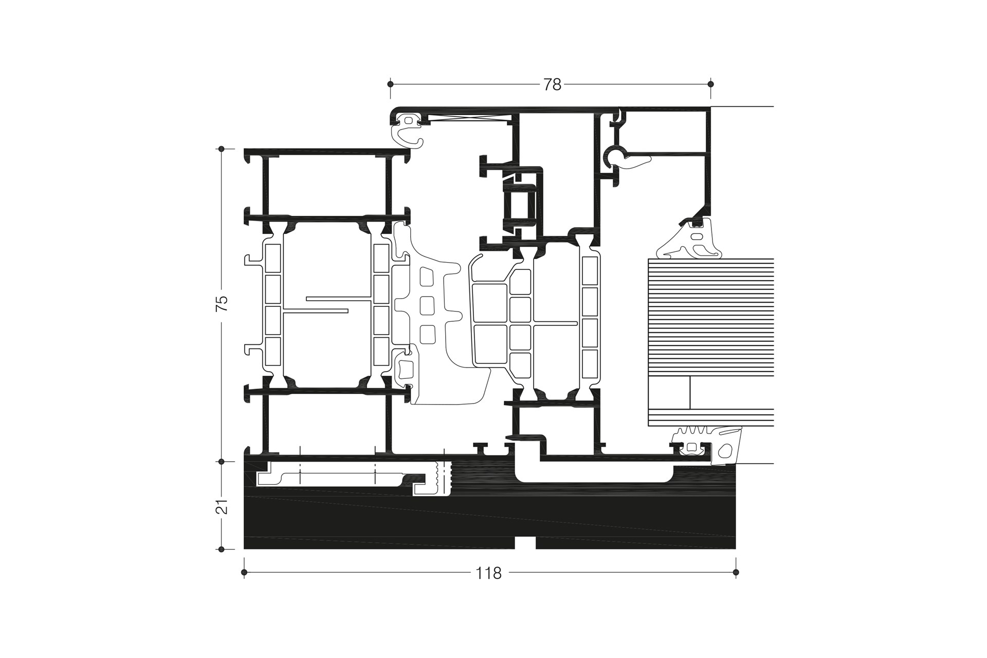
Skottskydd enligt SS-EN 1522:
- Den gällande standarden för skottskydd på fönster, SS-EN 1522, gäller i samtliga europeiska länder
- De nya fönsterserierna, WICLINE 65 och WICLINE 75, med fl ertal variationsmöjligheter har framgångsrikt testats enligt den nya standarden SS-EN 1522 och klarat klasserna FB4 S och FB4 NS
- Skottskydd kan kombineras med inbrottsskydd enligt SS-EN 1627 i klasserna RC1N, RC2N, RC2 och RC
Skottskydd enligt SS-EN 1522
WICLINE 65 evo / 75 evo Turn / turn-tilt / tilt / tilt-first / double casement
WICLINE 65 evo / 75 evo Fanlight
FB4 S / FB4 NS
FB4 S / FB4 NS
Möjliga kombinationer med andra WICONA produktserier med skottskyddsklass FB4:
- Dörrsystem WICSTYLE 65 evo / WICSTYLE 75 evo
- Fasadsystem WICTEC 50


