WICLINE Inbrottsskydd
Personsäkerhet och byggnadsskydd, för din byggnad behöver du en komplett lösningsmetod som kan åstadkommas med ett omfattande och enhetligt aluminiumsystem. Det kan uppnås med WICONA byggsystem för fönster, fasader och dörrar. Alla kan utföras med inbrottsskydd i kombination med andra funktioner. De olika säkerhetsklasserna kan uppnås på samtliga WICLINE fönsterserier, utan synliga variationer i konstruktionen och endast med små tillägg på standardutförandet.
Dokumentation
Teknisk beskrivning
Inbrottsskydd enligt SS-EN 1627:
- Den gällande standarden för inbrottsskydd, SS-EN 1627, har aktualiserats i alla europeiska länder under 2011 och 2012. Den ersätter de tidigare nationella standarderna. Klasserna har ändrats till RC1N till RC3. Dessa är dock inte identiska med de tidigare klasserna, WK1 till WK3, då även testerna har ändrats.
Testresultat för WICONA fönstersystem
- De nya WICLINE 65 evo och WICLINE 75 evo serierna med fl ertal variationsmöjligheter har testats enligt den nya standarden SS-EN 1627. De kan enkelt specifi ceras och implementeras utan några ytterligare tester enligt denna nya standard.
Inbrottsskydd enligt SS-EN 1627
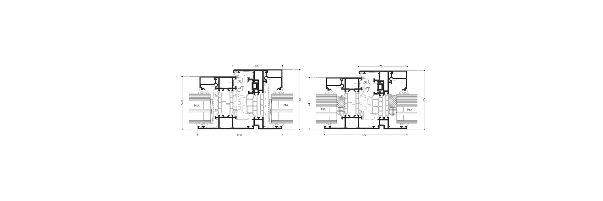
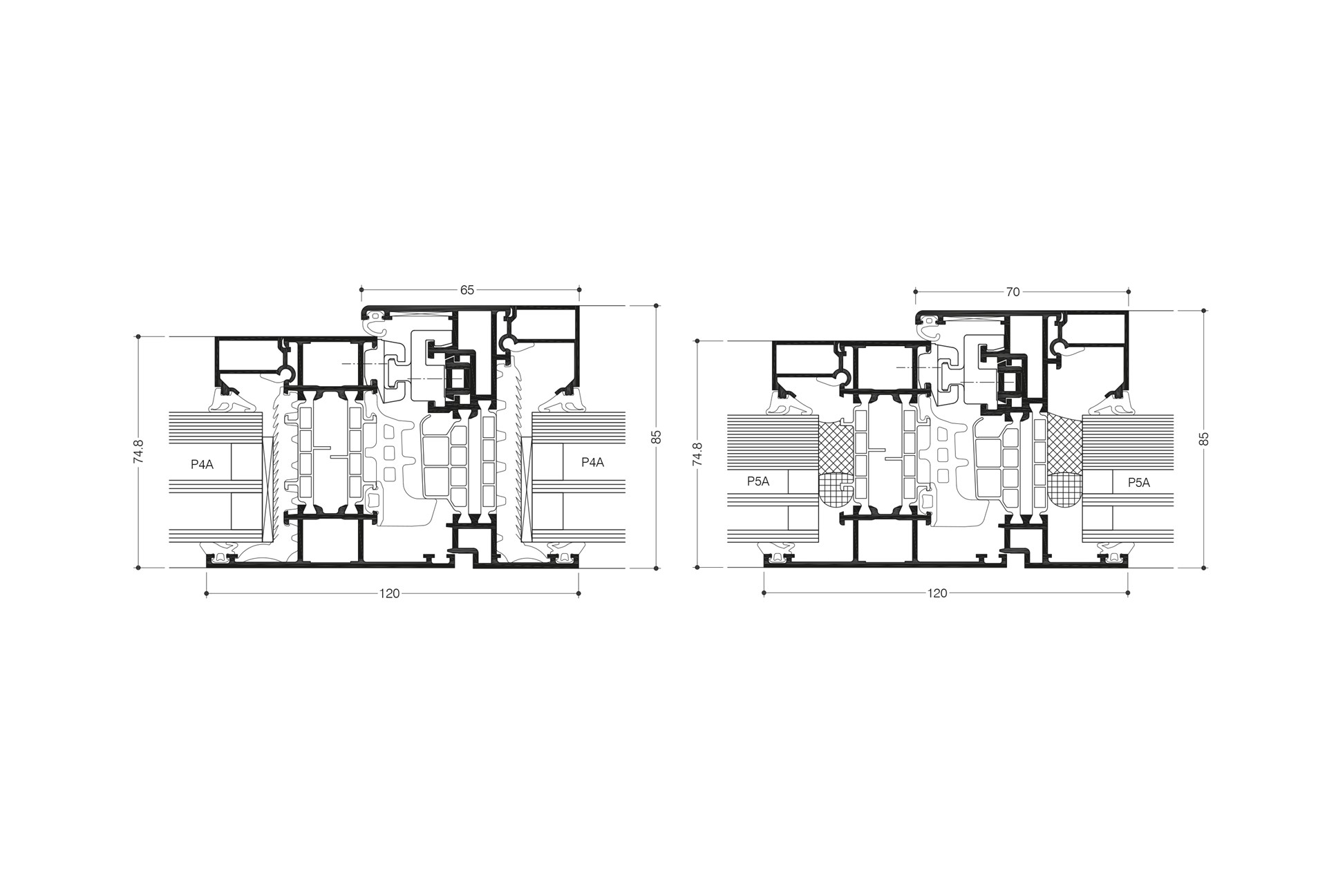
WICLINE 65 evo / 75 evo Turn / turn-tilt / tilt / tilt- first / double casement
WICLINE 65 evo / 75 evo Fanlight
WICLINE 65 evo / 75 evo Concealed sash
WICLINE 65 evo / 75 evo Classic design
WICLINE 95 Turn/ Turn-tilt/ Tilt/ Tilt-first/ Fanlight
WICLINE 115 AFS Turn/ Turn-tilt/ Tilt/ Tilt-first/ fixed field
RC1N, RC2N, RC2, RC3
RC1N, RC2N, RC2, RC3
RC1N, RC2N, RC2, RC3
RC1N, RC2N, RC2, RC3
RC1N, RC2N, RC2, RC3
RC1N, RC2N, RC2, RC3


