WICLINE 95
Fönstersystemet WICLINE 95 uppfyller de högsta kraven från Passivhaus-Institut Dr. Feist i Darmstadt och erbjuder tack vare sin intelligenta modulprincip maximal flexibilitet vid projektplanering. Värmeisolatorn knäpps enkelt fast, vilket väsentligt förenklar både produktion och installation, och gör att fönstrets Uf-värde kan anpassas efter varje specifikt projekt.
Dokumentation
Egenskaper
Systemtestresultat / CE produktöversikt enligt SS EN 14351-1:2006+A2:2016
Luftpermeabilitet
Vattentäthet mot regn
Vindmotstånd
Ljudisolering
Manövreringskrafter
Mekanisk styrka
Kontinuerlig drift
Korrosionsbeständighet hos beslag
Inbrottsskydd
Kvalitetssäkring
Klass 4
E900
Klass C5/B5
Rw (C;Ctr) = 47 (-1;-4) dB
Klass 1
Klass 4
Klass 3 (20 000 cykler)
Klass 5
RC1N, RC2N, RC2, RC3
Certifierad enligt SS EN ISO 9001:2008
Teknisk beskrivning
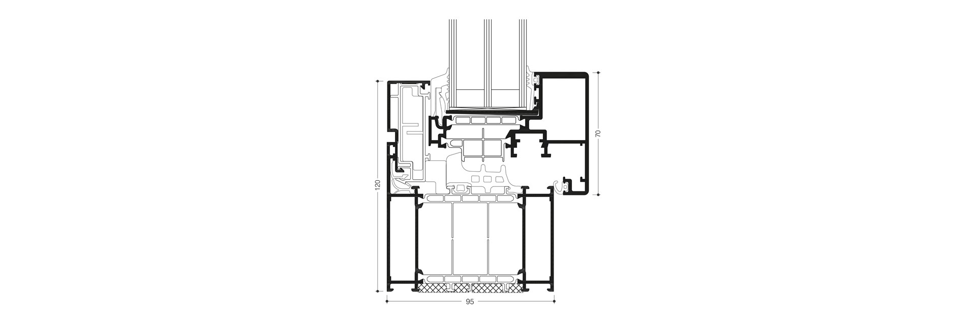
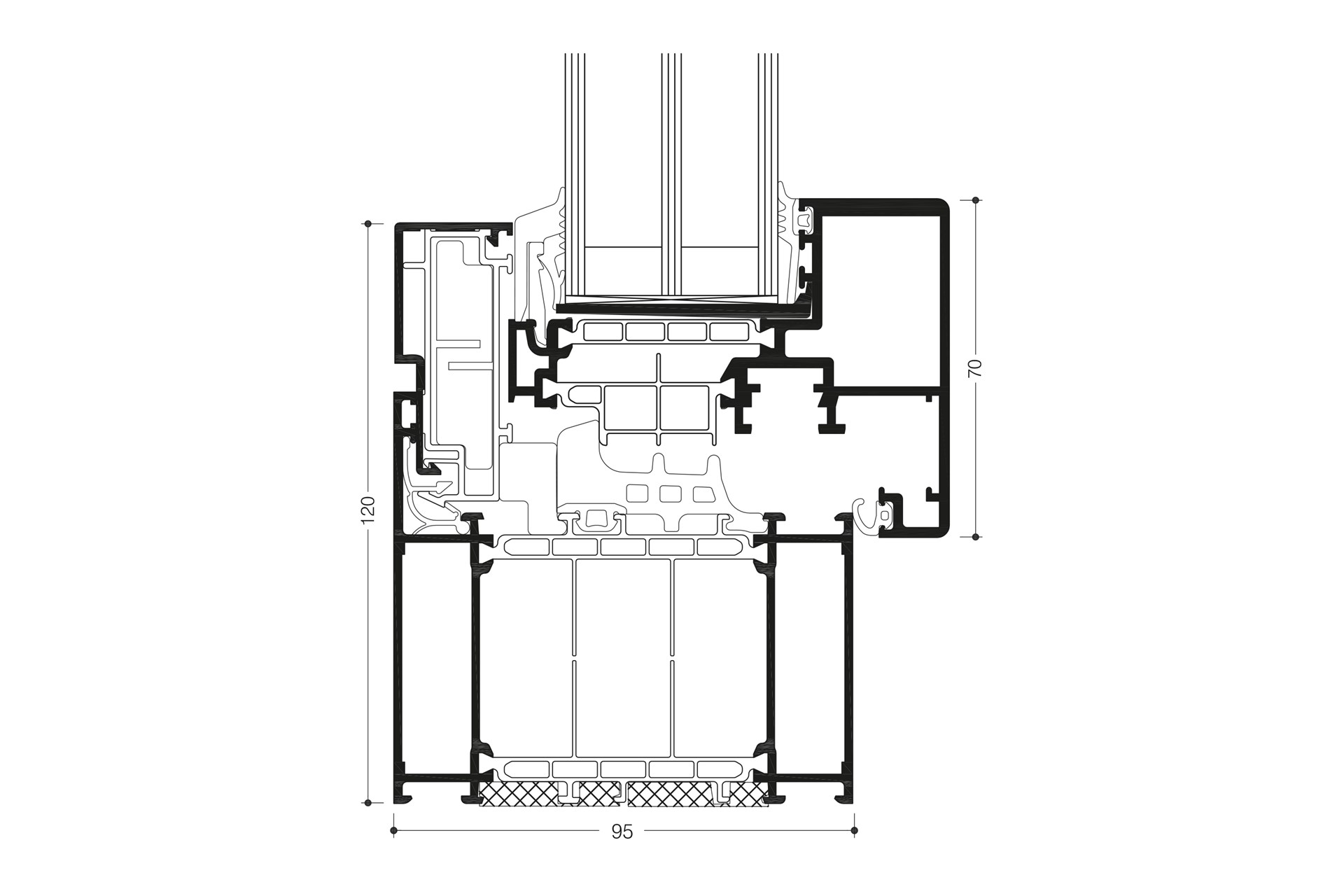
Profilernas uppbyggnad
- Högisolerat flerkammarsystem med ETC Intelligence isolersteg, passivhuscertifierad enligt energiklass phB
- Patenterad hörn- och spröjsförbindning för hög stabilitet i karmar och bågar
- Fyllningstjocklek 55 mm
Värmeisolering
- Uf -värde: 0,68 till 0,91 W/(m²K)
- Passivhuscertifierad enligt energiklass phB,
- Uw och Uf = 0,80 W/(m²K)
Tätningskoncept
- Centrerad mittätning i tre utföranden:
- Genomgående mittätning, inga anslutningar i hörnen
- Hörnartiklar för att undvika limning i hörnen
- Vulkaniserade ramar
Beslag
- Lättmanövrerade, dolda beslag, alternativt:
- Synliga gångjärn, anodiserade eller lackerade i valfri kulör
- Dolda gångjärn med integrerad dämpning, vid maximal öppningsvinkel 100°
- Bågvikter:
- Dolda gångjärn: upp till 160 kg
- Synliga gångjärn: upp till 160 kg
- Bågstorlekar (B x H): upp till 1300 mm x 2250 mm
- Öppningsbegränsare finns som tillval
Systemkombinationer
- WICLINE 95 kan med tilläggskarm integreras i WICTEC fasader


