WICLINE 115 AFS
Med det nya kopplade fönstersystemet WICLINE 115 AFS erbjuds arkitekter, konstruktörer och producenter den optimala lösningen för komplexa projekt med särskilt höga krav på termisk prestanda, ljudisolering och solskydd. Fönstersystemet är anpassat både för nybyggnation och renovering.
WICLINE 115 AFS fönstersystem kombinerar en interiör fönsterbåge med en exteriör, vilket skapar en isolerspalt mellan bågarna. Konstruktionen ger en väsentlig förbättring av systemets termiska och ljudisolerande prestanda - helt utan tilläggsisolering.
Dokumentation
Egenskaper
Systemtestresultat / CE produktöversikt enligt EN 14351-1:2010-08
Värmeisolering Uf
Värmeisolering Uw
Ljudisolering
Lufttäthet
Vattentäthet
Vindmotstånd
Mekanisk hållbarhet
Hållbarhet upprepad öppning
Standard
EN ISO 10077-2
EN ISO 10077-1
EN ISO 717-1
EN 12207
EN 12208
EN 12210
EN 13115
EN 12400
Klass
1.1 – 1.3 W/(m²K)
under 0.80 W/(m²K)*
upp till 50 (-1;-4) dB
4
upp till E1200
upp till C5/B5
upp till 4
upp till 3
Teknisk beskrivning
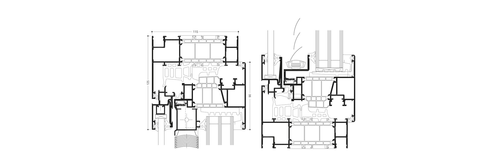
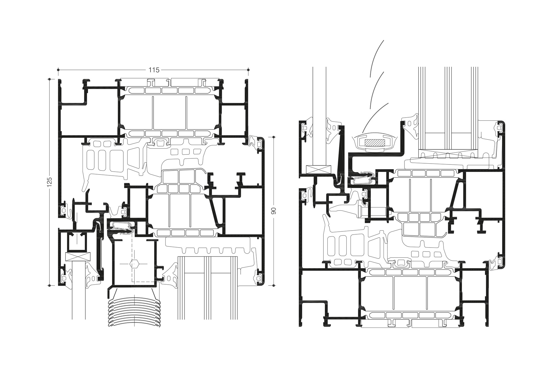
Profilernas uppbyggnad
- Profildjup: 115 mm
- Siktlinje: 125 eller 135 mm
- Fyllningstjocklek upp till 48 mm (58 mm) och upp till 100 mm (fast fält)
- Tryckkompensation mellan yttre och inre fönsterbågen
- Optimerad prestanda förhindrar kondens i konstruktionen, säkerställt av CSTB Institute i Frankrike (Centre Scientifique et Technique du Bâtiment)
- Integrerat och dolt persiennsystem som skyddas mot väderförhållanden och smuts, inget insläpp av dagsljus vid sidorna
- Högsta manövreringskomfort
- Enkelt montage, underhåll och rengöring genom en separat manövrerad yttre fönsterbåge
- Valbar fönsterbåge med universal zon för solskydd
Siktlinje profiler
- Karmprofil från 84 mm upp till 94 mm
- Transomprofil från 128 mm upp till 158 mm
- Fönsterbåge profil 35 mm
Värmeisolering
- Uw-värde under 0.80 W/(m²K) med ett karmdjup på 115 mm och en slimmad siktlinje på enbart 125 mm, dimensioner 1,230 mm x 1,480 mm och Ug = 0.60 W/(m²K), 0.031 W/(mK) psi
Ljudisolering
- Upp till 50 dB
(ljudisolerat glas inre båge, enkelglas yttre båge) - Upp till 43 dB
(isolerglas inre båge, enkelglas yttre båge)
Beslag
- Högkvalitativa, dolda beslagkomponenter med DPS (Direkt Positioneringssystem).
- Bågvikt för dolda gångjärn upp till 160 kg, för synliga gångjärn upp till 200 kg
- Bågvikt upp till 200 kg
- Bågstorlek (b x h): upp till 1,200 mm x 2,500 mm
Öppningsvarianter
- Sidohängt, dreh-kipp, underkantshängt, tilt-first

