WICLINE Skottskydd
Personsäkerhet och byggnadsskydd, för din byggnad behöver du en komplett lösningsmetod som kan åstadkommas med ett omfattande och enhetligt aluminiumsystem. Det kan uppnås med WICONA byggsystem för fönster, fasader och dörrar. Alla kan utföras med skottskydd i kombination med andra funktioner. De olika säkerhetsklasserna kan uppnås på otaliga WICLINE profi lkombinationer, endast genom att lägga till ett standardutförande av yttre skydd i aluminium.
Dokumentation
Egenskaper
Systemtestad / CE produktöversikt enligt EN 14351-1:2006+A2:2016
Generell information
Se klassifikationer på respektive WICLINE fönstersystem.
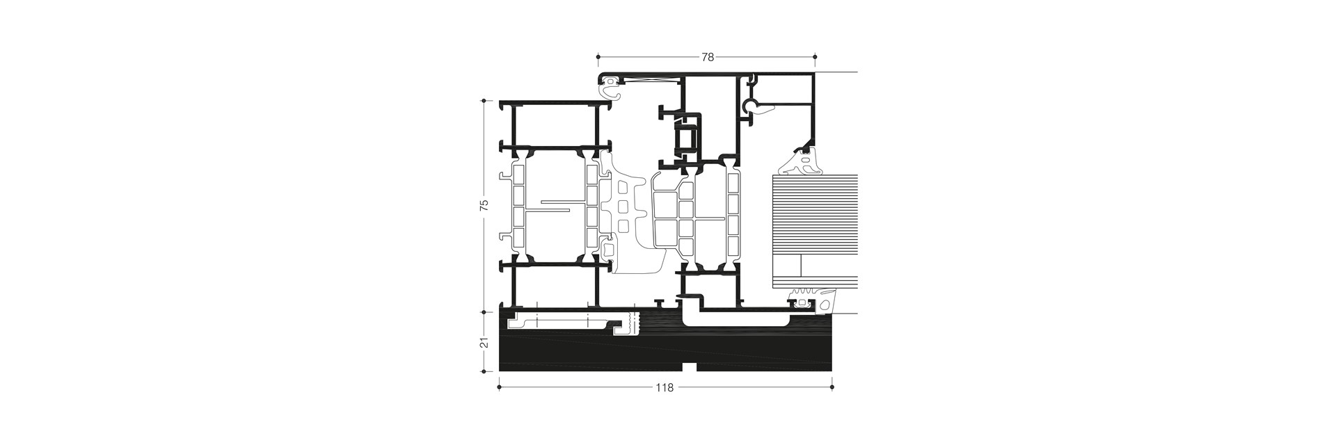
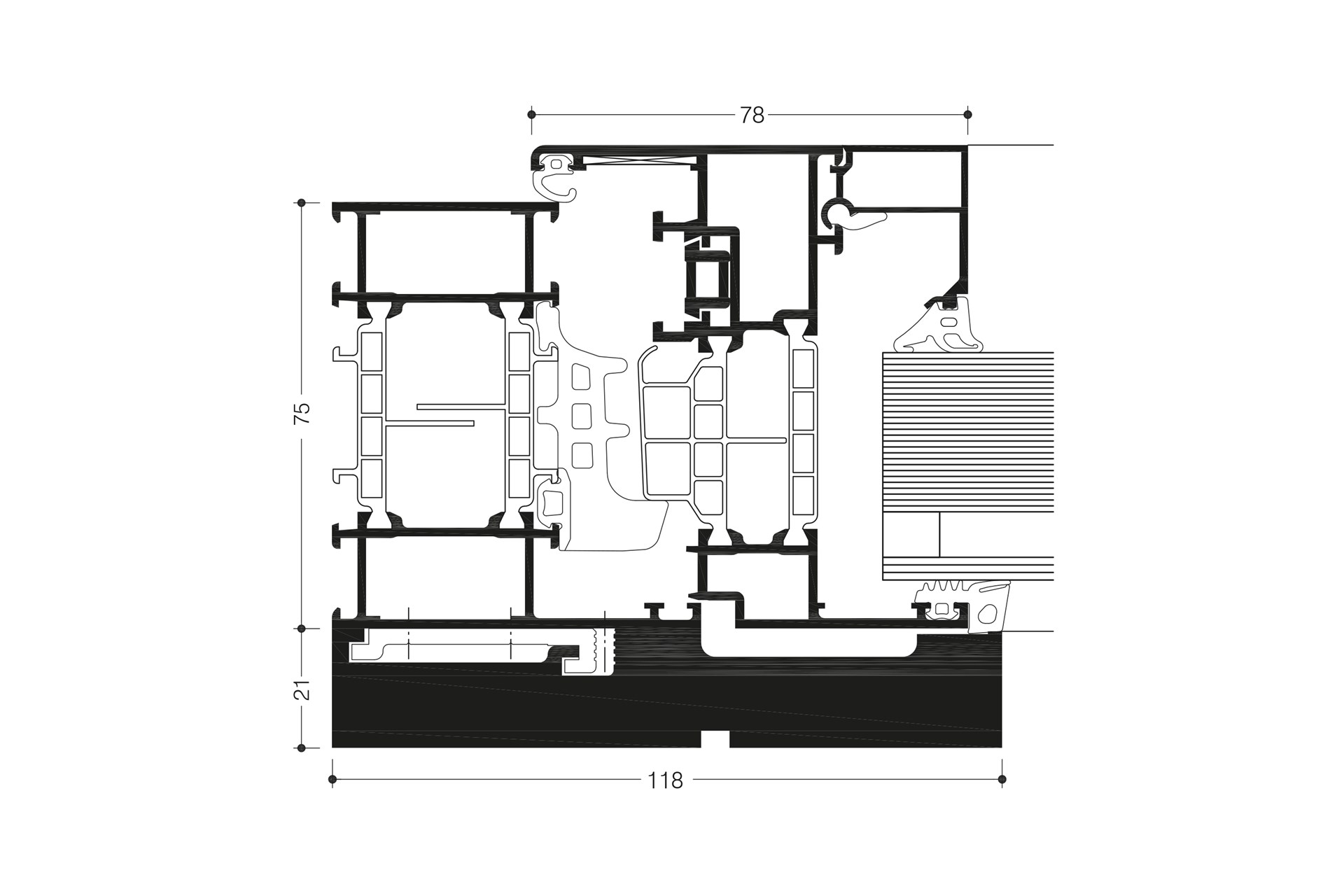
Teknisk beskrivning
Skottskydd enligt SS-EN 1522
- Den gällande standarden för skottskydd på fönster, SS-EN 1522, gäller i samtliga europeiska länder
- De nya fönsterserierna, WICLINE 65 och WICLINE 75, med flertal variationsmöjligheter har framgångsrikt testats enligt den nya standarden SS-EN 1522 och klarat klasserna FB4 S och FB4 NS
- Skottskydd kan kombineras med inbrottsskydd enligt SS-EN 1627 i klasserna RC1N, RC2N, RC2 och RC
Skottskydd enligt SS-EN 1522
WICLINE 65 / 75 Sidohängda, dreh-kipp, underkantshängda, dubbla
WICLINE 65 / 75 Överljus
FB4 S / FB4 NS
FB4 S / FB4 NS
Möjliga kombinationer med andra WICONA produktserier med skottskyddsklass FB4
- Dörrsystem WICSTYLE 65 / WICSTYLE 75
- Fasadsystem WICTEC 50


