WICLINE Inbrottsskydd
Personsäkerhet och byggnadsskydd, för din byggnad behöver du en komplett lösningsmetod som kan åstadkommas med ett omfattande och enhetligt aluminiumsystem. Det kan uppnås med WICONA byggsystem för fönster, fasader och dörrar. Alla kan utföras med inbrottsskydd i kombination med andra funktioner. De olika säkerhetsklasserna kan uppnås på samtliga WICLINE fönsterserier, utan synliga variationer i konstruktionen och endast med små tillägg på standardutförandet.
Dokumentation
Egenskaper
Systemtestresultat / CE produktöversikt enligt SS-EN14351-1:2006+A2:2016
Generell information
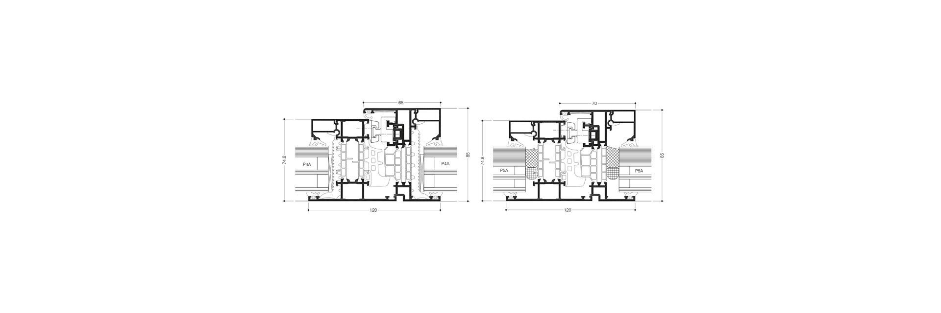
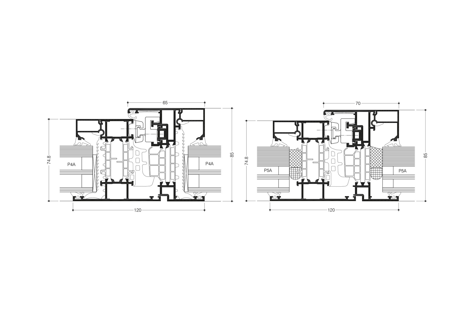
Se klassifikationer för respektive WICLINE fönstersystem.
Teknisk beskrivning
Inbrottsskydd enligt SS-EN 1627
- Den gällande standarden för inbrottsskydd, SS-EN 1627, har aktualiserats i alla europeiska länder under 2011 och 2012. Den ersätter de tidigare nationella standarderna. Klasserna har ändrats till RC1N till RC3. Dessa är dock inte identiska med de tidigare klasserna, WK1 till WK3, då även testerna har ändrats.
Testresultat för WICONA fönstersystem
- De nya WICLINE 65 evo och WICLINE 75 evo serierna med flertal variationsmöjligheter har testats enligt den nya standarden SS-EN 1627. De kan enkelt specificeras och implementeras utan några ytterligare tester enligt denna nya standard.
Inbrottsskydd enligt SS-EN 1627
WICLINE 65 / 75 Sidohängda, Dreh-kipp, underkantshängda, dubbla
WICLINE 65 / 75 Överljus
WICLINE 65 / 75 Dold båge
WICLINE 65 / 75 Classic design
WICLINE 95 Turn/ Turn-tilt/ Tilt/ Tilt-first/ Fanlight
WICLINE 115 AFS Turn/ Turn-tilt/ Tilt/ Tilt-first/ fixed field
WICLINE 125 Kopplade bågar
RC1N, RC2N, RC2, RC3
RC1N, RC2N, RC2, RC3
RC1N, RC2N, RC2, RC3
RC1N, RC2N, RC2, RC3
RC1N, RC2N, RC2, RC3
RC1N, RC2N, RC2, RC3
WK1, WK2, WK3


