WICLINE 65 evo / 75 evo
Ett elegant utförande i kombination med effektiv ventilation är de karaktäristiska egenskaperna för aluminiumsystemet WICLINE evos fönsterversion med fix-beslag.
Fix-funktion säkerställer ett säkert handhavande med låsning i valfritt läge, även för de större dimensionerna. Specialkarmar för fönster eller integrering i fasad garanterar en maximal flexibilitet av systemet.
Dokumentation
Egenskaper
Systemtestresultat / CE produktöversikt enligt SS-EN 14351-1:2006+A2:2016
Luftpermeabilitet
Vattentäthet
Vindmotstånd
Manövreringskrafter
Mekanisk styrka
Upprepning öppna/stänga
Slagmotstånd
Kvalitetssäkring
Miljöpåverkan
Klass 4
E1200
Klass C5 / B5
Klass 1
Klass 4
Klass 2 (10 000 cykler)
Klass 3
Certifierad enligt SS-EN ISO 9001:2008
Certifierad enligt SS-EN ISO 14001
Teknisk beskrivning
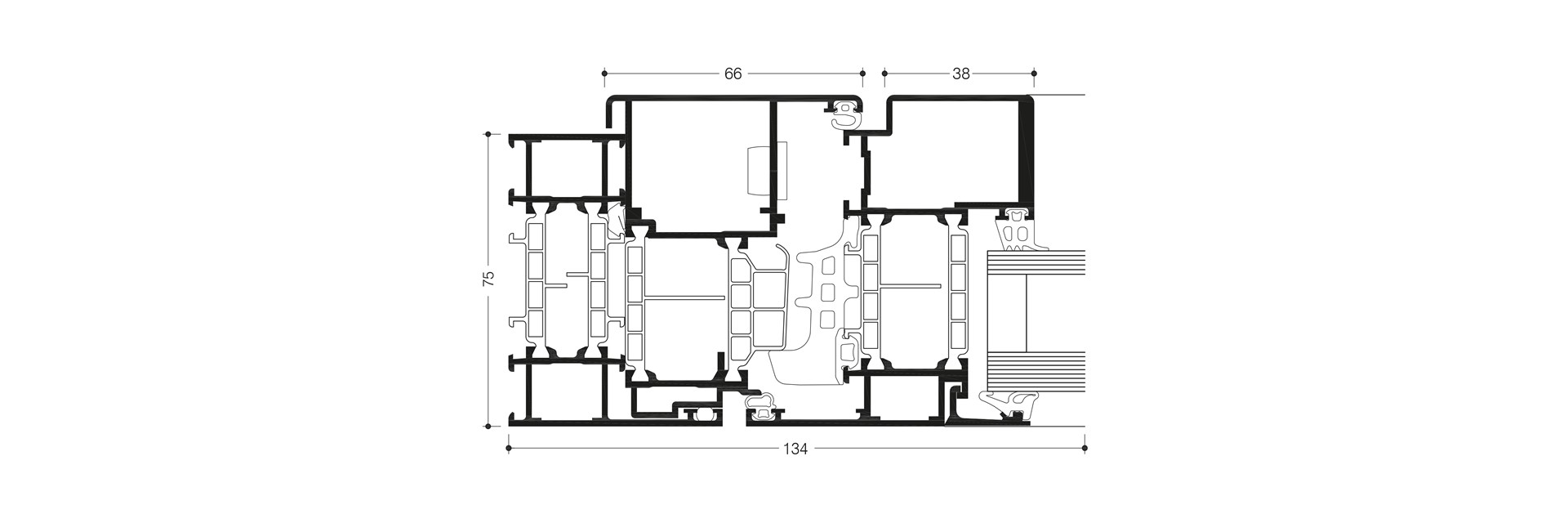
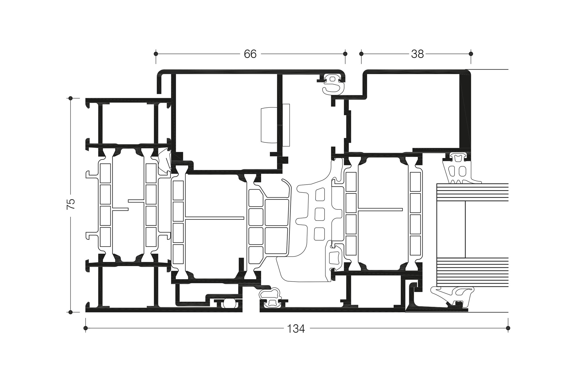
Profilernas uppbyggnad
- Högisolerat flerkammarsystem i symmetrisk design, kvalitetssäkrad anslutning mellan skalprofiler och isolator
- Patenterad hörn- och spröjsförbindning för hög stabilitet i karmar och bågar
- Fyllningstjocklekar upp till 69 mm
- Valmöjlighet med integrerad karm i fasadsystem
Värmeisolering
- Uf-värden: ner till 1.5 W/(m²K)
- Uw-värden: ner till 1.0 W/(m²K) med 3-glas.
Tätningskoncept
- Centrerad mittätning med vulkaniserade ramar
Beslag
- Fix-funktion med vertikala justeringsmöjligheter
- Välj mellan manuell eller motoriserad styrning
- Bågvikter: upp till 150 kg
- Bågstorlekar (b x h): upp till 2000 mm x 2200 mm


