WICTEC 50SG
Det mest karaktäristiska draget för en WICTEC 50SG structural glazing fasad är dess släta design med endast silikonfog mellan glasen. Systemet erbjuder helglasutförande för både vertikala fasader och sluttande glastak. Baserat på WICTEC 50 standardutförande kan detta alternativ genomföras med en enkel och ekonomisk tillverkningsprocess och montage, samtidigt som en hög, kvalitativ nivå säkerställs.
WICLINE 90SG helglasfönster förstärker intrycket av en helt slät fasad. Välj mellan topphängt (Senk-klapp) eller parallellöppnande utskjutbart.
Dokumentation
Egenskaper
Systemtestresultat / CE produktöversikt enligt SS-EN 13830
Luftpermeabilitet
Vattentäthet
Vindmotstånd
Slagmotstånd
Godkännande
Kvalitetssäkring
Miljöpåverkan
Klass AE
RE 750
2000 Pa, Säkerhet ± 3000 Pa
Klass E5 / I5
ETA: 12/0551
(European Technical Approval)
Certifierad enligt ISO 9001:2008
Certifierad enligt ISO 14001
Teknisk beskrivning
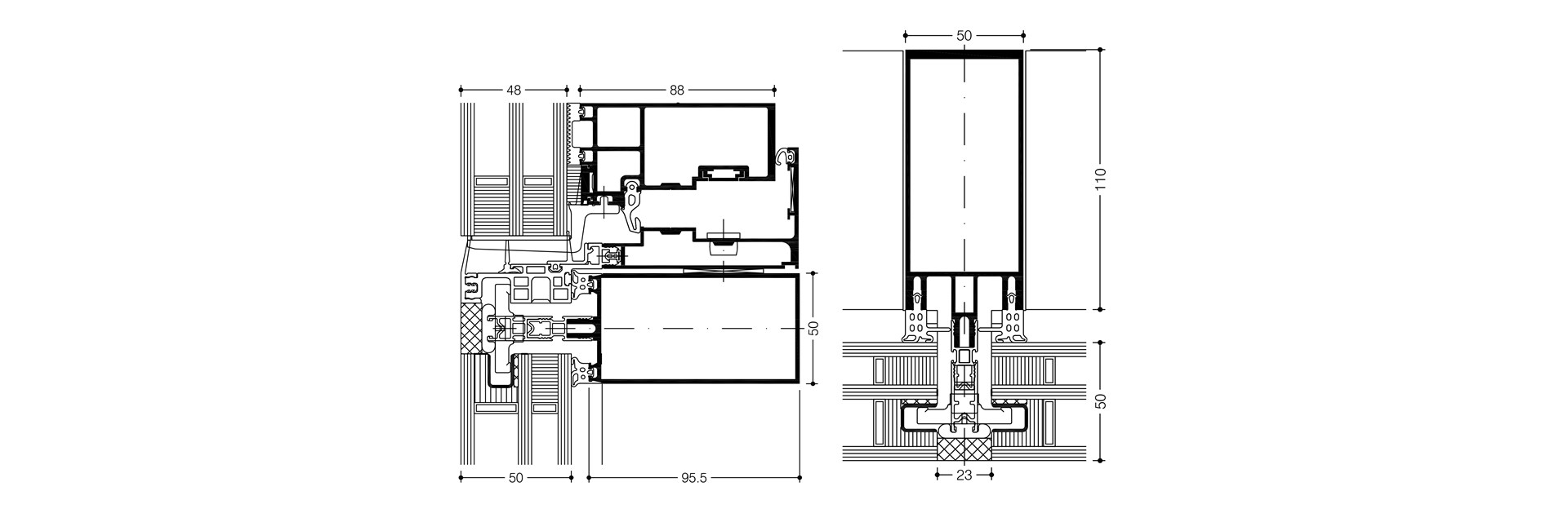
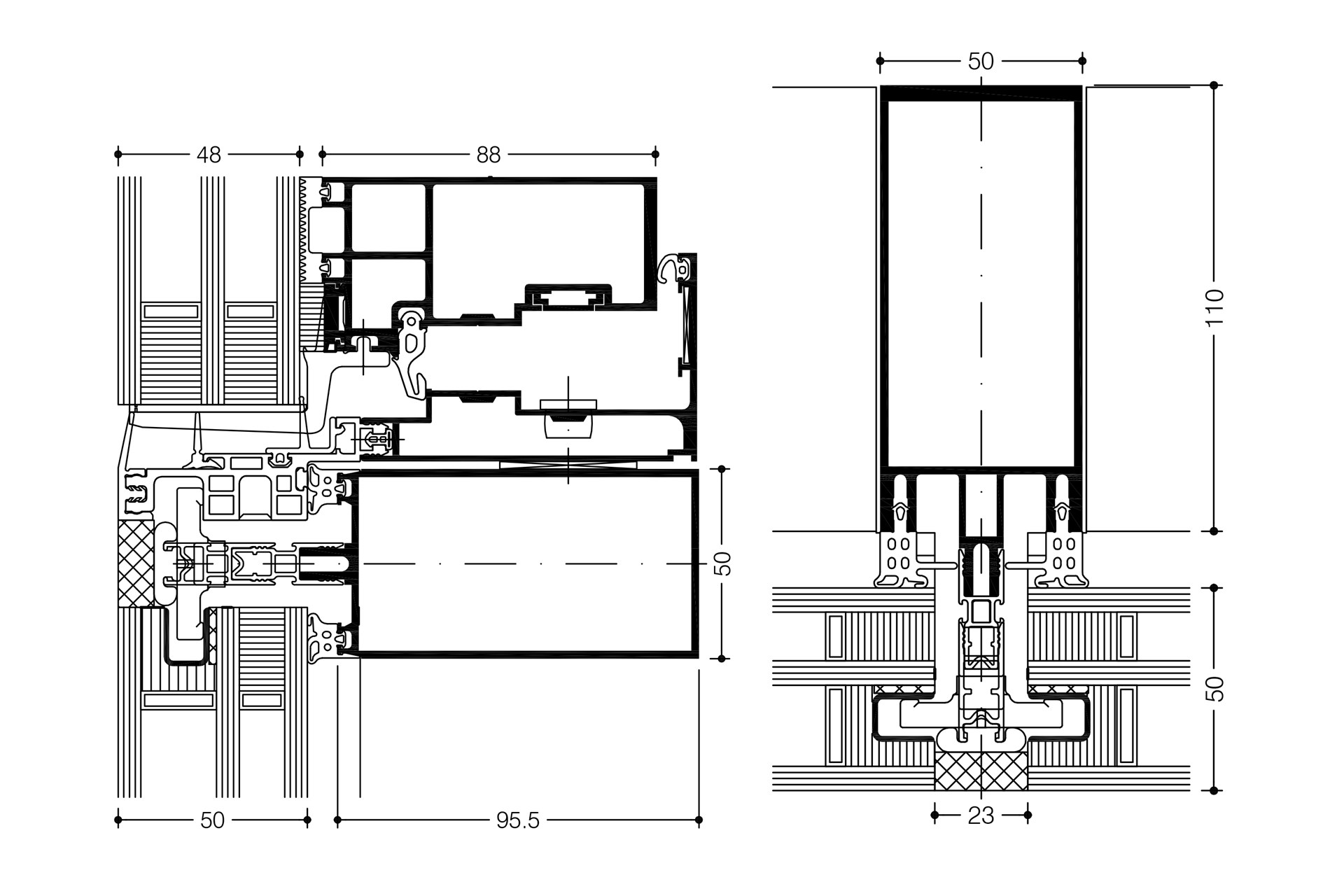
Systembredd
Värmeisoleringsförmåga
Fyllningstjocklek
Invändiga aluminiumprofiler 50 mm Utvändig silikonfog 23 mm
Uf upp till 1.6 W/(m²K)
upp till 64 mm
Systemets uppbyggnad
- Godkänd enligt ETA (European Technical Approval)
- Enastående slätt utseende
- Systemkonstruktionen med identiska profiler och tätningskoncept samt produktion och montage identiskt med WICTEC 50
- Lätt montage av glas på byggplats, utan behov av specialverktyg
- Enkelt och okomplicerat montage av glas tack vare våra specialpatenterade glashållare av vridklipsmodell
- Utförande kombinerat med vanliga täcklock är möjligt
- Det optimala komplementet för en helt slät fasad, integrerat öppningsbart fönster i WICLINE 90SG, välj mellan topphängt (Senk-klapp) och parallellöppnande utskjutbart



