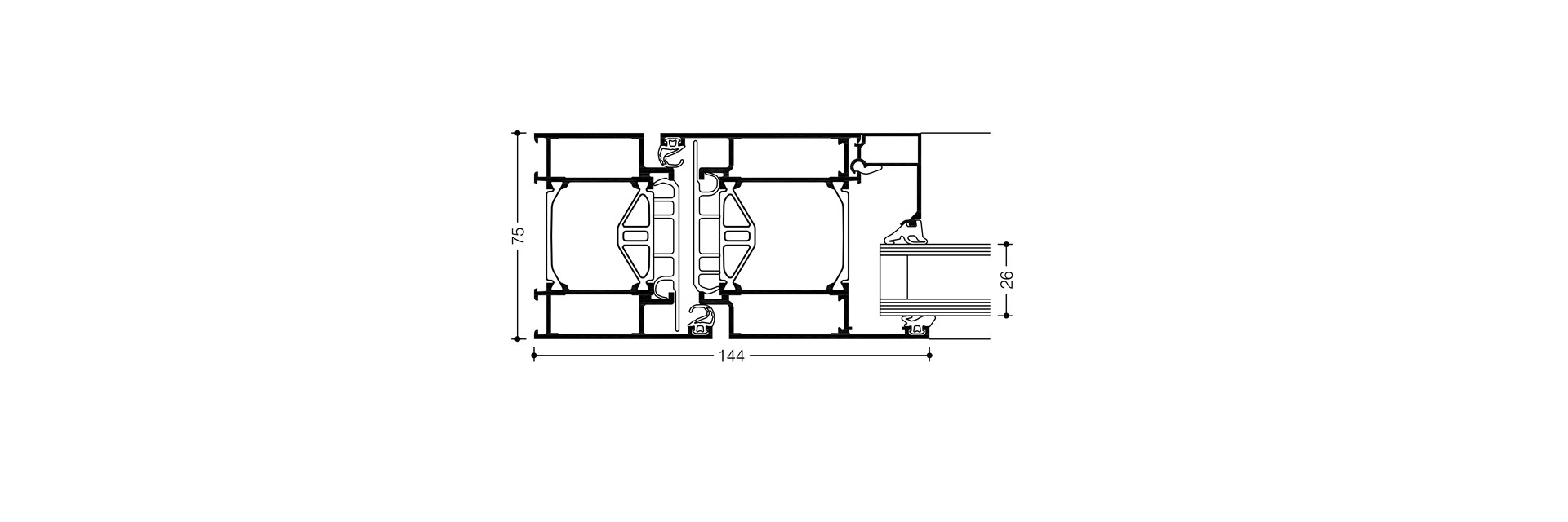
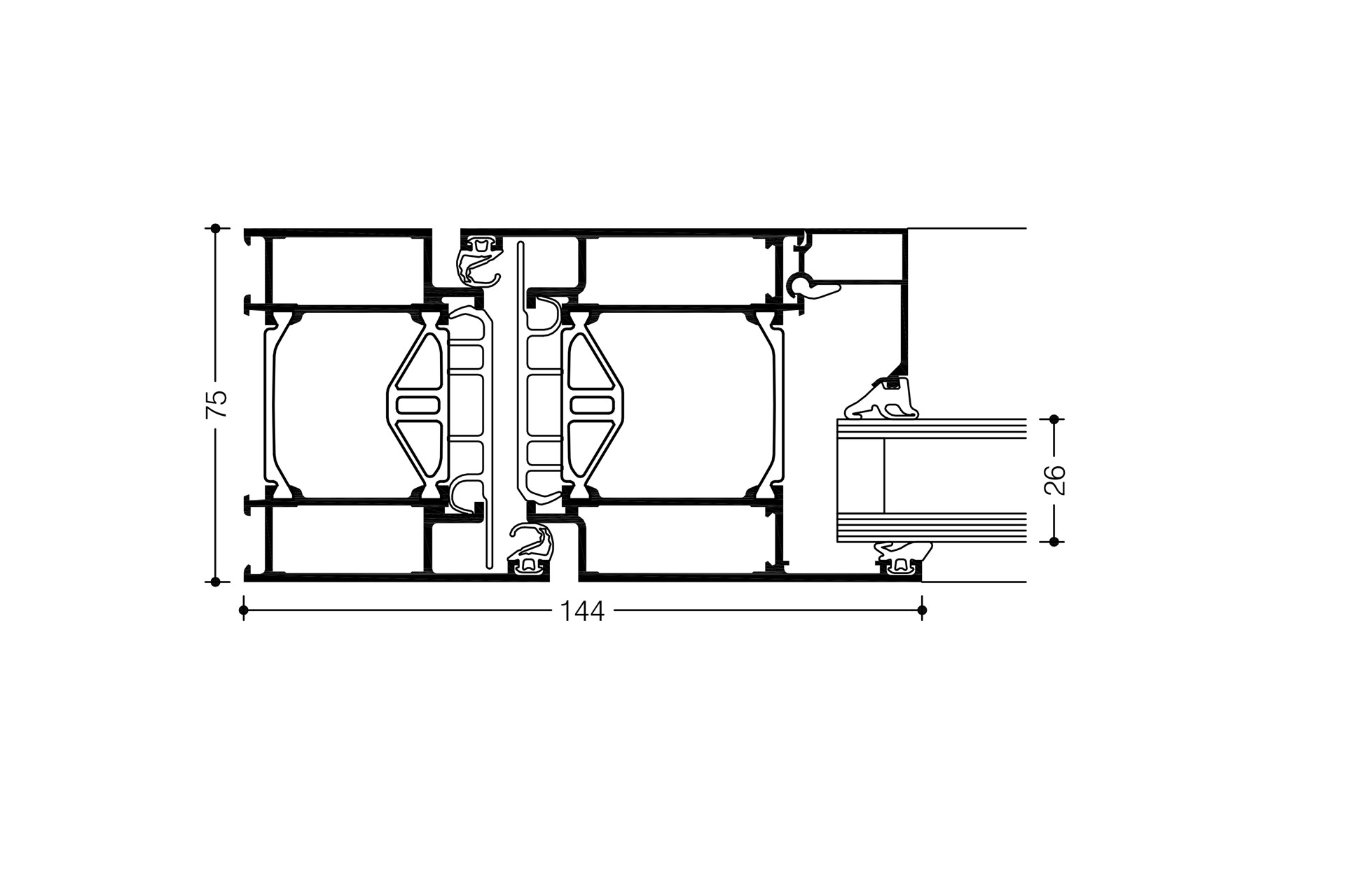
WICSTYLE 75 evo
Med sitt 75 mm profi ldjup hamnar WICSTYLE 75 evo långt fram med avseende på värmeisolering och andra statiska egenskaper. Dess enastående tekniska prestanda och breda användningsområde gör den till en optimal dörrlösning för alla befi ntliga och framtida krav och önskemål, både för nya byggnader och renoveringar.
Egenskaper
Systemtestresultat / CE produktöversikt enligt SS-EN 14351-1:2006+A2:2016
Luftpermeabilitet
Vattentäthet
Vindmotstånd
Ljudprestanda
Manövreringskrafter
Lastkapacitet av säkerhetsanordningar:
Mekanisk styrka
Upprepning öppna/stänga
Slagmotstånd
Beteende i olika klimat
Inbrottsskydd
Skottskydd
Kvalitetssäkring
Miljöpåverkan
Upp till class 2
Upp till 7A
Klass C2
RW (C; Ctr) ner till 43 (–1; –4) dB
Klass 2
Uppfylld
Klass 3
Upp till klass 7 (500 000 cykler)
Klass 1
Upp till klass 2(e) 2(d)
RC1N, RC2N, RC2, RC3
Upp till klass FB4 NS
Certifierad enligt SS-EN ISO 9001:2008
Certifierad enligt SS-EN ISO 14001
Teknisk beskrivning
Profilernas uppbyggnad
- Högisolerat fl erkammarsystem i symmetrisk design, kvalitetssäkrad anslutning mellan skalprofi ler och isolator
- Enkel- och dubbeldörrar
- Inåt- och utåtgående dörrar
- Glas eller paneler med fyllningstjocklekar mellan 6 och 60 mm
- Urval av trösklar med eller utan isolersteg, fi nns även som tillgänglighetströskel
- Över- och sidoljus, fasta eller öppningsbara i kombination med WICLINE fönstersystem
Värmeisolering
- Uf-värden: mellan 1.6 till 1.8 W/(m²K), utan extraisolerande tillsatsartiklar
Drivsystem/Beslag
- Frontmonterade gångjärn
- Falsgångjärn
- Dolda gångjärn
- Bågstorlekar (b x h): 1200 mm x 2520 mm
- Bågvikter: Synliga gångjärn, upp till 200 kg,
- Gångjärn för skottskydd upp till 400 kg
Alternativa utföranden
- Dubbeldörrar
- Integrerad karm för infästning i fasadsystem
- Inbrottsklassad i klass RC1 till RC3
- Skottskydd till klass FB4
- Överlappande fyllning på ena eller båda sidorna


