WICSTYLE 75 evo
Fasade profilkonturer och överlappande bågar är signifikativt för WICSTYLE evo i classic design. Detta utförande understryker ett uttryck som ofta efterfrågas i bostäder med äldre karaktär. Idealisk för nya byggnader men även för varsamma renoveringar.
Egenskaper
Systemtestresultat / CE produktöversikt enligt SS-EN 14351-1:2006+A2:2016
Luftpermeabilitet
Vattentäthet
Vindmotstånd
Ljudprestanda
Manövreringskrafter
Lastkapacitet av säkerhetsanordningar:
Mekanisk styrka
Upprepning öppna/stänga
Slagmotstånd
Beteende i olika klimat
Inbrottsskydd
Kvalitetssäkring
Miljöpåverkan
Upp till klass 4
Upp till 7A
Klass C2
RW (C; Ctr) ner till 43 (–1; –4) dB
Klass 2
Uppfylld
Klass 3
Upp till klass 7 (500 000 cykler)
Klass 1
Upp till klass 2(e) 2(d)
RC1N, RC2N, RC2, RC3
Certifierad enligt SS-EN ISO 9001:2008
Certifierad enligt SS-EN ISO 14001
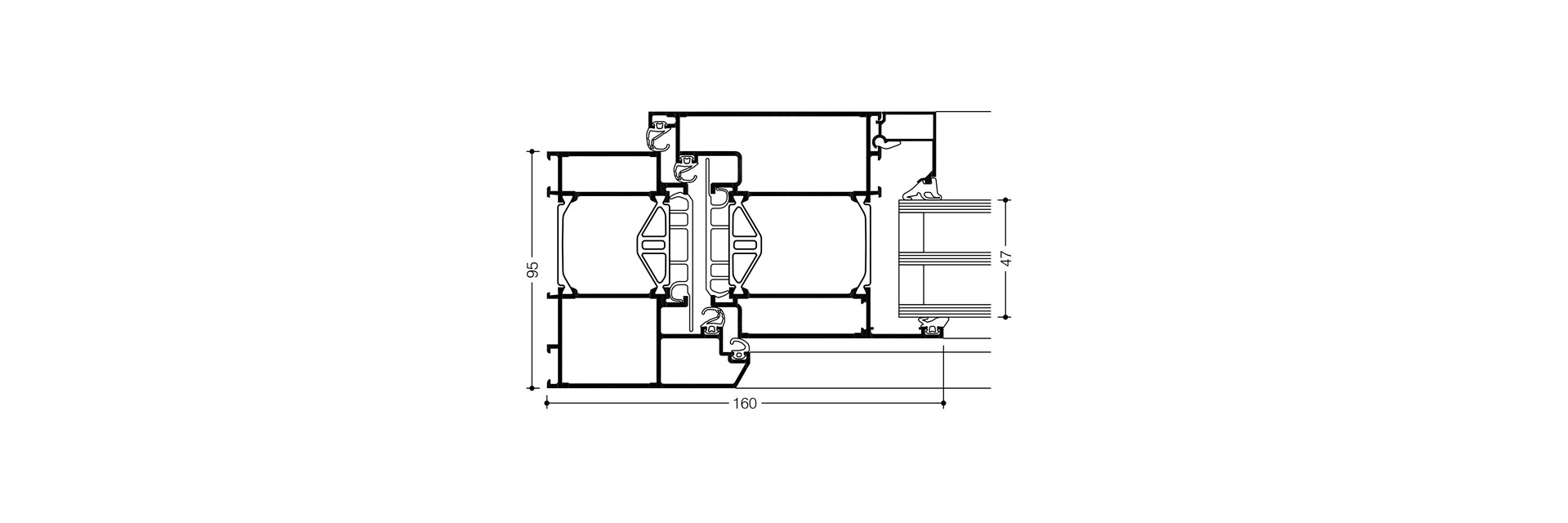
Teknisk beskrivning
Profilernas uppbyggnad
- Högisolerat flerkammarsystem i symmetrisk design, kvalitetssäkrad anslutning mellan skalprofi ler och isolator
- Enkel- och dubbeldörrar
- Inåt- och utåtgående dörrar
- Glas eller paneler med fyllningstjocklekar mellan 3 och 76 mm
- Urval av trösklar med eller utan isolersteg, finns även tillgänglighetströskel
- Över- och sidoljus, fasta eller öppningsbara i kombination med WICLINE fönstersystem
Värmeisolering
- Uf-värden: mellan 1.6 till 1.8 W/(m²K), utan extraisolerande tillsatsartiklar
Drivsystem/Beslag
- Frontmonterade gångjärn
- Falsgångjärn
- Dolda gångjärn
- Bågstorlekar (b x h): 1400 mm x 2520 mm
- Bågvikter: Synliga gångjärn, upp till 200 kg
Alternativa utföranden
- Dubbeldörrar
- Integrerad karm för infästning i fasadsystem
- Inbrottsklassad i klass RC1 till RC3


