WICSTYLE 65ED
WICSTYLE 65ED, den energibesparande automatiska skjutdörren för kommersiella byggnader med WICSTYLE 65-profiler som grund. Automatiska skjutdörrar har korta öppnings- och stängningsintervaller som optimerad utifrån de givna förutsättningarna. Därmed kan de bibehålla maximalt med värme inne i byggnaden när de är i bruk. Men den mest betydande delen i dess energieffektiva anspråk är dock dess läge större delen av tiden, det vill säga när den är i stängt läge såsom nattetid. Under sådana perioder är WICSTYLE 65EDs egenskaper speciellt framträdande då dess täta konstruktion och låga Uf-värde markant bidrar till att hålla ner byggnadens totala energiförbrukning.
Dokumentation
Egenskaper
Systemtestresultat / CE produktöversikt enligt SS-EN 14351-1:2006+A2:2016
Luftpermeabilitet
Vattentäthet
Vindmotstånd
Kvalitetssäkring
Miljöpåverkan
Klass 2
5A
Klass B1
Certifierad enligt SS-EN ISO 9001:2008
Certifierad enligt SS-EN ISO 14001
Teknisk beskrivning
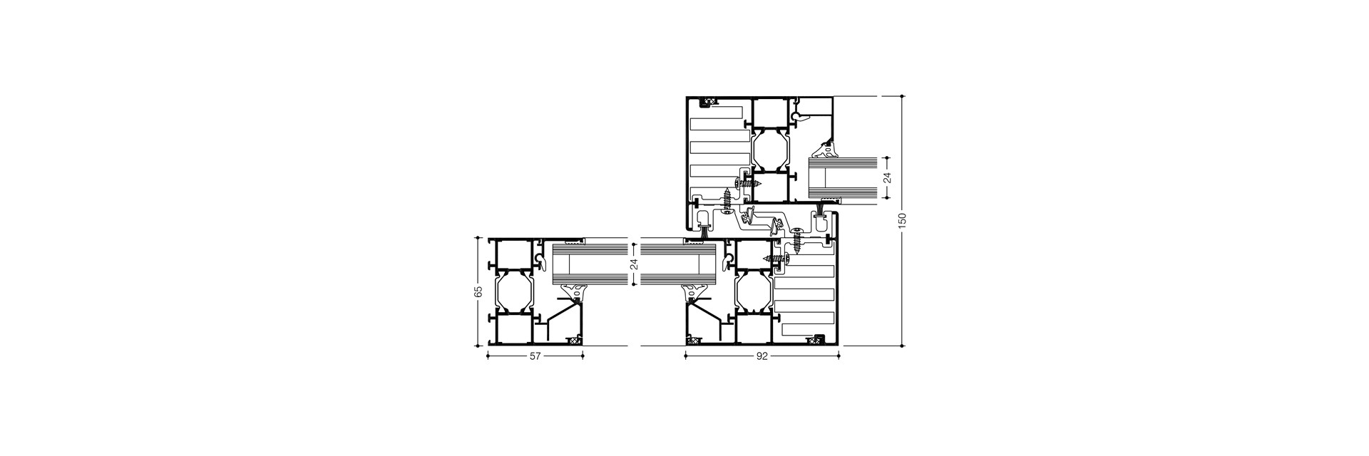
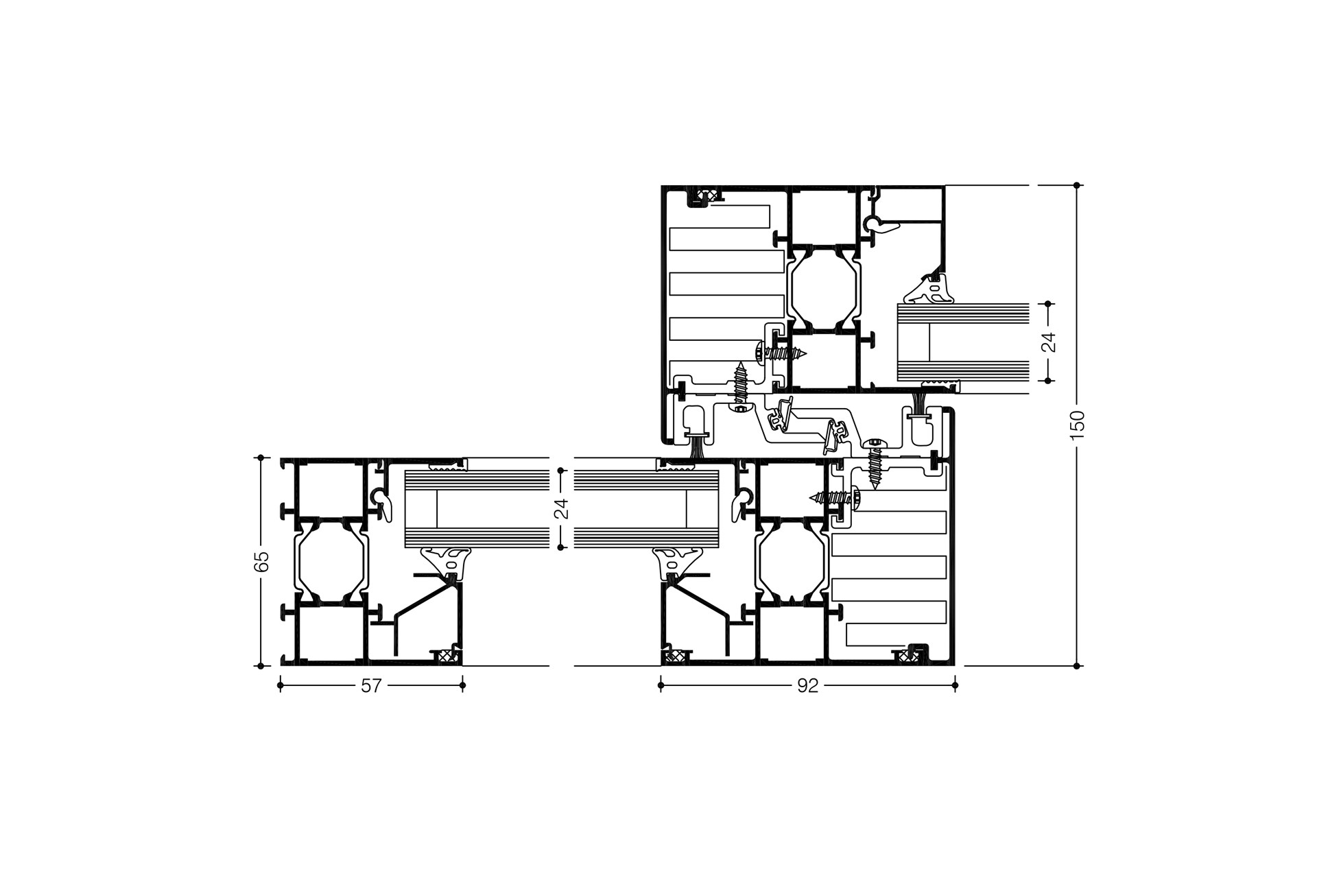
Profilernas uppbyggnad
- Värmeisolering för Ud under 1,5 W/(m²K)
- Upp till 70 % mindre energiförbrukning i stängt läge
- Förbättrad täthet tack vare två tätningsnivåer i omlottutförande runt om, detta ger värden som är jämförbara med vanliga anslagsdörrar
- Idealisk för både nya byggnader och renoveringar
- Tilltalande utseende genom smala siktlinjer samt smakfullt integrerad anslutning av drivenhet
- Fyllningstjocklekar mellan 24 och 27 mm
- Enkel- eller dubbeldörrar, med eller utan sidoljus
- Enkel integration av ytterligare funktioner och beslag, såsom flerpunktslås för ökat inbrottsskydd
Värmeisolering
- Ud-värden: under 1.5 W/(m²K)
Drivenhet/Beslag
- Enkel- eller dubbeldörr
- Fungerar som utrymningsväg
- Bågvikter: upp till 150 kg
- Bågstorlekar (b x h): 2000 mm x 3000 mm




