520 West 28th
Location

New york, United States

Year

2017

Building Type

Residential buildings

Architect

Zaha Hadid Architects

Customer

Stahlbau Pichler

Other planning committee

Photos - Hufton & Crow

Used systems

Façades WICTEC

ZHA_520-W-28th-Street_©Hufton+Crow_001-bea.jpg

PROJECT DETAILS

WICONA presents the first residential building built by Zaha Hadid Architects in New York, at 520 West 28th.

The design of the building at 520 West 28th, with its curved steel façade that draws inspiration from nature, stands out from the rectangular blocks which are characteristic of Manhattan. With volumes that create dynamism, the studio run by prestigious Iraqi architect and Pritzker Prize winner Zaha Hadid has managed to give a distinctive and original identity to this complex of 39 luxury residences.

The building’s curtain wall is custom-made and its curves link together the 11 storeys of the building, maximising the privacy of the dwellings, while at the same time creating a sensation of dynamism and movement. It is as if the waves rise up from the ground and expand to the top of the building.

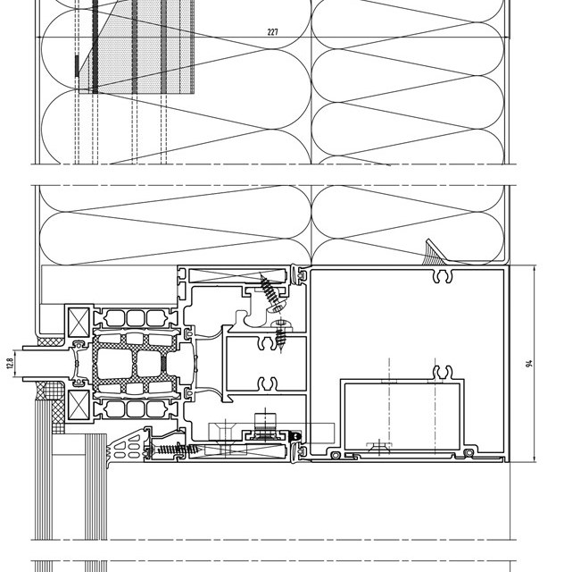
WICONA played a key role in the façade, since it required a customised solution with aluminium profiles adapted to the building. The solution used was a unitised façade with motorised Parallel-Outward-Vents.

In addition to 39 residences with long balconies and gardens, the complex has common areas for entertainment, a car park, an indoor pool and a spa area. 

ZHA_520-W-28th-Street_©Hufton+Crow_015.jpg
ZHA_520-W-28th-Street_©Hufton+Crow_027.jpg
ZHA_520-W-28th-Street_©Hufton+Crow_030.jpg
ZHA_520-W-28th-Street_©Hufton+Crow_039.jpg
ZHA_520-W-28th-Street_©Hufton+Crow_041.jpg
ZHA_520-W-28th-Street_©Hufton+Crow_011.jpg

Façades WICTEC

WICTEC EL evo

Find more about WICTEC EL evo

WICTEC EL evo

Other references

Other References Reference page

Al Maidan Hospital
Al Maidan Hospital
AMG Performance Center Göteborg
AMG Performance Center Göteborg
Hotel Montana
Hotel Montana

CONTACT US

Are you looking for professional advice? Do you have a suggestion that you would like to share with us? Get in contact with an expert by clicking on the link below.

Contact us