PROJECT DETAILS
The new headquarters of the Barcelona Supercomputing Centre – Centro Nacional de Supercomputación (BSC - CNS), a pioneering research centre for supercomputing in Spain, will house more than 500 scientists. Located in UPC Barcelona’s Campus Nord, it is being built inside the Torre Girona gardens. The firm BAAS Arquitectura has proposed an abstract enclosure, as if it were an industrial design piece, placed in the middle of the park. It is protected by large-format vertical slats in white aluminium, which generates optimum efficiency from a functional point of view.
The building, which accommodates all the activities related to the supercomputer, takes the form of a heat sink, similar to those that appear inside computers: a container that protects the technology and allows for it to be updated.
“It’s not a building, it’s a computer in the middle of a garden”
BAAS Arquitectura
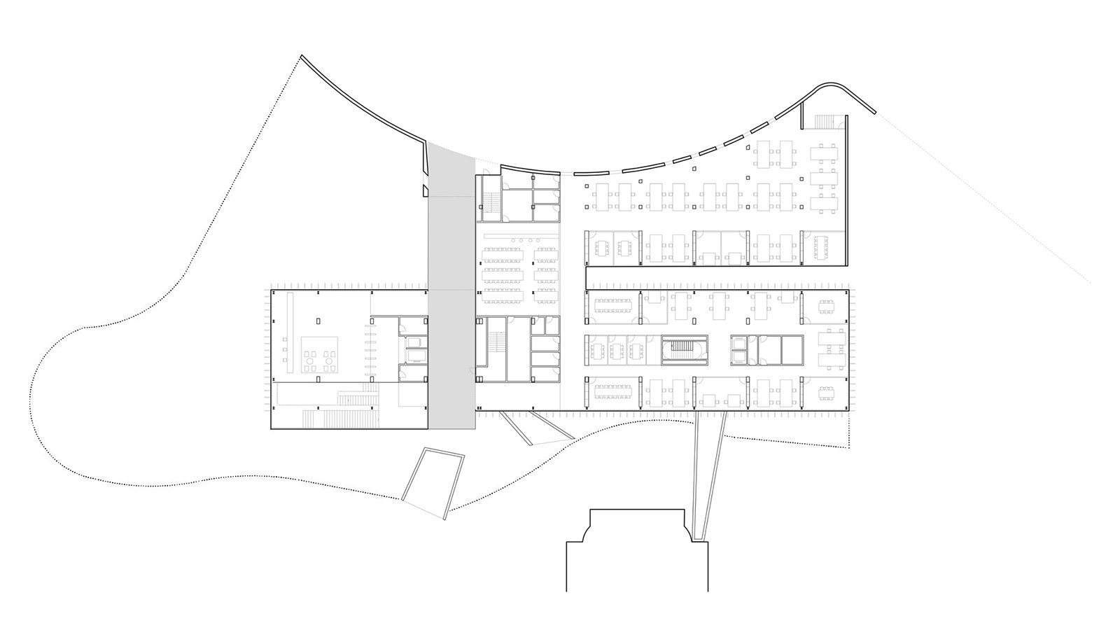
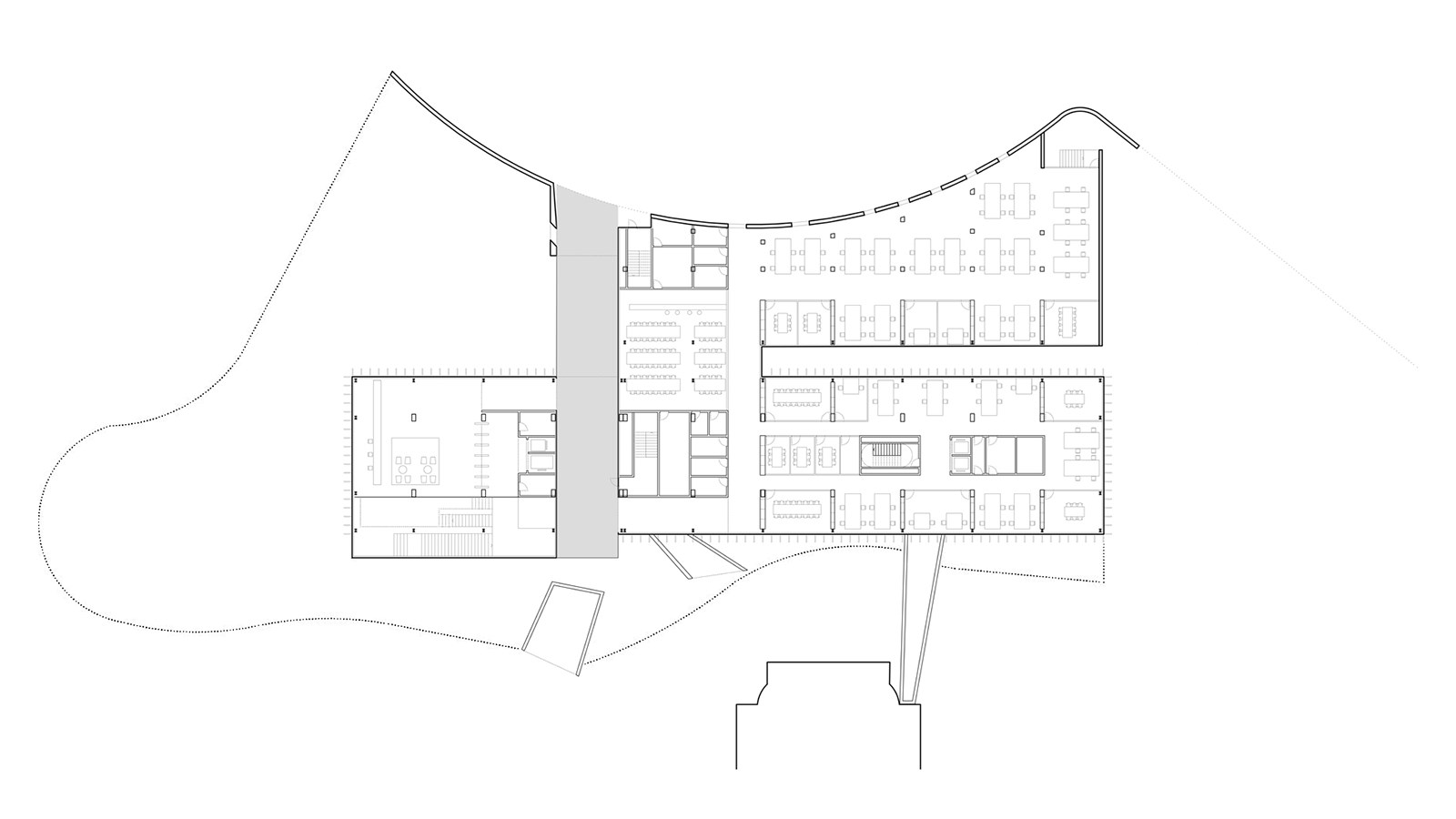
The building, which is presented as a single piece, contains three large blocks: above ground, the strip that hosts the research, direction and management areas; below ground level, the semi-basement that houses the supercomputer, and the basement for utilities and parking. In addition, a fourth block has been designed as a plinth, taking advantage of the pre-existence of a historical wall that delimited the Finca Güell, which contains the main lobby, strip, teaching and conferences area and which acts as a link between the different parts of the system.
The main access, from the Eusebi Güell square, is formalized as a hole that crosses the building and becomes a viewpoint to the chapel and the park. Showing the building that houses the Mare Nostrum supercomputer from the entrance to the new building is essential to incorporate it into the set, while enriching and qualifying it.
As the architects affirm, "architecture takes a step backwards to put itself at the service of technology, creating a highly efficient piece where each of the design decisions is made based on its functional effectiveness, versatility and energy efficiency" .
More than 4,000 square meters of WICONA facades
The façade system used for the project has been WICONA's WICTEC EL 80 SG, a modular curtain wall made from perimeter semi-profiles forming a frame that is fully assembled and sealed in the factory with high quality control of the finished product.
Developed to provide high quality, quick installation, simplicity in manufacturing, high performance and design flexibility, it allows to create facades where thermally isolated areas and ventilated areas are combined, thus improving the overall performance of the building (hot facade and cold facade), without significant aesthetic differences between the two.














![Rivas-Futura Underground Station [Metro de Madrid]](/contentassets/a6adfc2a6d83419d86b8de35ab487076/010_metro_landinezrey_tfm_005_web.jpg?ts=637262745750000000&w=1920&quality=90&format=jpeg&h=640&mode=crop&scale=down)
