Al Maidan Hospital
Location

Salmiya, Kuwait

Building Type

Hospitals

Architect

Gulf Consult - Kuwait

Customer

Hassan Abul Aluminum Division - baderb@hassan-abul.com - 150/20 Public Warehousing Co - Safat - Kuwait

Used systems

Façades WICTEC

Image1.jpg

Façades WICTEC

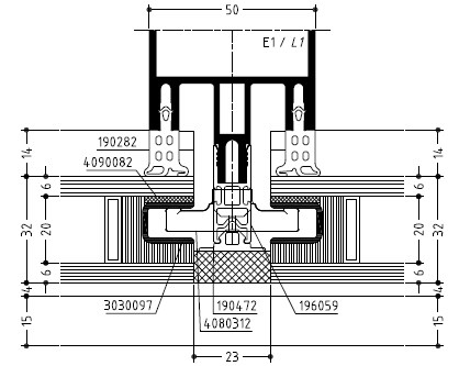
WICTEC 50 SG

Find more about WICTEC 50 SG

WICTEC 50 SG

Other references

Other References Reference page

Merkur Spielothek Neu-Ulm
Merkur Spielothek Neu-Ulm
Université Blondel
Université Blondel
Museo del Ciclismo "Gino Bartali"
Museo del Ciclismo "Gino Bartali"

CONTACT US

Are you looking for professional advice? Do you have a suggestion that you would like to share with us? Get in contact with an expert by clicking on the link below.

Contact us