
Location
Mannheim, Germany
Building Type
Office buildings
Customer
HAGA Metallbau GmbH - 97461 - Hofheim - Germany
Architect
Schmucker und Partner Planungsgesellschaft - 68159 - Mannheim - Germany
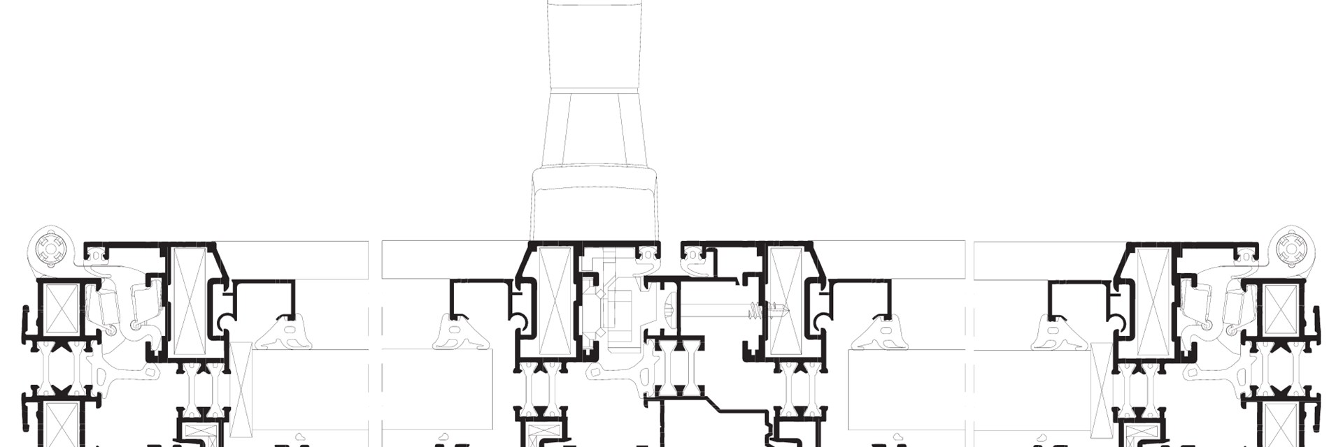
Used systems
Windows WICLINE














