Schwenk Zement KG - Altbau
Location

Ulm, Germany

Building Type

Office buildings

Customer

Dodel Metallbau GmbH - Daimlerstrasse 6 - 89079 - Ulm - Germany - http://www.dodel-metallbau.de/

Architect

Ingenieurbüro Rudolf Baur - 88489 - Wain - Germany - http://www.buerobaur.de/

Used systems

Windows WICLINE

Schwenk2.jpg

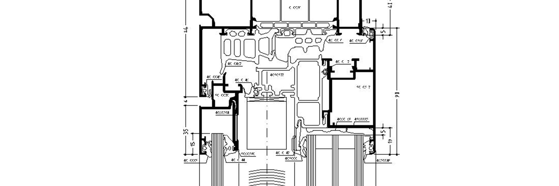
Windows WICLINE

WICLINE 115 AFS

Find more about WICLINE 115 AFS

WICLINE 115 AFS

Other references

Other References Reference page

Borgartún 35
Borgartún 35
Deutsche Telekom AG Ulm
Deutsche Telekom AG Ulm
kavaliershaus Lauenförde
kavaliershaus Lauenförde

CONTACT US

Are you looking for professional advice? Do you have a suggestion that you would like to share with us? Get in contact with an expert by clicking on the link below.

Contact us