
Location
Villingen-Schwenningen, Germany
Year
2012
Building Type
Hospitals
Customer
Neumayr High-Tech Hassaden GmbH - 84307 - Eggenfelden - Germany - http://www.neumayr.de/
Architect
TMK Thiede Messthaler Klösges - 40474 - Düsseldorf - Germany
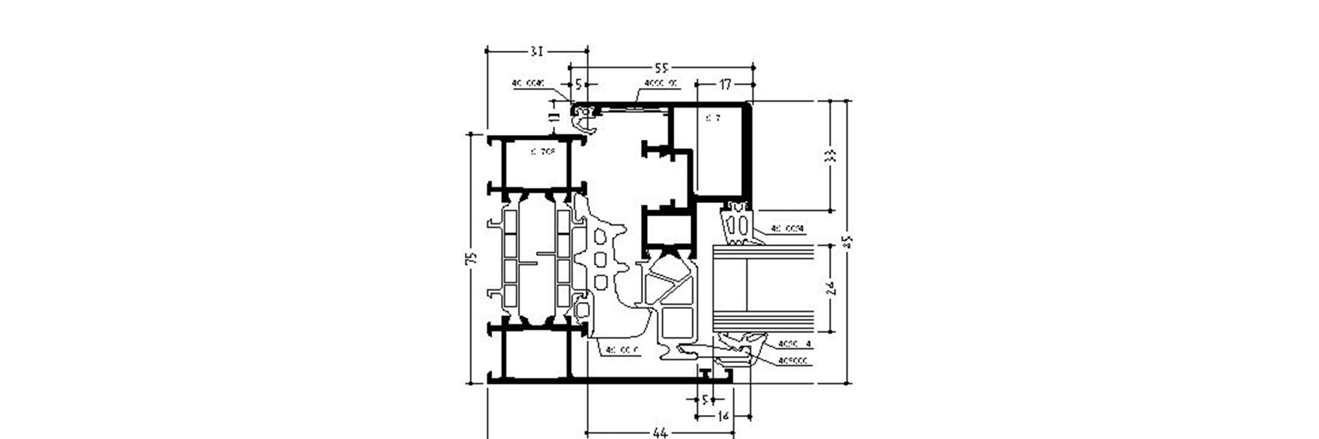
Used systems
Façades WICTEC, Windows WICLINE, Doors WICSTYLE






















