PROJECT DETAILS
Kap West in Munich Realized with Element Façade Solution from WICONA
With the completion of Kap West, a new architectural highlight has been added to Munich. This exceptional office building, located in the up-and-coming “Am Hirschgarten” urban district, impresses with its distinctive architecture and especially sustainable construction. For the realization of the approximately 12,600 square meters of façade surface on this LEED Gold-certified high-rise, the architects chose, among other things, a project-specific element façade from WICONA.
In the Neuhausen-Nymphenburg district, a future-oriented residential and commercial location is being developed on a 7,300 square meter former industrial site (MK8) – the new “Am Hirschgarten” district. The most striking building of this urban development project is the Kap West high-rise, designed by Wiel Arets Architects. The modern office complex sets new standards in architectural design as well as in location and quality of stay. Each of the two U-shaped base buildings is topped with a prominent tower. The slightly taller South Tower, at 60 meters, is particularly eye-catching with its cantilevered block—rotated in opposition and floating about 18 meters above the ground—making it a visible landmark from afar. The visionary idea of flexible, modern, and future-ready working in an urban environment is completed by a campus-like arrangement of open spaces, including green courtyards and rooftop gardens.
Intelligent Element Façade Construction
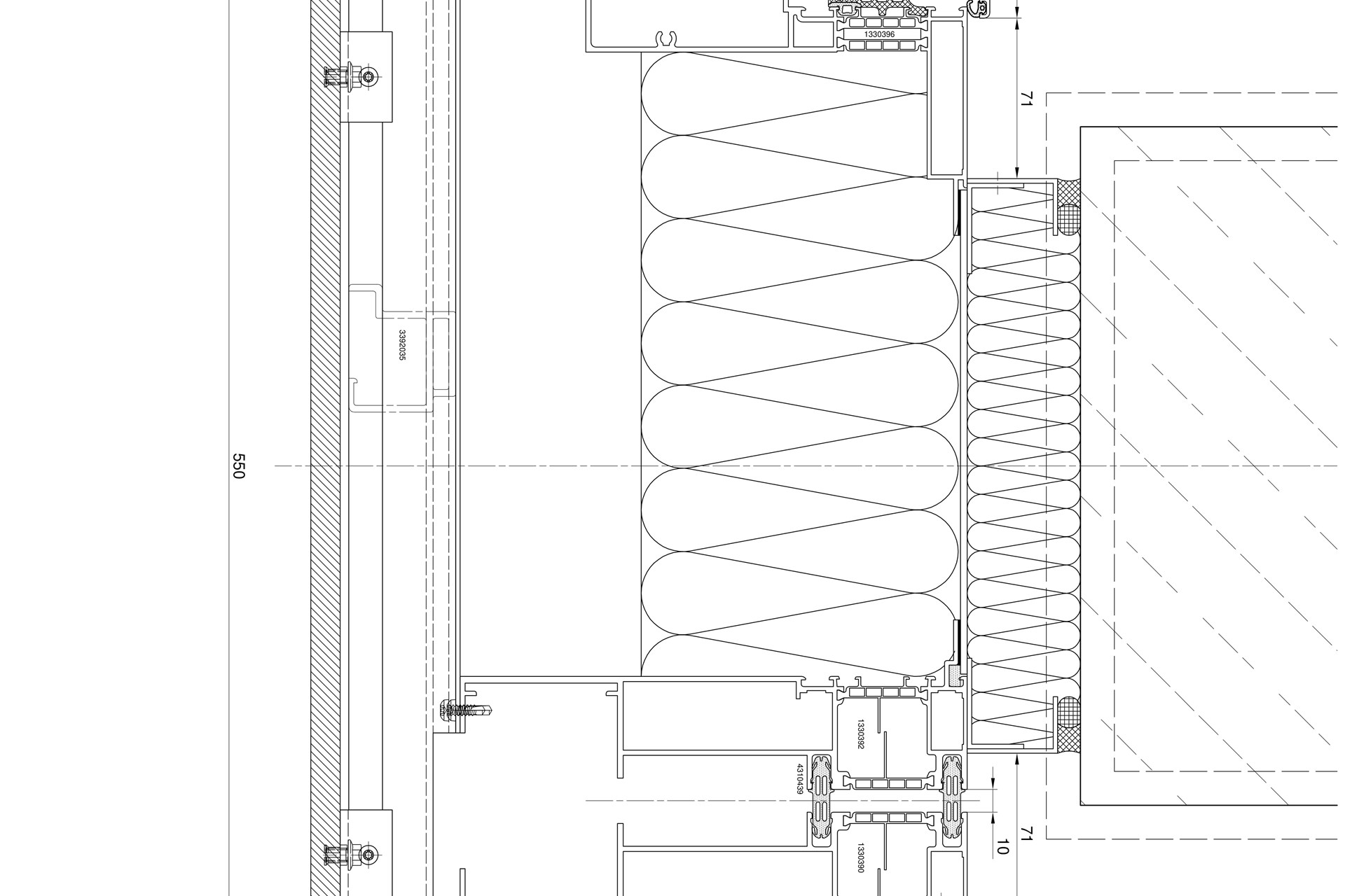
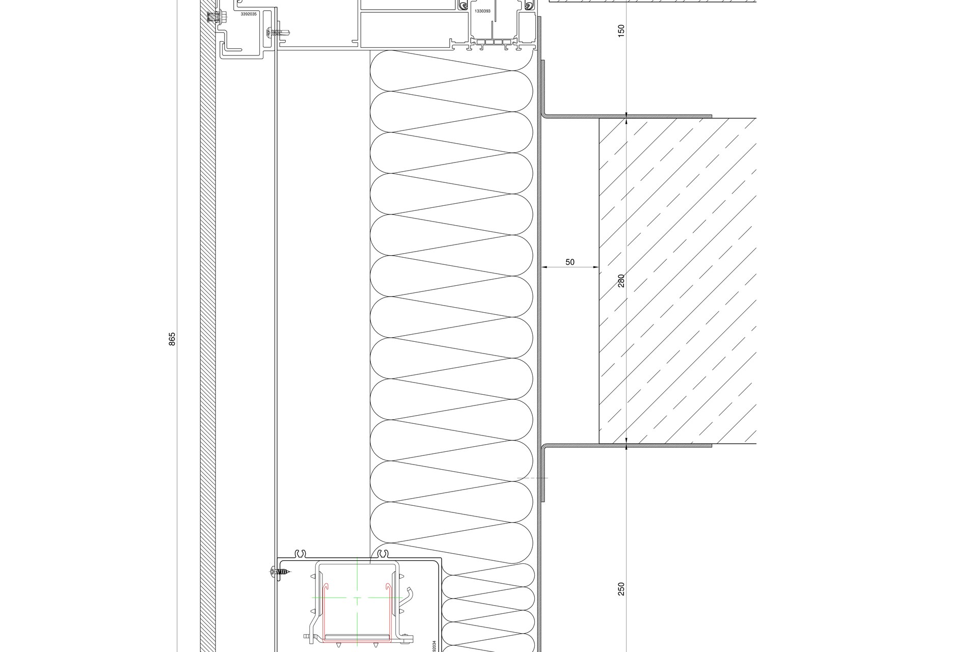
The realization of the Kap West façade posed a particular challenge due to the many requirements that had to be considered. For example, floor-to-ceiling window elements with concealed, operable ventilation flaps and opening limiters were requested. The construction also had to meet high standards in sound insulation, resistance to driving rain, air permeability, and wind load durability. To address these demands, façade experts from Scharl (Ehingen) designed a suspended solution consisting of a 220 mm thick element façade with externally mounted horizontal and vertical pilaster structures (350, 550, and 750 mm wide).
The element façade was built on the basis of WICONA’s highly thermally insulated aluminum window system WICLINE 75 evo. The Rupert App company (Leutkirch) adapted this system to the project requirements by reinforcing it on the outside, equipping it with dummy sashes and integrated sunshade guide rails, and installing it with brackets positioned beside the columns. Another special feature was the triple sealing layers. Thanks to the system’s high flexibility, even relative ceiling deformations (+12 mm) could be easily accommodated.
Attached to the element façade elements—many of which were modified for the project—were 12 mm thin, very compact Dekton façade panels from manufacturer Cosentino, mounted using invisible aluminum anchors. More than 2,200 elements—consisting of window systems, ventilation modules, and suspended façade panels—were pre-fabricated and delivered to the construction site. This allowed for efficient assembly within the tight project timeline. A sustainably conceived concept for an impressive architectural ensemble.


















