
Location
Laupheim, Germany
Year
2010
Building Type
Cultural&leisure
Architect
Bauamt Laupheim - 88471 - Laupheim - Germany
Used systems
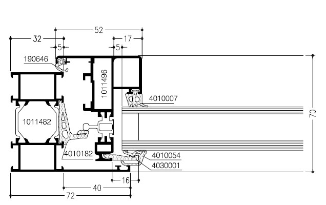
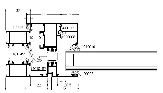
Windows WICLINE











