
Location
Salzburg, Austria
Year
2007
Building Type
Public buildings
Architect
Embacher Architekten - Austria
Customer
STEKO - Amering - Austria
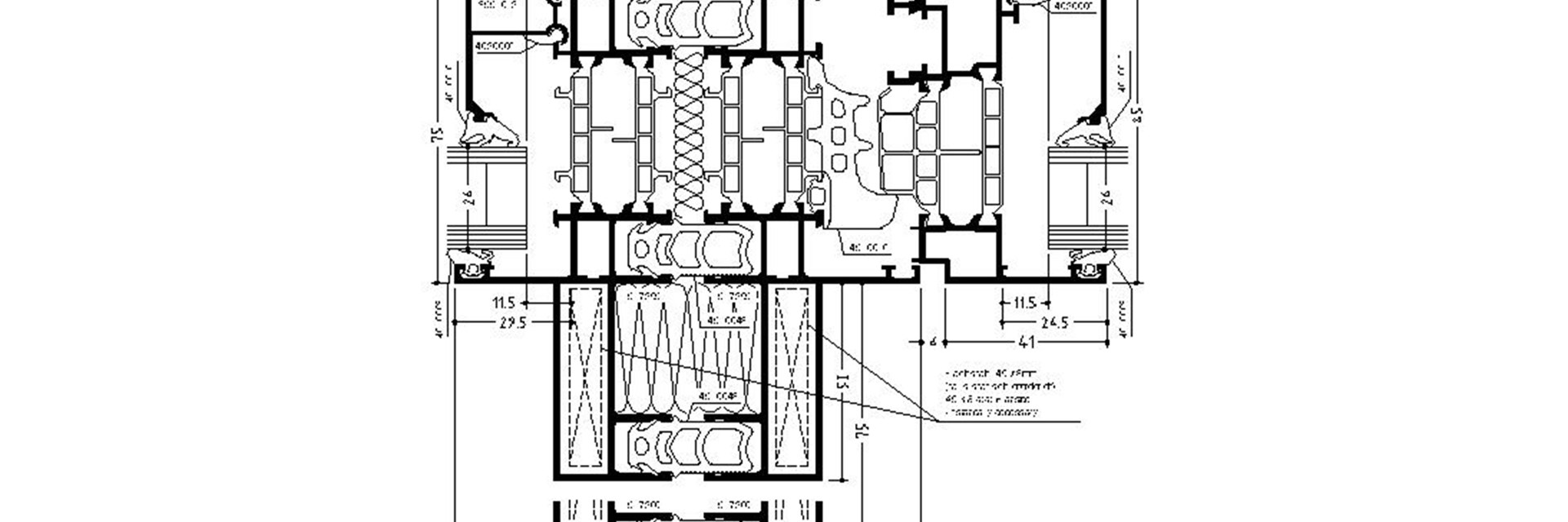
Used systems
Windows WICLINE, Doors WICSTYLE
















