WICLINE 65 evo / 75 evo
The option “Concealed Sash” in the aluminium window system WICLINE evo features a special glazing bead fixed directly in the thermal break zone. As a result the system achieves an extremely slim frame elevation, superior thermal insulation values and a sleek profile design from outside. The improved ratio between frame and glazing surfaces leads to very good Uw values, in-creased light transmissions and panoramic views.
Documentation
Characteristics
System test results / CE product pass in accordance with EN 14351-1:2006+A2:2016
Air permeability
Water tightness
Resistance to wind load
Operating forces
Load bearing capacity of safety devices
Mechanical strength
Repeated opening / closing
Impact resistance
Corrosion resistance of fittings
Burglar resistance
Quality assurance
Environmental management
Class 4
E1200
Class C5 / B5
Class 1
Fulfilled
Class 4
Class 2 (10 000 cycles)
Class 3
Class 5
RC1N, RC2N, RC2, RC3
Certified according to ISO 9001:2008
Certified according to ISO 14001
Technical performance
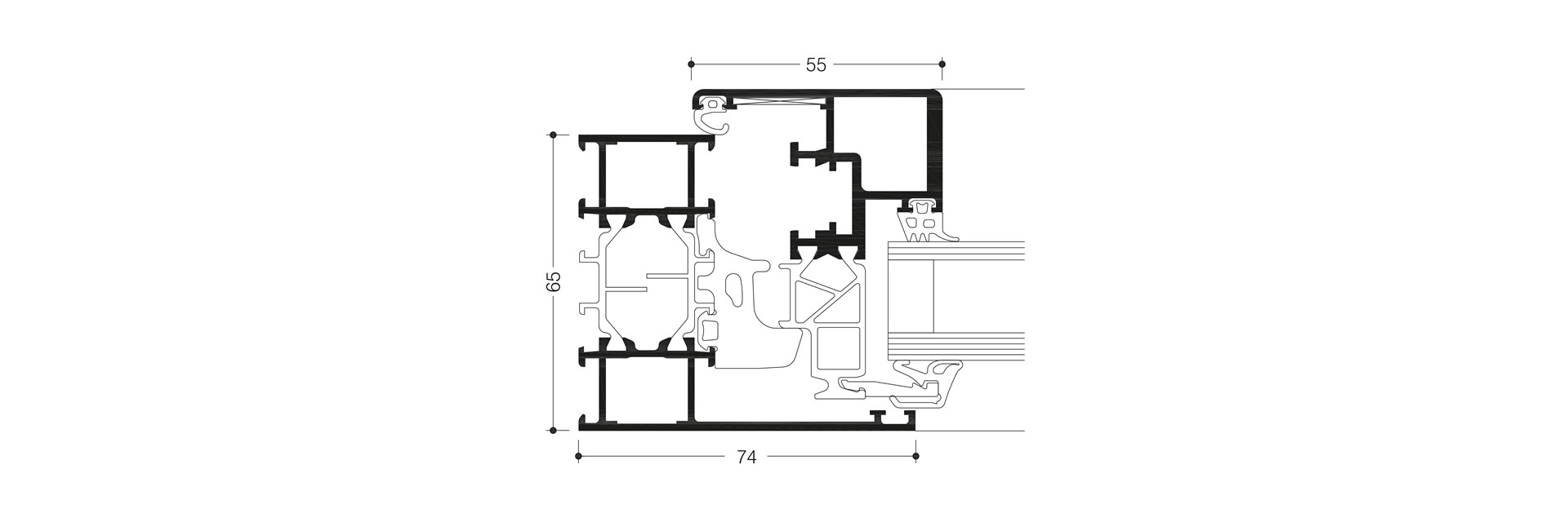
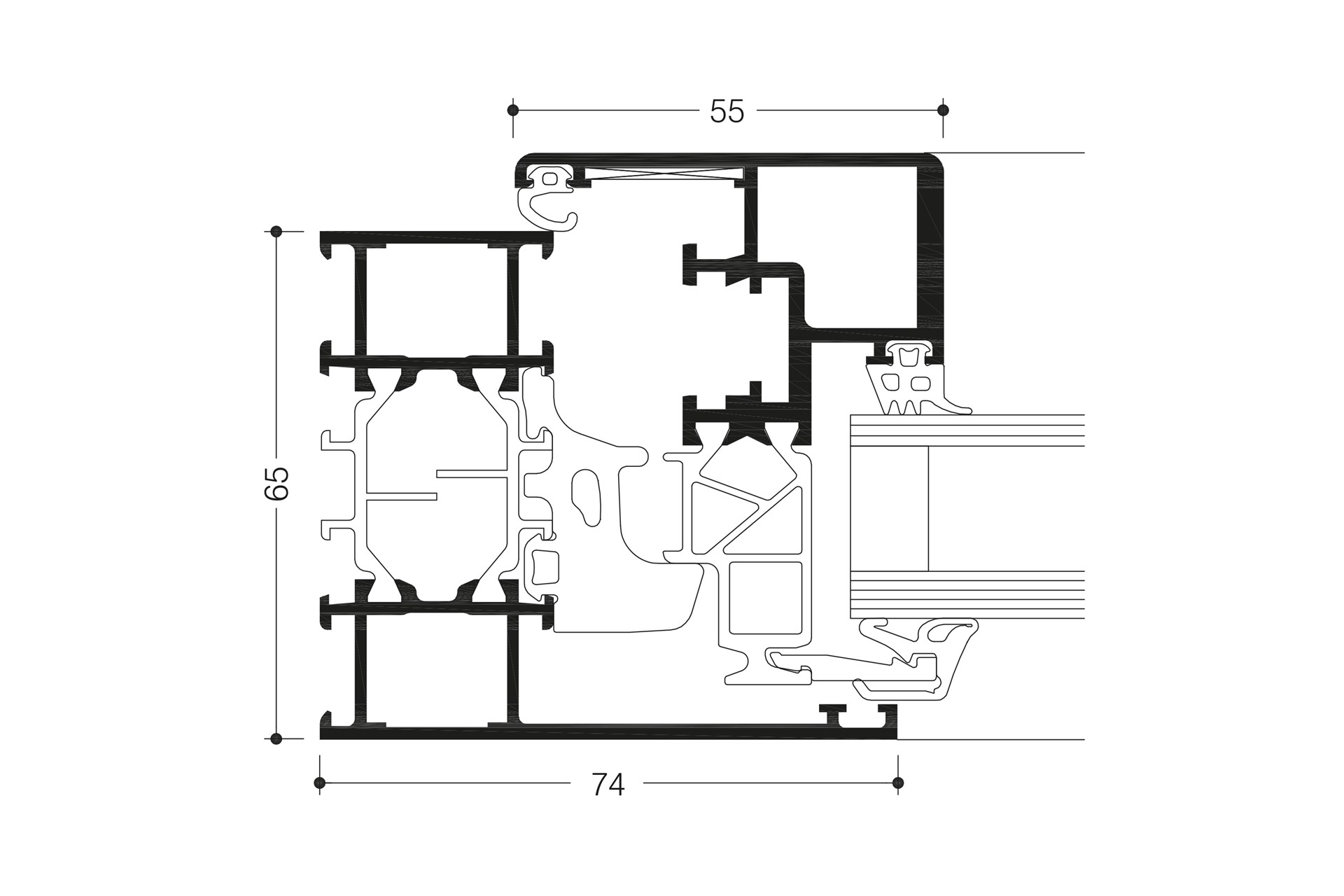
Profile technology
- High insulation multi-chamber system in symmetric design, quality assured thermal insulator connection
- Patented corner and butt joint connection technology for high rigidity of frames and sashes
- Infill thickness up to 42 mm
Thermal insulation
- Uf values: up to 1.5 W/(m²K)
- Uw values: up to 0.94 W/(m²K) with triple glazing
Gasket concept
- Central gasket in three variants:
- Circumferential installation without corner pieces
- With formed corners, no adhesive required
- Corner vulcanised frames
Hardware
- Heavy duty system hardware with:
- Visible hinges, powder coating or anodisation in all colours
- Concealed hinges with integrated end position damping, opening angle max. 105°
- Sash weight:
- up to 130 kg
- Sash sizes (w x h): 1400 mm x 2250 mm
- Optional opening limiter
Additional designs in concealed sash design
- Integration frame for stick façades
- Fanlight
- Burglar resistance (see system tests)
Now also available with WICONA’s award-winning concealed handle for profiles 1010615, 1010616 and 1010632.


