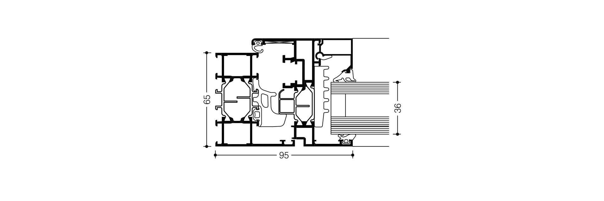
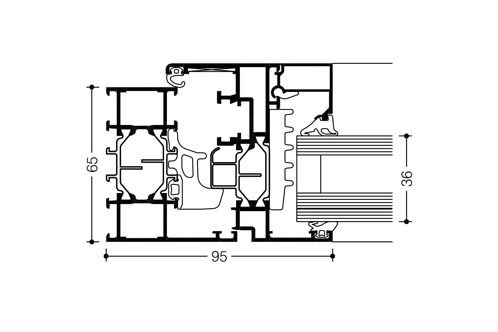
WICLINE 65 evo
State-of-the-art technology and a comprehensive profile range make the aluminium window system WICLINE 65 evo a perfect all-rounder with a versatile spectrum of applications. With a construction depth of only 65 mm, this system meets high standards of thermal and sound insulation. WICLINE 65 evo offers a very attractive price / performance ratio.
Documentation
Characteristics
System test results / CE product pass in accordance with EN 14351-1:2006+A2:2016
Air permeability
Water tightness
Resistance to wind load
Acoustic Performance
Operating forces
Load bearing capacity of safety devices
Mechanical strength
Repeated opening / closing
Corrosion resistance of fittings
Burglar resistance
Bullet resistance
Quality assurance
Environmental management
Class 4
E900
Class C5 / B5
Rw (C; Ctr) = 47 (–1; –4) dB
Class 1
Fulfilled
Class 4
Class 3 (20 000 cycles)
Class 5
RC1N, RC2N, RC2, RC3
FB4 S, FB4 NS (depending on the profile combination)
Certified according to ISO 9001:2008
Certified according to ISO 14001
Technical performance
Profile technology
- High insulation multi-chamber system in symmetric design, quality assured thermal insulator connection
- Patented corner and butt joint connection technology for high rigidity of frames and sashes
- Infill thickness up to 59 mm
Thermal insulation
- Uf values: up to 1.4 W/(m²K)
- Uw values: up to 0.93 W/(m²K) with triple glazing
Gasket concept
- Central gasket in three variants:
- Circumferential installation without corner pieces
- With formed corners, no adhesive required
- Corner vulcanised frames
Hardware
- Heavy duty system hardware with:
- Visible hinges, powder coating or anodisation in all colours
- Concealed hinges with integrated end position damping, opening angle max. 105°
- Sash weight:
- Concealed hinges: up to 160 kg
- Visible hinges: up to 200 kg
- On demand: up to 300 kg
- Sash sizes (w x h): 1700 mm x 2500 mm, fanlight 2500 mm x 1700 mm
- Optional opening limiter
Additional designs
- Concealed sash
- Classic design
- Integration frame for stick façades
- Fanlight with hand lever, cranked rod or motor
- Pivot window, horizontal or vertical
- Parallel sliding window, with or without force operation
- Italian style window
- Top-hung window
- Window doors with barrier free threshold, single or double casement door, inward and outward opening
Compatible with the door series WICSTYLE 65 evo and WICSTYLE 75 evo


