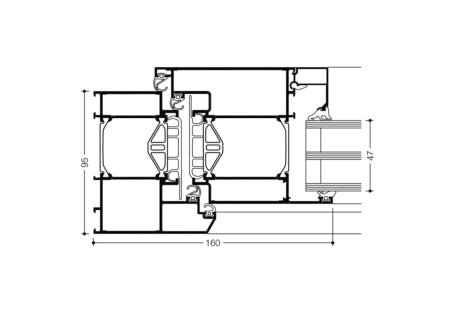
WICSTYLE 75 evo

Bevelled profile contours and overlapping sashes are characteristic for the classic design of the WICSTYLE evo aluminium door series.This design underlines a style which is often requested for residential architecture. Ideal for new buildings and for energetic renovations alike.

Characteristics

System test results / CE product pass in accordance with EN 14351-1:2006+A2:2016

Air permeability
Water tightness
Resistance to wind load
Acoustic Performance
Operating forces
Load bearing capacity of safety devices
Mechanical strength
Repeated opening / closing
Impact resistance
Behaviour between different climates
Burglar resistance
Quality assurance
Environmental management
Up to class 4
Up to 7A
Class C2
RW (C; Ctr) until 43 (–1; –4) dB
Class 2
Fulfilled
Class 3
Up to class 7 (500 000 cycles)
Class 1
Up to class 2(e) 2(d)
RC1N, RC2N, RC2, RC3
Certified according to ISO 9001:2008
Certified according to ISO 14001

Technical performance

  • High insulation multi-chamber system, quality assured thermal insulator connection
  • For single and double leaf hinged doors
  • For inward and outward opening
  • For glass or panels with infill thickness from 3 mm to 76 mm
  • Various threshold profiles with or without thermal break, also barrier free
  • Fanlights, lateral glazings fixed or opening in combination with WICLINE evo window series

Thermal insulation

  • Uf values: from 1.6 to 1.8 W/(m²K), without foam inserts

Hardware

  • Butt hinge
  • Screwed hinge
  • Concealed hinge
  • Leaf sizes (w x h): 1400 mm x 2520 mm
  • Max. leaf weight: until 200 kg

Additional designs

  • Double action doors
  • Integration frame for stick façades
  • Burglar resistance in classes RC1 to RC3

CONTACT US

Are you looking for professional advice? Do you have a suggestion that you would like to share with us? Get in contact with an expert by clicking on the link below.

Contact us