Amt für Umwelt und Energie
Amt für Umwelt und Energie
OBERSTUFENSCHULHAUS HORW
OBERSTUFENSCHULHAUS HORW
ZWEIFEL POMY-CHIPS AG (UITBREIDING)
ZWEIFEL POMY-CHIPS AG (UITBREIDING)
Download
Download
VIA VIKA
Met de visie om van VIA Vika een bezienswaardigheid te maken voor het moderne Oslo, gaat het nieuwe gebouw nu prachtig op in de omgeving; als u naar buiten stapt, ontdekt u het fjord en het bruisende culturele stadsleven. Om nog meer nadruk te leggen op VIA Vika als onderdeel van de stedelijke omgeving en het bloeiende stadsleven, is het mogelijk om op elk moment van de dag door het gebouw te lopen.
Een ander belangrijk uitgangspunt van het project is om moderne kantoorruimtes te creëren met een volledig dienstenpakket. De architectuur wil bijdragen aan het stadsleven met mogelijkheden voor restaurants en kantoren. Een vastgoedbedrijf heeft ook besloten om al zijn kantoren samen te brengen onder het dak van VIA.
VIA is onderscheiden met het begeerde BREEAM-certificaat voor de inspanningen op het gebied van duurzaamheid. Er is veel geïnvesteerd in duurzame oplossingen, zoals een gevel met gesloten spouw, zonnepanelen, een groen dak en thermische energievoorziening.
Projectdetails
Projectpartners
Bouwtekeningen











Amt für Umwelt und Energie
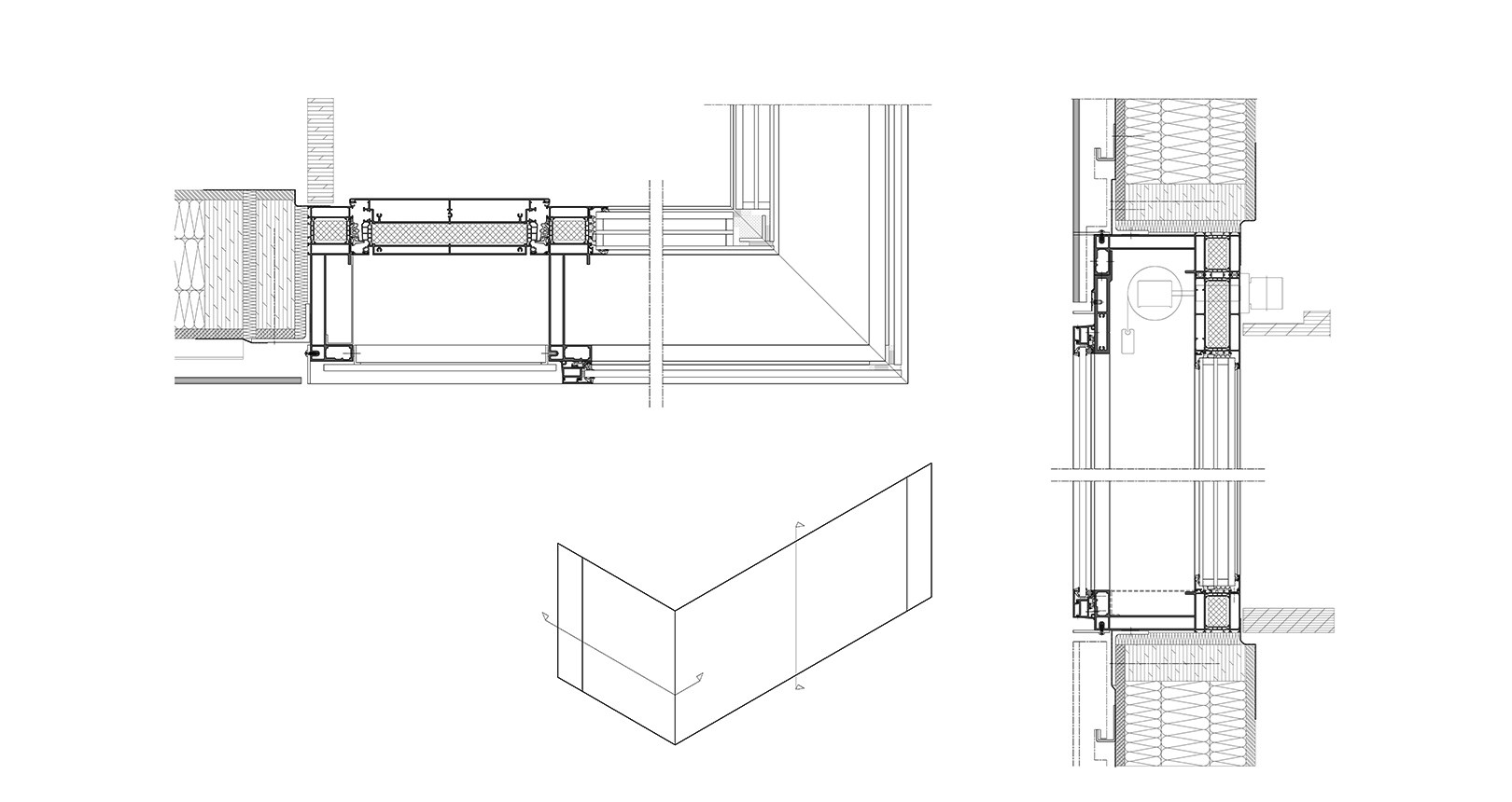
Commissioned by the Canton of Basel, the new Office for Environment and Energy (AUE) in the centre of Basel is a showcase project for sustainable construction. Through the innovative wood/concrete hybrid construction and the holistic energy concept the building serves as a role model in terms of energy efficiency, construction ecology and architecture. By using the closed cavity façade system WICTEC Modul air made of Hydro CIRCAL 75R, a recycled end-of-life aluminium, the system contributes to the high environmental quality and compliance with the Minergie-A-ECO standard.
The innovative WICTEC Modul air closed cavity system is integrated into the façade as a kind of box window. The special double-shell construction minimises heat loss in winter and, in combination with the sun protection integrated into the cavity and automated night cooling, offers very good thermal protection in summer. This ensures maximum user comfort with comparatively low maintenance costs for the building owner.
Projectdetails
Projectpartners
Bouwtekeningen










OBERSTUFENSCHULHAUS HORW
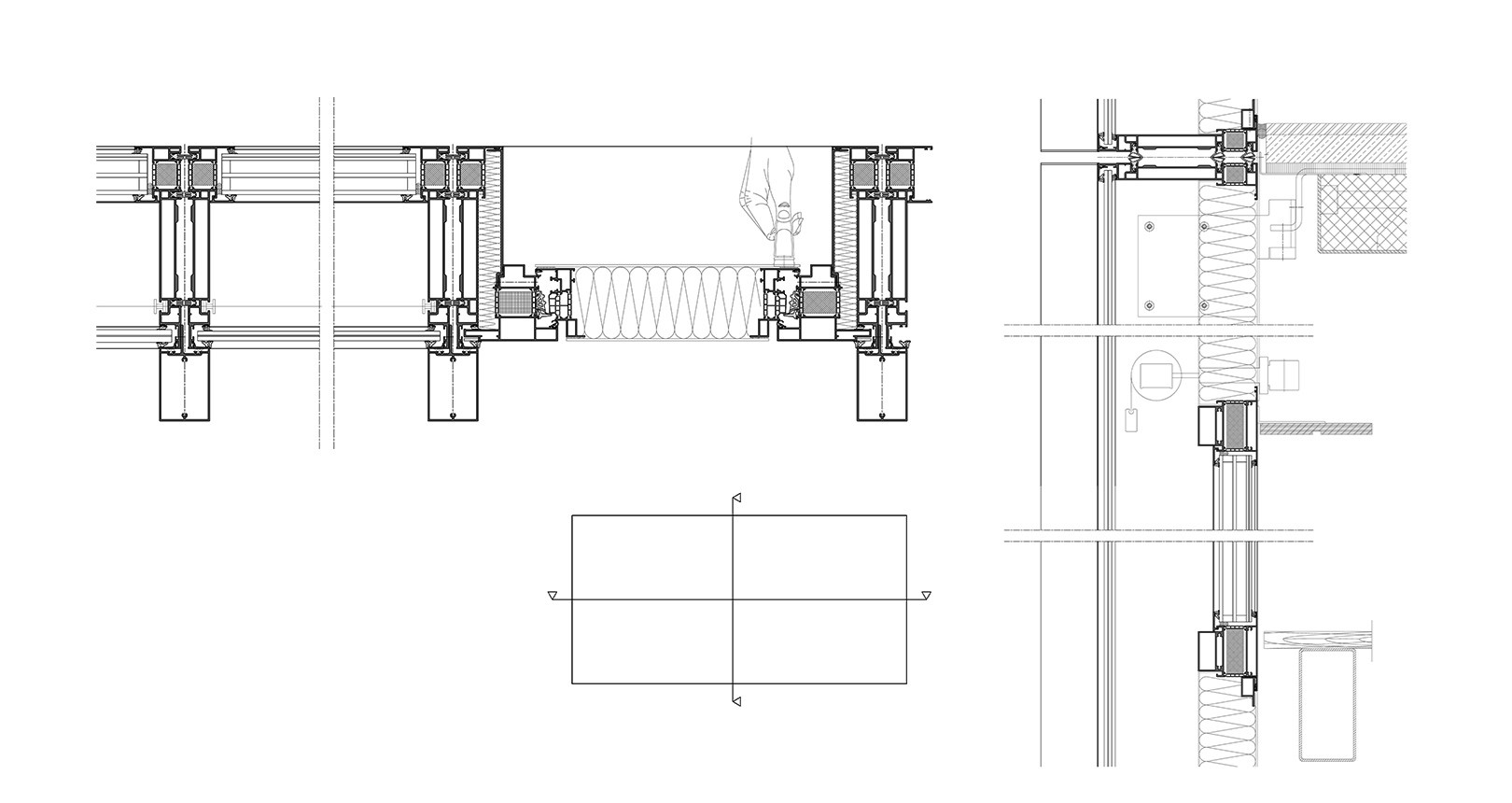
Het schoolgebouw in Horw, een stalen systeemgebouw uit de jaren 1970, voldeed niet meer aan de eisen qua ruimte, bekleding, automatisering, brandveiligheid e.d. Het volledig gerenoveerde en uitgebreide gebouw voldoet nu aan de Minergie-norm, mede dankzij de innovatieve WICTEC Modul air-gevel met gesloten spouw van WICONA.
Dankzij de technische kenmerken en het aantrekkelijke ontwerp heeft de min of meer “nieuwe” school veel bekijks. Op het huidige 7.500 m² vloeroppervlak bevinden zich 28 ruimtes voor klassen en groepen, twee keukens, een muziekkamer, een gemeenschappelijke ruimte en een directieruimte die ruimte bieden aan alles wat een moderne school met een ambitieus onderwijsprogramma nodig heeft.
Als bijzonder visueel kenmerk heeft de gevel in Horw elementen die van buiten ondoorzichtig maar van binnen doorzichtig zijn. Dit effect wordt bereikt met een speciale stof van het Zwitserse bedrijf Sefar AG (Heiden).
Technical drawings





ZWEIFEL POMY-CHIPS AG (UITBREIDING)
Het Zwitserse familiebedrijf Zweifel Pomy-Chips AG besloot om zijn chipsfabriek uit te breiden met een extra kantoor en servicegebouw. Naast extra kantoorruimte en uitbreiding van de research & development-ruimte is er in het nieuwe gebouw ook ruimte voor een personeelskantine en een bezoekerscentrum.
Om een hoogwaardig interieur te kunnen verkrijgen, moest de bouwschil bestaan uit grote glazen vlakken met zo smal mogelijke profielen voor maximaal zicht. Daarnaast moest het gevelsysteem voldoen aan hoogwaardige eisen qua duurzaamheid en energie-efficiëntie, en een overtuigende bescherming bieden tegen invloeden van zon, weer en omgevingsgeluid.
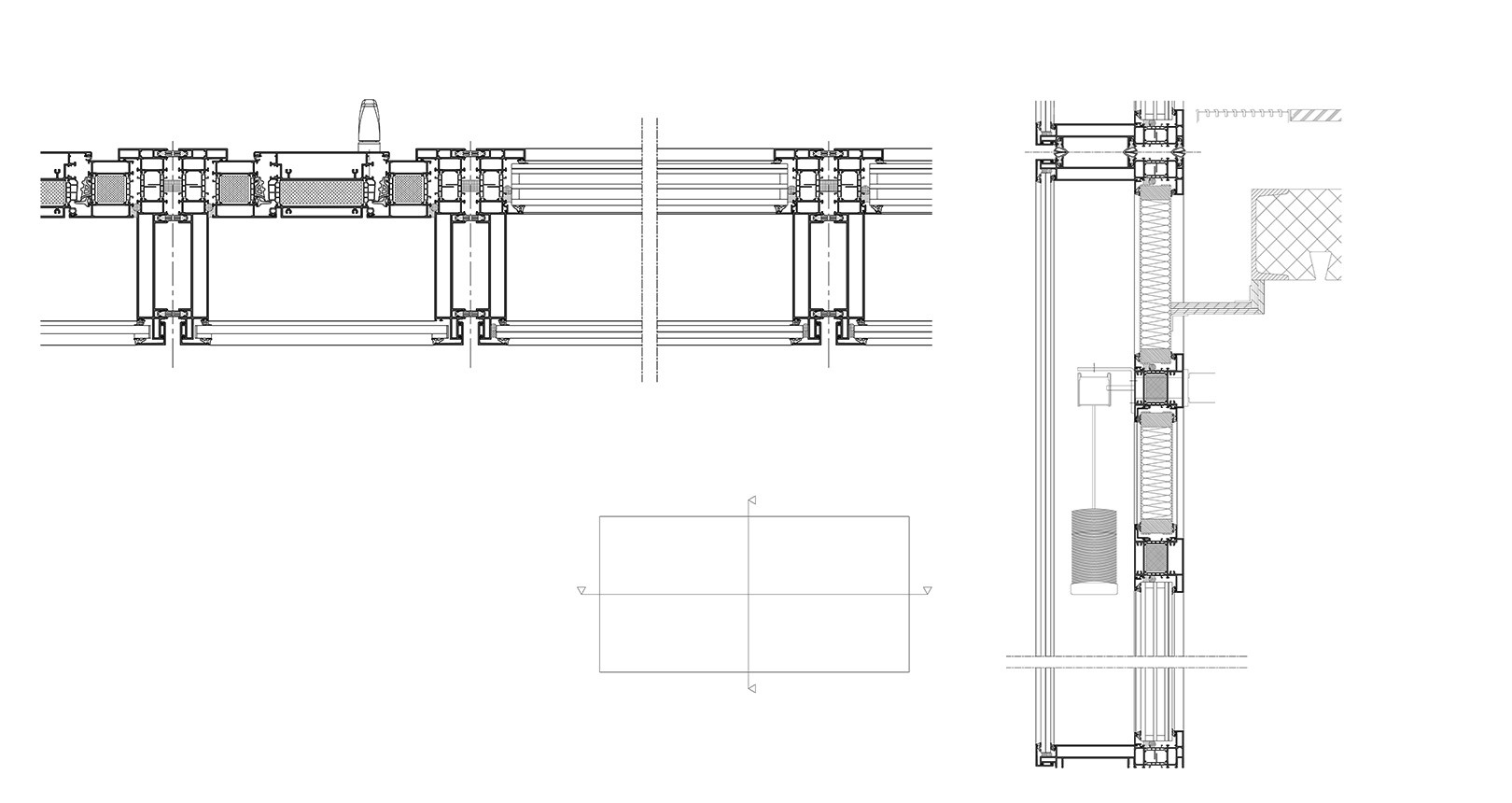
In overleg tussen klant, planoloog en architecten werd besloten dat het WICTEC Modul air-gevelsysteem met gesloten spouw aan deze eisen voldeed en dus ideaal was. Zo werden 170 elementen van het WICTEC Modul air-gevelsysteem aangebracht in een totaal geveloppervlak van 1.500 m².
Projectdetails
Projectpartners
Bouwtekeningen













