OFFICE DE L’ENVIRONNEMENT ET DE L’ÉNERGIE
OFFICE DE L’ENVIRONNEMENT ET DE L’ÉNERGIE
OBERSTUFENSCHULHAUS HORW
OBERSTUFENSCHULHAUS HORW
ZWEIFEL POMY-CHIPS AG (EXTENSION)
ZWEIFEL POMY-CHIPS AG (EXTENSION)
Téléchargez
Téléchargez
VIA Vika est un véritable monument de la ville moderne d’Oslo. Aujourd’hui, le nouvel immeuble s’intègre à merveille dans son environnement : face à l’entrée, le fjord se mêle à la culture et à une vie urbaine animée. Pour souligner davantage l’intégration de VIA Vika dans l’environnement prospère et dynamique de la ville, il sera possible de traverser l’immeuble à toute heure de la journée.
Le projet repose sur un autre principe fondamental, qui consiste à créer des espaces de bureaux modernes répondant aux exigences d’un concept de service complet. Dès lors, l’architecture doit contribuer à la vie urbaine en prévoyant des possibilités d’aménager des restaurants et des bureaux. Une société immobilière a par ailleurs décidé de réunir toutes ses agences sous le toit de VIA.
VIA a remporté le très convoité certificat BREEAM pour ses efforts environnementaux. Le projet a investi massivement dans des solutions durables avec une façade à cavité fermée, des cellules photovoltaïques, un toit végétalisé et des puits d’énergie.
Détails du projet
Partenaires du projet
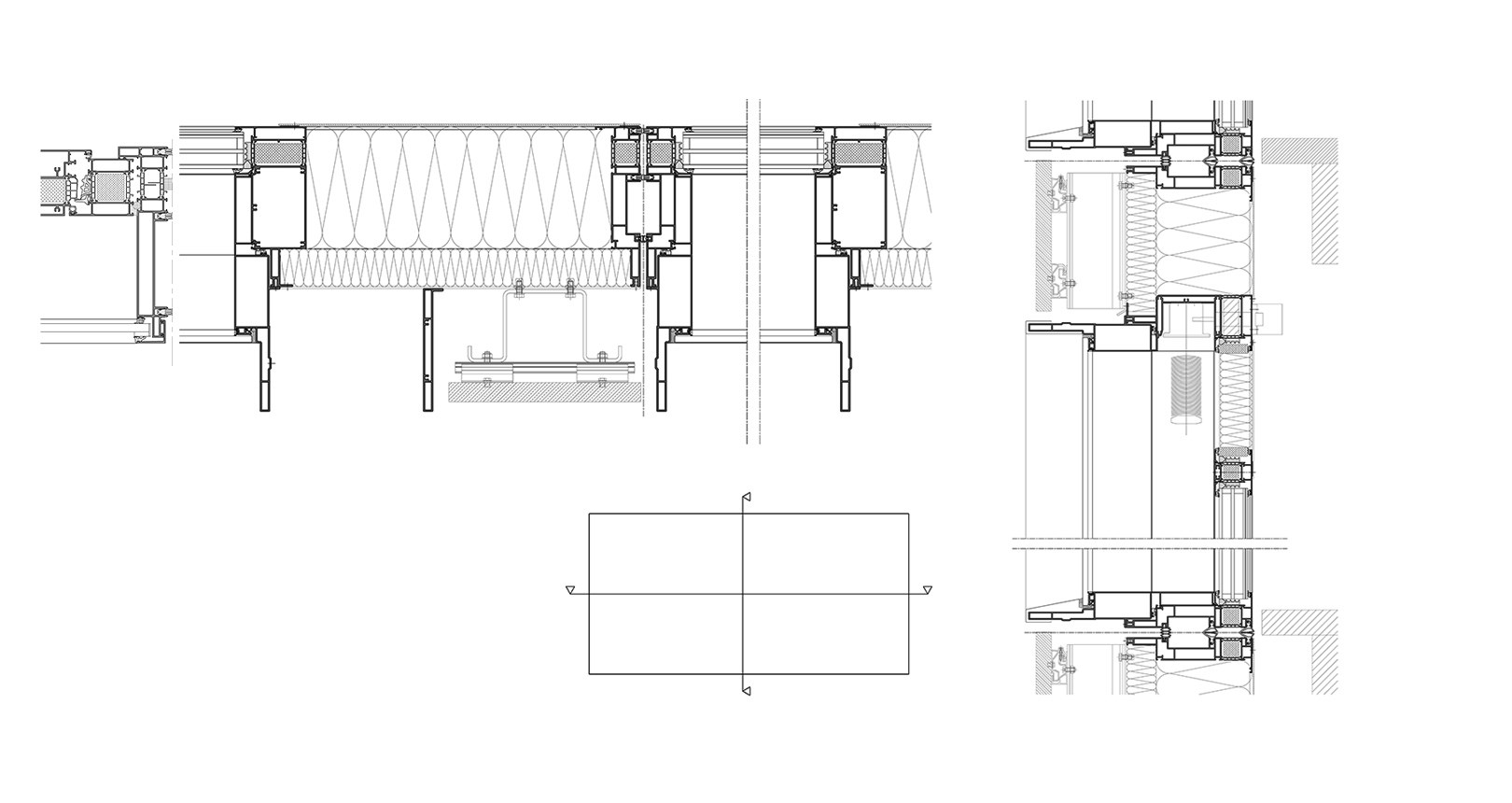
Plans techniques











Construit à la demande du canton de Bâle, le nouvel Office de l’environnement et de l’énergie (OEE) situé dans le centre de Bâle illustre parfaitement un projet de construction durable. Grâce à sa structure innovante alliant le bois et le béton et à son concept énergétique global, le bâtiment est un exemple d’architecture, d’efficacité énergétique et de construction écologique. L’utilisation du système de façade à cavité fermée WICTEC Modul air en Hydro CIRCAL 75R, un aluminium recyclé en fin de vie, contribue à la qualité environnementale élevée et au respect de la norme Minergie-A-ECO.
Le système innovant de cavité fermée WICTEC Modul air s’intègre à la façade comme un genre de fenêtre en saillie. La construction spéciale à double paroi réduit la perte de chaleur en hiver et, combinée aux stores intégrés et à la ventilation nocturne automatique, offre une excellente protection thermique en été. Cette solution assure un confort d’utilisation maximal et des coûts de maintenance relativement faibles pour le propriétaire de l’immeuble.
Détails du projet
Partenaires du projet
Plans techniques










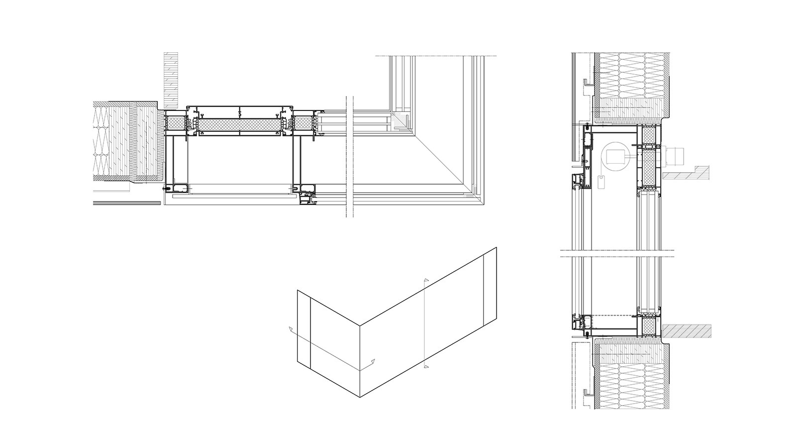
OBERSTUFENSCHULHAUS HORW
Le centre scolaire de Horw, un bâtiment en acier des années 1970, ne répondait plus aux exigences en termes d’espace, d’enveloppe climatique, d’automatisation, de sécurité incendie, etc. À présent, le bâtiment entièrement rénové et agrandi est conforme à la norme Minergie, notamment grâce au système innovant de façade à cavité fermée WICTEC Modul air.
Forte de ses qualités techniques et de son design attrayant, cette « nouvelle » école suscite désormais beaucoup d’intérêt. Sa superficie actuelle de 7 500 m² comprend 28 salles de cours et de conférences, deux cuisines, une salle de musique, une salle commune et une salle de direction, ce qui répond à tous les besoins d’une école moderne au programme d’enseignement ambitieux.
Une particularité visuelle de la façade du Schulhaus Zentrum de Horw réside dans ses éléments opaques vus de l’extérieur, mais transparents de l’intérieur. Ce résultat est obtenu grâce à un tissu spécial fabriqué par la société suisse Sefar AG (Heiden).
Détails du projet
Partenaires du projet
Plans techniques










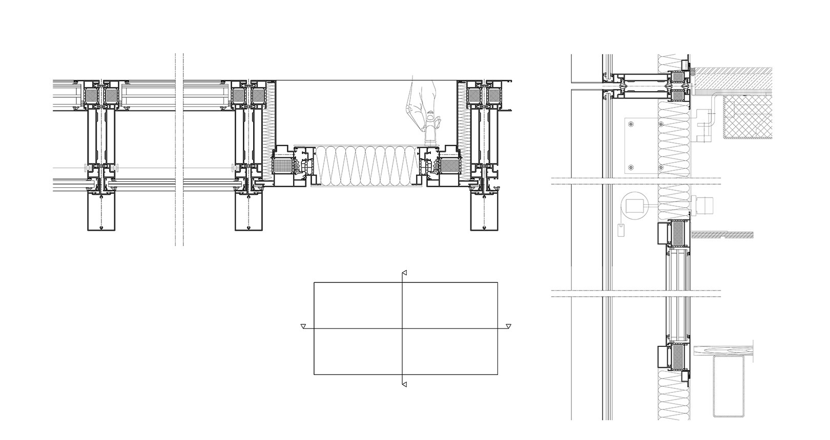
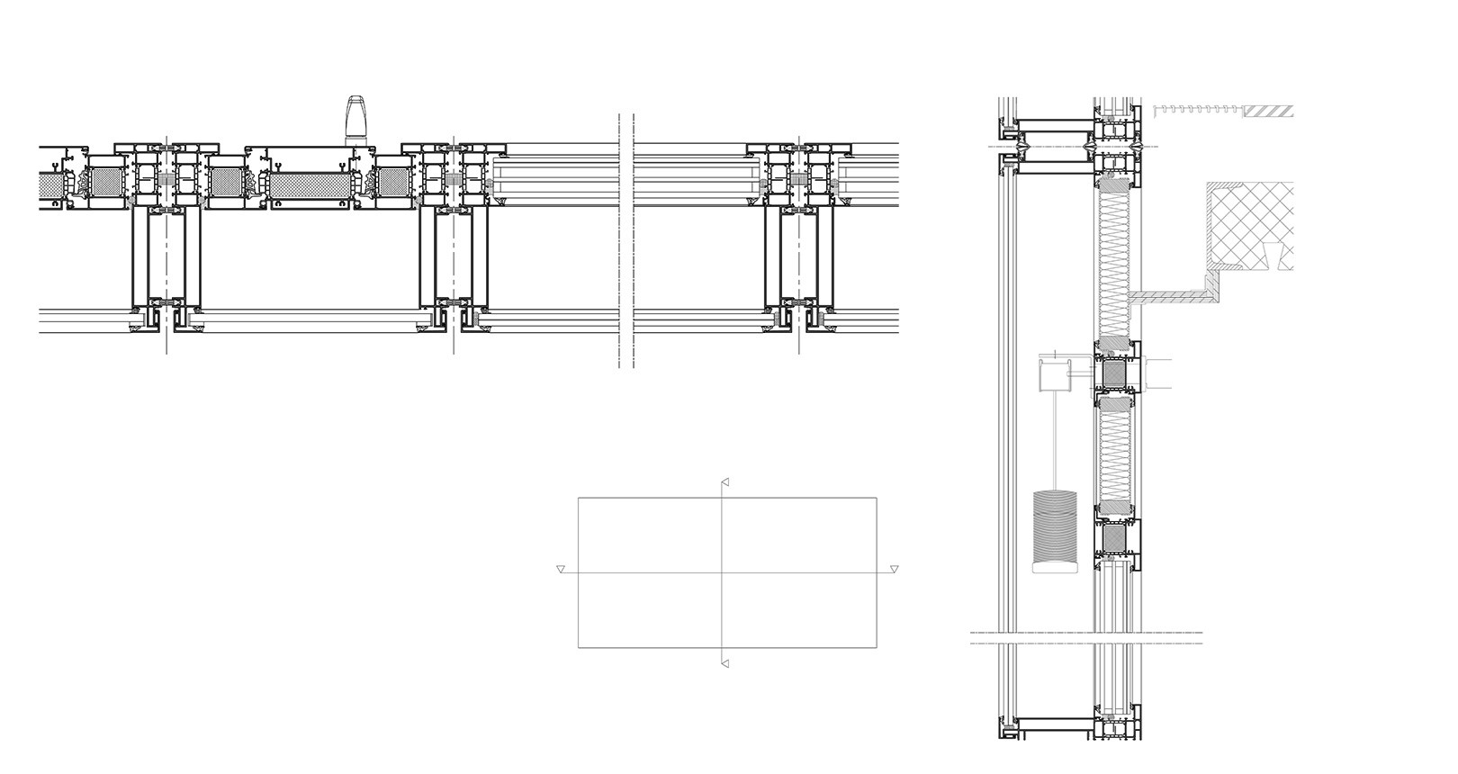
ZWEIFEL POMY-CHIPS AG (EXTENSION)
L’entreprise familiale suisse Zweifel Pomy-Chips AG a décidé d’agrandir son site de production de chips de pommes de terre en lui adjoignant un nouveau bâtiment de bureaux et de services. En plus de créer davantage d’espace pour les bureaux et pour la recherche et le développement, le nouveau bâtiment abrite également une cantine pour le personnel et un centre d’accueil des visiteurs.
Afin d’assurer une qualité élevée des espaces intérieurs, l’enveloppe du bâtiment requiert de grandes surfaces vitrées et des profilés aussi minces que possible afin d’obtenir une transparence maximale. En outre, le système de façade devait répondre à des exigences élevées en termes de durabilité et d’efficacité énergétique, tout en fournissant une protection solaire, climatique et phonique convaincante.
Après concertation entre le maître d’ouvrage, le concepteur de façade et les architectes, il a été convenu que le système de façade à cavité fermée WICTEC Modul air était idéal pour répondre à ces exigences. Ainsi, 170 éléments du système de façade WICTEC Modul air ont été installés sur une surface de façade totale de 1 500 m².
Détails du projet
Partenaires du projet
Technical drawings










To return to the WICTEC Modul air landing page, click to the following link: www.wicona.com/wictec-modul-air



