WICSLIDE 65
L’unité coulissante WICSLIDE 65 combine avec élégance des dimensions importantes avec d’excellentes propriétés thermiques. De nombreux détails permettent de personnaliser avec créativité chaque configuration d’installation. Les nombreuses combinaisons de profilés vous laissent une plus grande liberté de planification.
Performances techniques
Résultats d'essais du système / produit avec certification CE conforme à la norme EN 14351-1:2006+A2:2016
Perméabilité à l’air
Étanchéité à l'eau
Résistance au vent
Performance acoustique
Efforts de manœuvre
Résistance à la corrosion de la quincaillerie
Gestion environnementale
Classe 4
Classe 7A
Classe A3
RA,tr = 36 dB
Efforts de manœuvre
Classe 4
Certification selon la norme ISO 14001
Caractéristiques
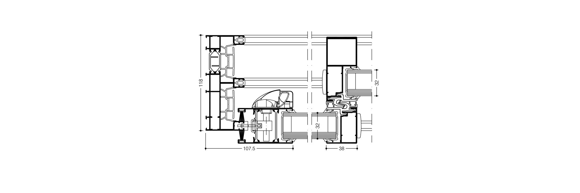
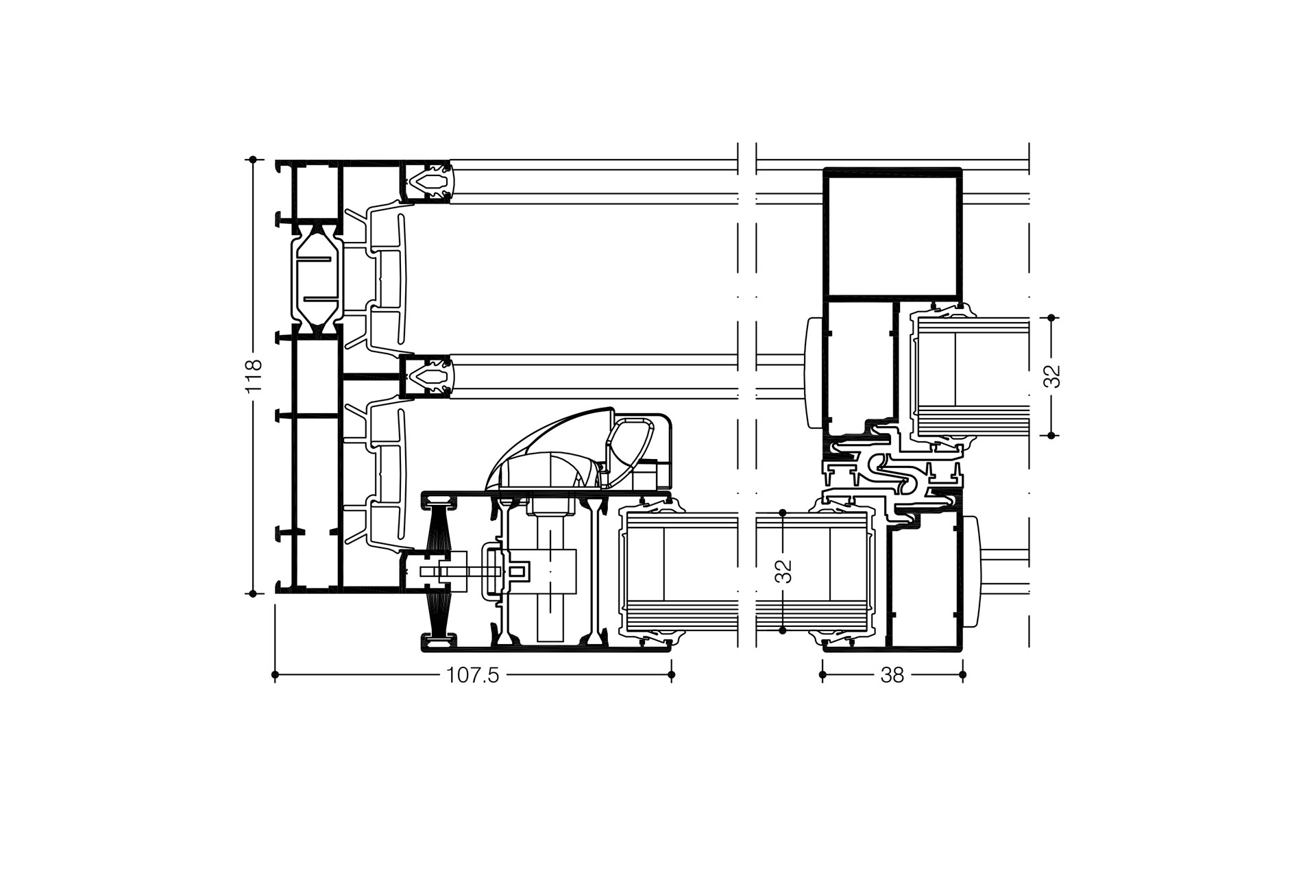
Technologie des profilés :
- Unités coulissantes avec profondeur de construction de 65 mm (double glissière) ou 118 mm (triple glissière)
- Configurations à deux, trois, quatre ou six battants
- Technologie de raccordement aux angles brevetée, offrant une grande résistance des composants et réduisant l’utilisation d’adhésifs.
- Épaisseurs de remplissage : 24 mm, 28 mm ou 32 mm
- Drainage dissimulé ou apparent
- Profilé de battant perpendiculaire dans différentes configurations, droit ou arrondi
- Technologie de raccordement des profilés personnalisable
- Facultatif : Seuil accessible
Isolation thermique
- Uw jusqu’à 1,5 W/(m²K) avec Ug = 1.0 W/(m²K)
Matériel
- Poids maximal de battant avec galets simples : 80 kg
- Poids maximal de battant avec galets doubles : 220 kg
- Dimensions de battant (L x H) : jusqu’à 2400 mm x 2500 mm
- Poignée design haut de gamme WICONA



