WICSLIDE 160
Le système de coulissant à levage a pour but premier d’augmenter le confort de manœuvre des baies coulissantes, tout particulièrement pour les dimensions les plus importantes. WICSLIDE 160 relève ce défi, et plus encore. Ce système coulissant levant s’inscrit pleinement dans la démarche écoresponsable de WICONA en proposant une solution réunissant des propriétés d’isolation thermique exceptionnelles. Elles s’accompagnent, comme à l’habitude de la marque, des plus hauts niveaux de fonctionnalité et de design.
WICSLIDE 160 s’impose comme un produit aluminium de haute technologie, se donnant pour mission de définir de nouveaux standards de fabrication. En tant que professionnel de la construction, faire le choix de ce système coulissant levant revient à garantir un niveau élevé de satisfaction client. Grâce à lui, les déperditions énergétiques de l’enveloppe d’un bâtiment sont limitées, même pour les châssis de très grandes dimensions.
Pour répondre aux besoins d’accessibilité de tous, le système coulissant levant WICSLIDE 160 propose un seuil pour personnes à mobilité réduite en option. Conforme aux normes PMR, il convient également pour un accès aux balcons ou terrasses.
Performances techniques
Résultats d'essais du système / produit avec certification CE conforme à la norme EN 14351-1:2006+A2:2016
Perméabilité à l’air
Étanchéité à l'eau
Résistance au vent
Performance acoustique
Gestion environnementale
Classe 4
E750
Classe C3
RW (;Ctr) = 43 (-1; -3) Db
Certification selon la norme ISO 14001
Performances techniques
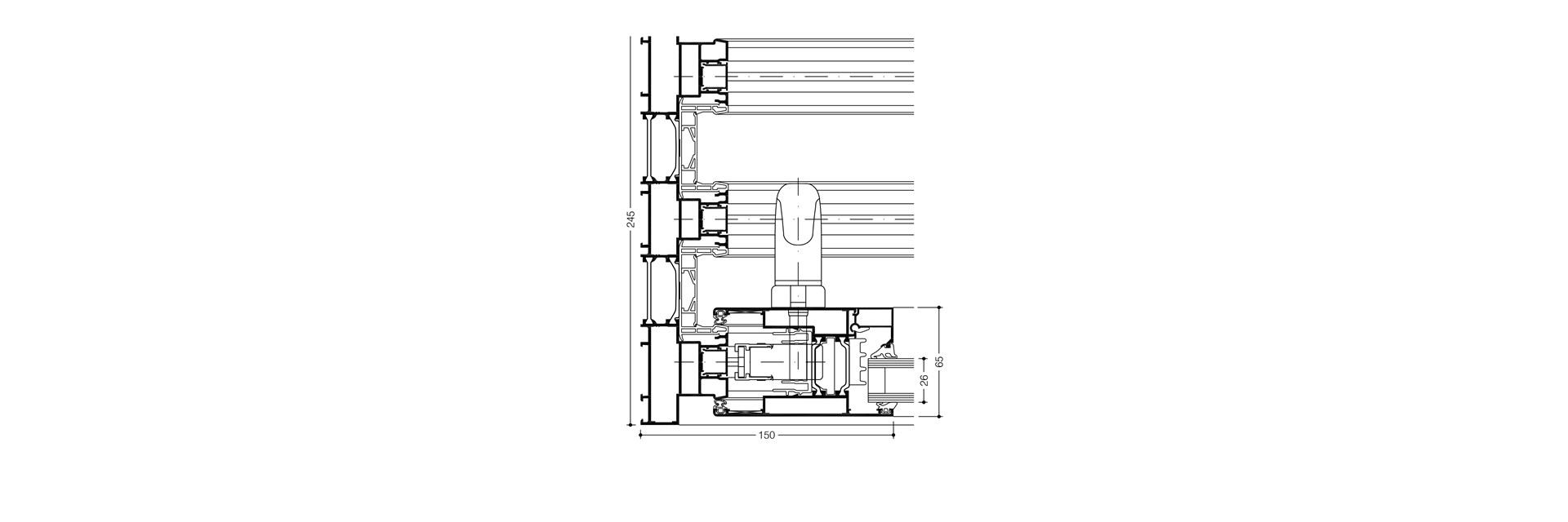
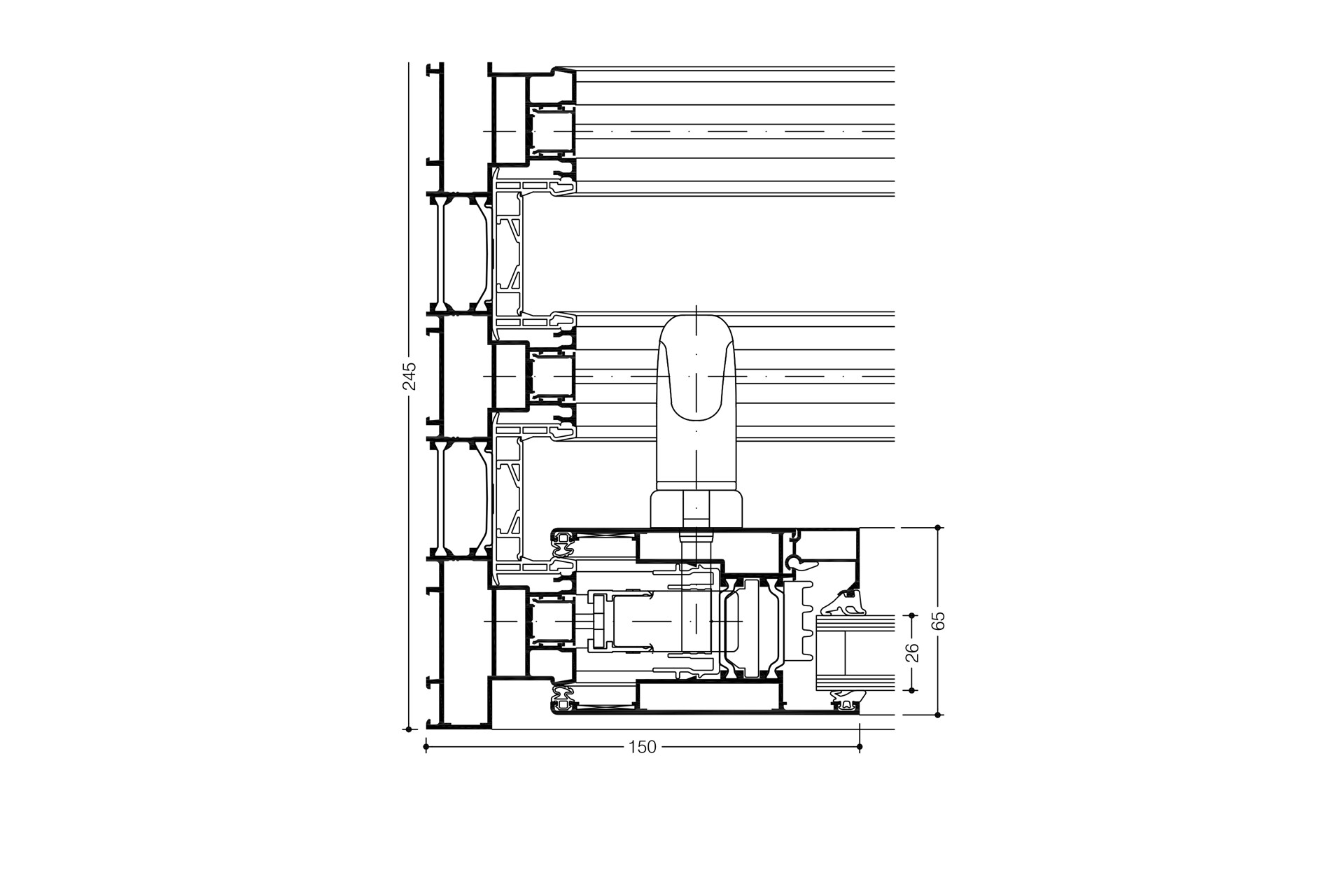
Technologie des profilés
- Zone de suspension optimisée entre les battants pour amélioration de l’isolation thermique et de l’étanchéité
- Épaisseur de remplissage de 4 mm à 50 mm
- Profondeur de construction 160 mm (double glissière) et 245 mm (triple glissière)
- Profilés de cadres spéciaux avec zone multifonctionnelle
- Possibilité de seuil pour accès sans entrave
- Confort de fonctionnement durable grâce à une technologie de glissières optimisée
- Zone de suspension sans vis apparentes
- En option avec vitrage fixe ou barres de châssis fixes
- Intégration facile dans les systèmes de murs-rideaux WICTEC 50 et WICTEC 60
Isolation thermique
- Valeurs Uw : inférieures à 1,0 W/(m²K)
Matériel
- Quincaillerie de système coulissant levant, système coulissant porteur avec brosse intégrée pour nettoyage permanent des glissières
- Dispositif de support dans le bas du battant, permettant de réduire les forces agissantes
- Dimensions de battant (l x h) : jusqu’à 3240 mm x 3400 mm
- Poids de battant jusqu’à 400 kg (coulissant levant)



