WICSTYLE 75 evo - Portes de panneau
Système complet pour les portes à feuilles simples et doubles, qui peuvent être à la fois à l’intérieur ou à l’extérieur. Avec son profil de couverture en douceur, il ne se contente pas de fournir des looks, mais sa conception transparente offre une solution de nettoyage facile. Conception caractéristique à l’aide de remplissages de revêtement de profil. Avec cette solution brevetée, WICONA introduit une porte d’entrée innovante pour répondre aux exigences les plus élevées de conception et d’efficacité énergétique. En plus de donner à la feuille couvrant l’effet visuellement harmonieux souhaité, cette construction réduit également la déformation des feuilles des portes au minimum en utilisant l’effet bi-métal.
Performances techniques
System test results / CE product pass in accordance with EN 14351-1:2006+A2:2016
Perméabilité à l’air
Étanchéité à l'eau
Résistance au vent
Efforts de manœuvre
Comportement en fonction des différents climats
Anti-effraction
Class 2
Up to class 5A
Class C2
Class 5
Up to class 2(d) / 3(e)
RC3
Performance technique
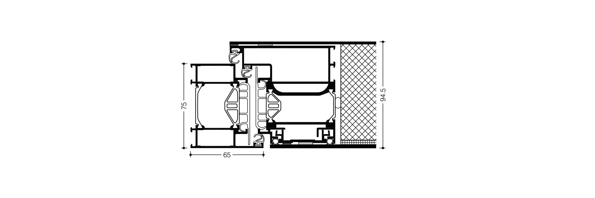
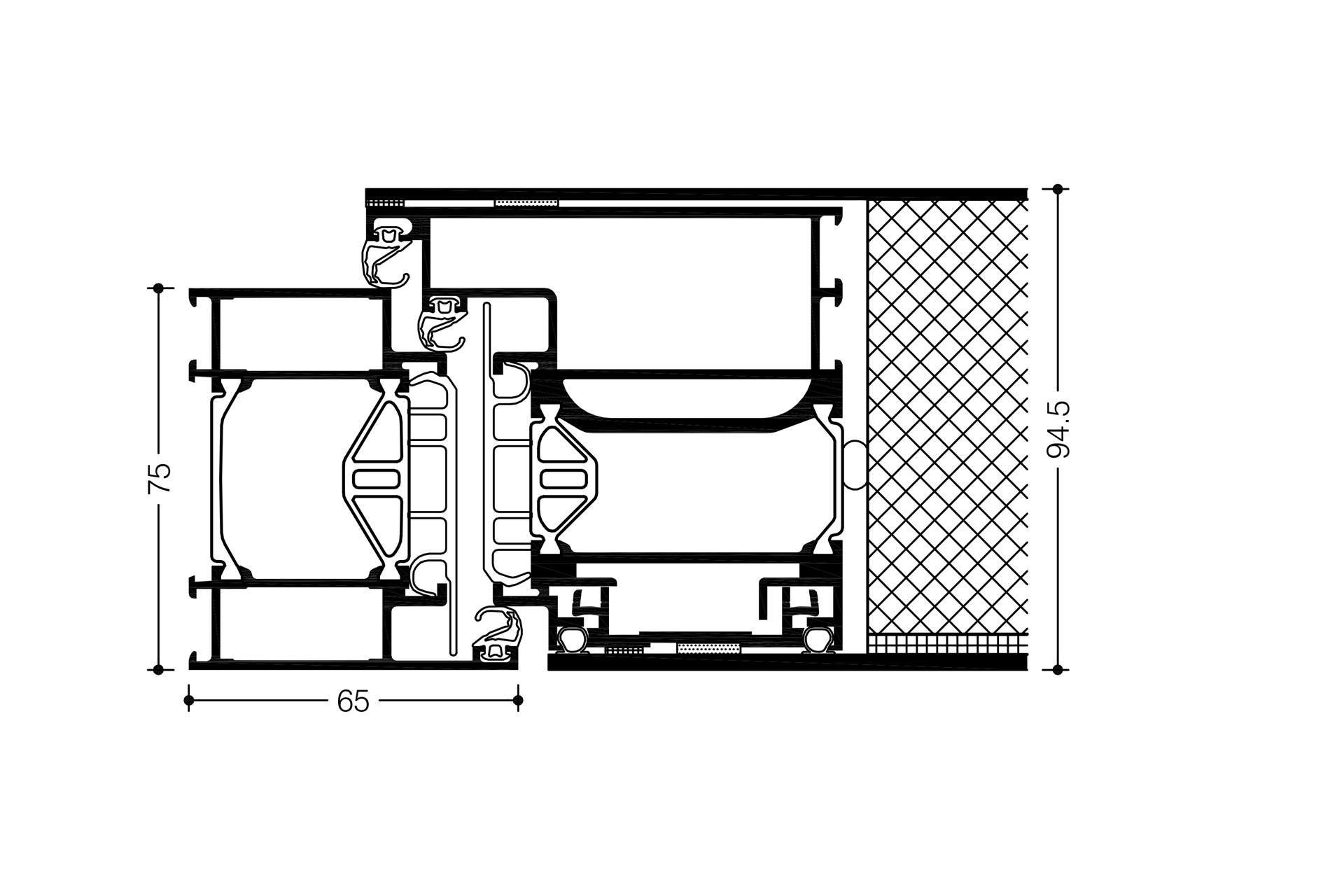
Technologie de profil
- Profil de feuille 75 mm ou 91 mm profil de ceinture qui se chevauche
- Profil de cadre 95 mm Classic Design ou 75 mm monté sur la chasse d’eau
- Revêtement de profil à sens unique (ou revêtement de feuilles)
- Revêtement de profil recto-verso
- Ouverture à une seule feuille, intérieure ou extérieure
- Double-feuille, ouverture intérieure ou extérieure
isolation thermique
- Valeurs ud jusqu’à 0,78 W/(m²K)
Matériel
- Charnières dissimulées, système d’invisio WICONA
- Poids des feuilles max. 200 kg
- Max. tailles de feuilles (w x h): 1400 mm x 2520 mm
- Verrouillage automatique wicona autotronic 834P verrouillage motorisé
- Balayage des doigts et télécommande (autres options disponibles)
- Système intégré d’entraînement de porte dissimulé

