WICSTYLE 75 evo - design classique
Les contours de profil biseautés et les ceintures qui se chevauchent sont caractéristiques de la conception classique de la série de portes en aluminium WICSTYLE evo. Ce design souligne un style qui est souvent demandé pour l’architecture résidentielle. Idéal pour les nouveaux bâtiments et pour les rénovations énergétiques.
Performances techniques
System test results / CE product pass in accordance with EN 14351-1:2006+A2:2016
Perméabilité à l’air
Étanchéité à l'eau
Résistance au vent
Performance acoustique
Efforts de manœuvre
Capacité de résistance des dispositifs de sécurité
Résistance mécanique
Ouvertures / Fermetures répétées
Résistance aux chocs
Comportement en fonction des différents climats
Anti-effraction
Assurance qualité
Gestion environnementale
Up to class 4
Up to 7A
Class C2
RW (C; Ctr) until 43 (–1; –4) dB
Class 2
Fulfilled
Class 3
Up to class 7 (500 000 cycles)
Class 1
Up to class 2(e) 2(d)
RC1N, RC2N, RC2, RC3
Certified according to ISO 9001:2008
Certified according to ISO 14001
performance technique
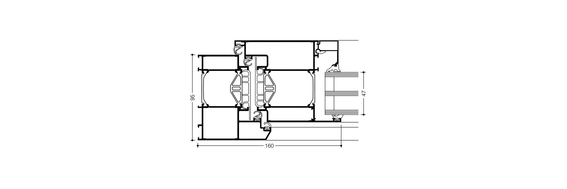
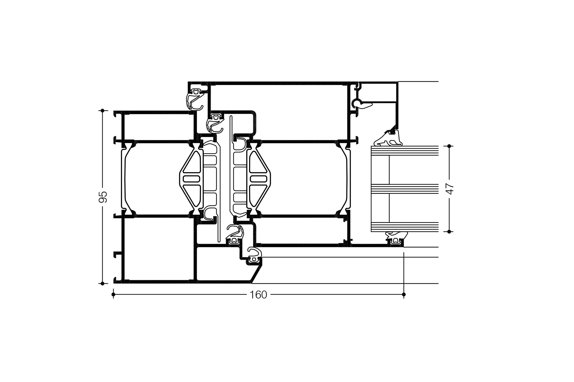
technologie de profil
- Système multi-chambre à isolation élevée, connexion isolante thermique assurée de qualité
- Pour portes à charnières à feuilles simples et doubles
- Pour l’ouverture vers l’intérieur et vers l’extérieur
- Pour verre ou panneaux d’épaisseur intercalaire de 3 mm à 76 mm
- Différents profils de seuil avec ou sans rupture thermique, également sans barrière
- Fanlights, vitrages latéraux fixes ou d’ouverture en combinaison avec la série de fenêtres WICLINE evo
ISOLATION THERMIQUE
- Uf valeurs: de 1,6 à 1,8 W/(m²K), sans inserts en mousse
Matériel
- Charnière de bout de bout
- Charnière vissée
- Charnière dissimulée
- Taille des feuilles (w x h): 1400 mm x 2520 mm
- Poids des feuilles max. : jusqu’à 200 kg
options de conception supplémentaires
- Portes à double action
- Cadre d’intégration pour façades de bâton
- Résistance de cambrioleur dans les classes RC1 à RC3


