WICSTYLE 75 evo - Articulé
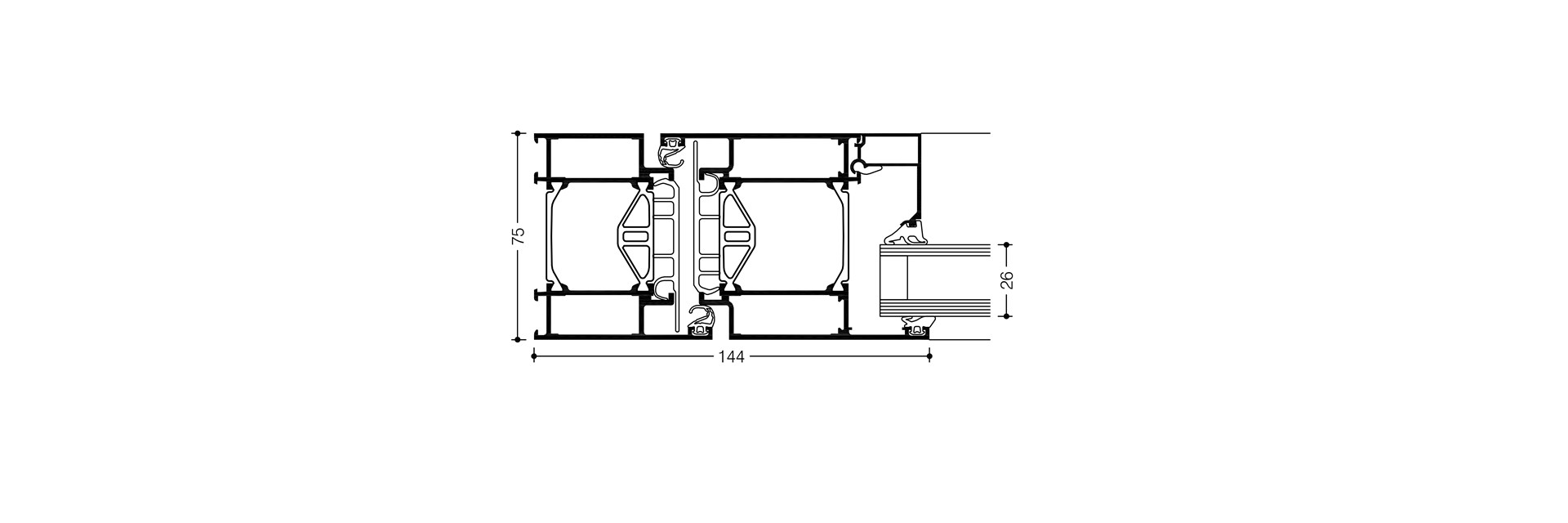
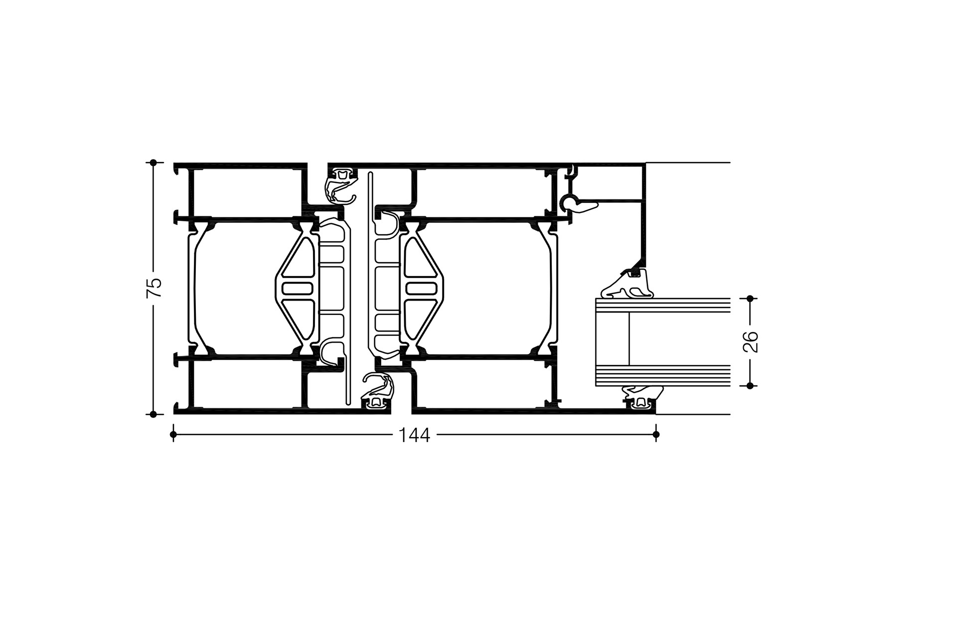
Avec une profondeur de profil de 75 mm, WICSTYLE 75 evo se met en avant en termes d’isolation thermique et de caractéristiques physiques. Ses performances techniques exceptionnelles et sa gamme d’applications en font la solution de porte idéale pour toutes les exigences actuelles et futures en architecture, tant dans les nouveaux bâtiments que dans les rénovations.
Performances techniques
System test results / CE product pass in accordance with EN 14351-1:2006+A2:2016
Perméabilité à l’air
Étanchéité à l'eau
Résistance au vent
Performance acoustique
Efforts de manœuvre
Capacité de résistance des dispositifs de sécurité
Résistance mécanique
Ouvertures / Fermetures répétées
Résistance aux chocs
Comportement en fonction des différents climats
Anti-effraction
Résistance pare-balles
Assurance qualité
Gestion environnementale
Up to class 2
Up to 7A
Class C2
RW (C; Ctr) until 43 (–1; –4) dB
Class 2
Fulfilled
Class 3
Up to class 7 (500 000 cycles)
Class 1
Up to class 2(e) 2(d)
RC1N, RC2N, RC2, RC3
Up to class FB4 NS
Certified according to ISO 9001:2008
Certified according to ISO 14001
performance technique
Technologie de profil
- Système multi-chambre haute isolation dans la conception symétrique, connexion d’isolant thermique assurée de qualité
- Pour portes à charnières à feuilles simples et doubles
- Pour l’ouverture vers l’intérieur et vers l’extérieur
- Pour verre ou panneaux d’épaisseur intercalaire de 6 mm à 60 mm
- Différents profils de seuil avec ou sans rupture thermique, également sans barrière
- Fanlights, vitrages latéraux fixes ou d’ouverture en combinaison avec la série de fenêtres WICLINE evo
ISOLATION THERMIQUE
- Uf valeurs: de 1,6 à 1,8 W/(m²K), sans inserts en mousse
Matériel
- Charnière de bout de bout
- Charnière vissée
- Charnière dissimulée
- Taille des feuilles (w x h): 1400 mm x 2520 mm
- Poids des feuilles max. : jusqu’à 200 kg, pour la résistance aux balles avec charnières supplémentaires jusqu’à 400 kg
options de conception supplémentaires
- Portes à double action
- Cadre d’intégration pour façades de bâton
- Résistance de cambrioleur dans les classes RC1 à RC3
- Résistance aux balles dans la classe FB4
- Remplissage des feuilles qui se chevauche d’un côté ou des deux côtés


