WICSTYLE 65 ED- porte coulissante automatique
WICSTYLE 65ED, la porte coulissante automatique économe en énergie pour les bâtiments commerciaux, a été développée en collaboration avec le leader mondial suisse Gilgen Door Systems AG, sur la base du profil WICSTYLE 65. Les portes coulissantes automatiques ont de courts cycles ouverts et étroits qui ont été optimisés pour le débit. Par conséquent, lorsqu’ils sont en service, ils conservent la plus grande quantité de chaleur à l’intérieur du bâtiment. Un rôle majeur dans l’efficacité énergétique, cependant, est le moment où la porte reste définitivement fermée – comme du jour au lendemain. Pendant ces périodes, WICSTYLE 65ED protège le bâtiment de manière fiable contre les pertes d’énergie excessives, contribuant ainsi de manière significative à l’amélioration du bilan énergétique global du bâtiment.
Performances techniques
System test results / CE product pass in accordance with EN 14351-1:2006+A2:2016
Perméabilité à l’air
Étanchéité à l'eau
Résistance au vent
Assurance qualité
Gestion environnementale
Class 2
5A
Class B1
Certified according to ISO 9001:2008
Certified according to ISO 14001
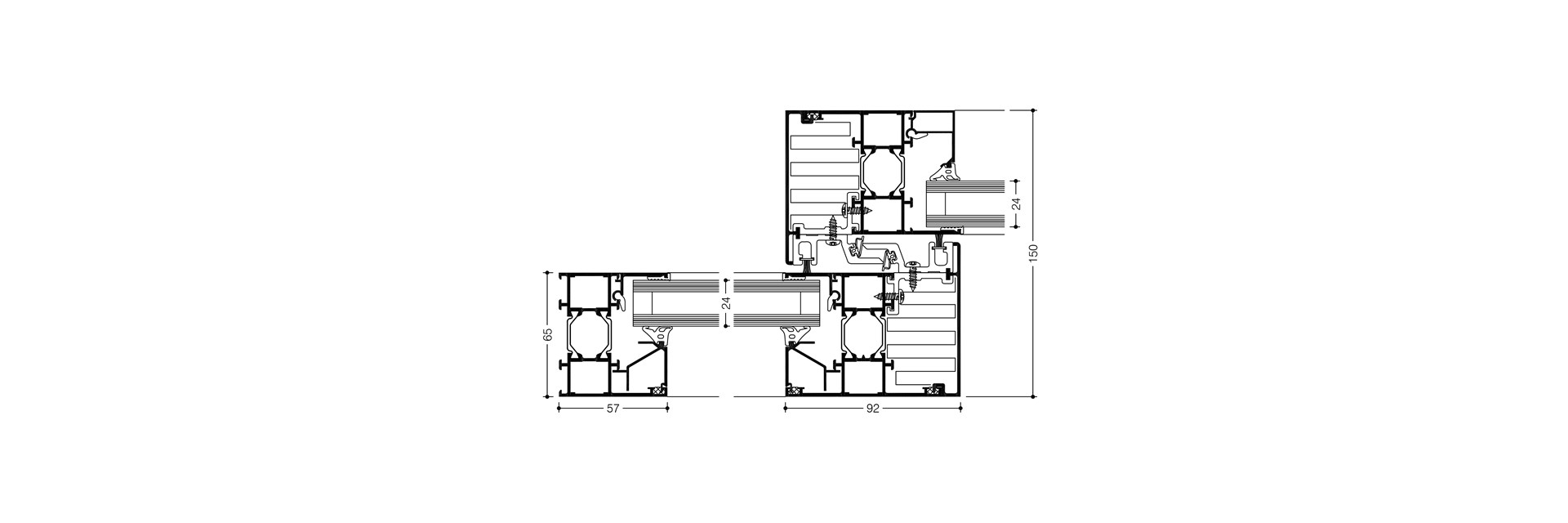
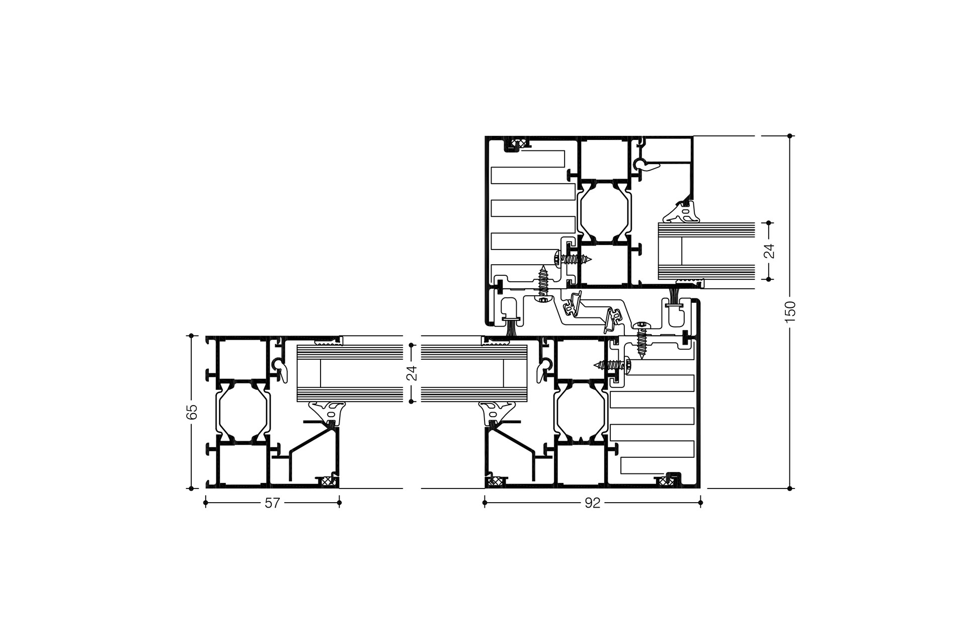
performance technique
technologie de profil
- Sécurité testée conformément aux règlements de sécurité personnelle de la norme DIN 18650
- Dispositif de porte complet approuvé (système de profil thermiquement isolé et unité d’entraînement), selon DIN EN 14351-1
- Principales valeurs d’isolation thermique avec des valeurs Ud inférieures à 1,5 W/(m²K)
- Jusqu’à 70 % moins de perte d’énergie en situation fermée
- Amélioration de l’étanchéité par rapport aux joints doubles environnants dans l’application de labyrinthe, avec des valeurs comparables aux portes d’entrée résidentielles
- Automatisation fiable par Gilgen Door Systems
- Idéal pour les nouvelles constructions et les rénovations
- Aspect attrayant dû aux lignes de vue étroites et à l’intégration coordonnée de la commande de porte
- Épaisseur de remplissage de 24 mm à 27 mm
- Option de versions coulissantes à feuilles simples ou doubles, avec ou sans vitrage latéral
- Intégration facile de fonctions et d’accessoires supplémentaires, tels que des serrures multipoints pour une résistance accrue aux cambrioleurs
ISOLATION THERMIQUE
- Valeurs Ud : en dessous de 1,5 W/(m²K)
SYSTÈME D’ENTRAÎNEMENT / RACCORDS
- Dispositifs de porte simple ou double feuille
- Systèmes d’entraînement SLA, SLX et SLX redondants
- Possible pour les issues de secours
- Poids intercalaires: jusqu’à 150 kg
- Taille des feuilles (w x h): jusqu’à 2000 mm x 3000 mm




