Résistance aux balles
Suivant le principe DE WICONA Unisys, la version à balles des portes en aluminium WICSTYLE a été développée à partir de la gamme WICSTYLE evo. La conception de la porte standard WICSTYLE evo est agrandie à l’aide de profils en aluminium montés sur surface pour offrir une protection contre les armes à feu. L’apparence des façades des portes qui sont protégées de cette façon reste visuellement inchangée par rapport à la version standard. Il n’y a pas de changement non plus au processus de manufac-turing, donc aucun temps supplémentaire n’est nécessaire. Naturellement, la porte doit être complétée par des serrures multipoint et un vitrage adapté aux balles.
Performances techniques
System test results / CE product pass in accordance with EN 14351-1:2006+A2:2016
Informations générales
See classification of the respective WICSTYLE door series
performance technique
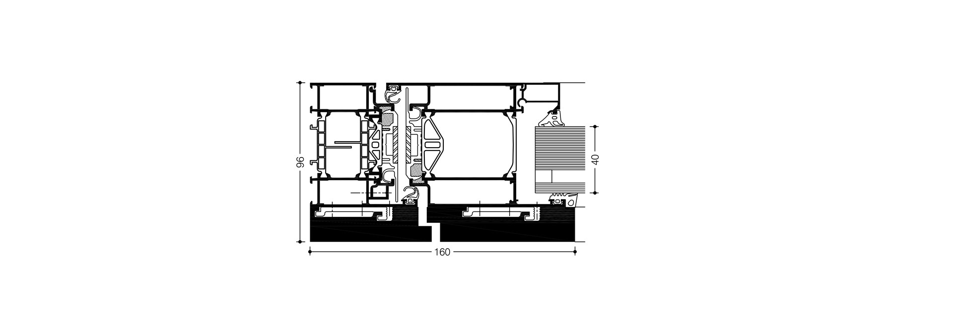
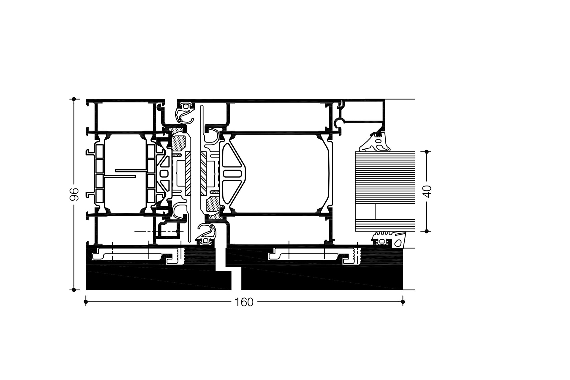
RÉSISTANCE AUX BALLES SELON EN 1522
- La série de portes WICSTYLE 65 evo et WICSTYLE 75 evo ont été testées selon cette norme dans diverses combinaisons de profils, et ont été certifiées avec succès dans les classes FB4 S et FB4 NS.
- La résistance aux balles peut être combinée à la résistance des cambrioleurs dans les classes RC1N, RC2N, RC2, RC3 selon l’EN 1627.
COMBINAISONS POSSIBLES AVEC D’AUTRES SÉRIES DE PRODUITS WICONA EN RÉSISTANCE AUX BALLES DANS LA CLASSE FB4
- Windows WICLINE 65 evo / WICLINE 75 evo
- Murs-rideaux de bâton WICTEC 50
Résistance aux balles selon l’EN 1522 / classifications
WICSTYLE 65 evo / WICSTYLE 75 evo Portes charnières, simple ou double feuille, ouverture intérieure ou extérieure
FB4 S / FB4 NS


