FENÊTRE RESPIRANTE WICLINE 115 AFS
Avec le nouveau système de fenêtres composites WICLINE 115 AFS, WICONA offre aux architectes, designers et constructeurs une solution pour des projets complexes avec des exigences extrêmement élevées en termes d’isolation thermique et acoustique et de protection solaire, à la fois pour la nouvelle construction et la rénovation. Le système de fenêtres composites WICLINE 115 AFS combine une fenêtre intérieure avec une fenêtre supplémentaire à l’extérieur. Cela crée un espace entre les deux ailes de fenêtre. Cet espace offre une meilleure isolation thermique et acoustique - sans interventions supplémentaires.
Ces profils en aluminium sont fabriqués à partir d’Hydro CIRCAL 75R, aluminium recyclé à faible teneur en carbone. Cela signifie qu’il se compose d’au moins 75% de matériaux recyclés dérivés de la menuiserie en aluminium existante. Il a l’une des empreintes carbone les plus faibles au monde : environ 2,3 kg de CO2 par kilo d’aluminium.
Documentation
Performances techniques
Résultats des tests système/produits avec certification CE conformément à DIN EN 14351-1: 2010-08
Isolation thermique Uf
Isolation thermique Uw
Isolation acoustique
Perméabilité à l'air
Étanchéité à l'eau
Résistance au vent
Durabilité mécanique
Résistance ouverture répétée
Standard
EN ISO 10077-2
EN ISO 10077-1
EN ISO 717-1
EN 12207
EN 12208
EN 12210
EN 13115
EN 12400
Classe
1.1 – 1.3 W/(m²K)
below 0.80 W/(m²K)*
up to 50 (-1;-4) dB
4
up to E1200
up to C5/B5
up to 4
up to 3
performance technique
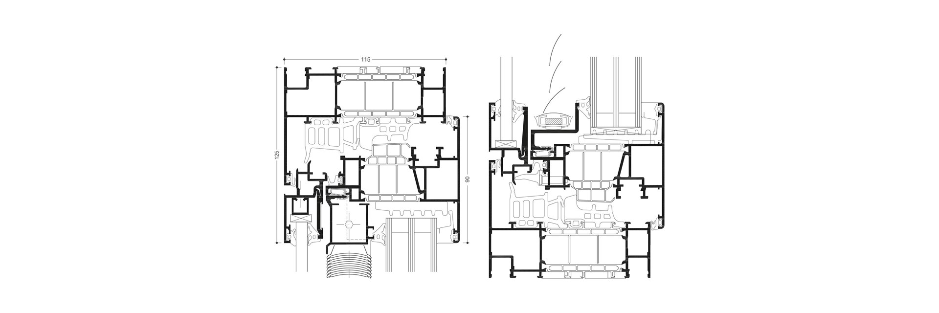
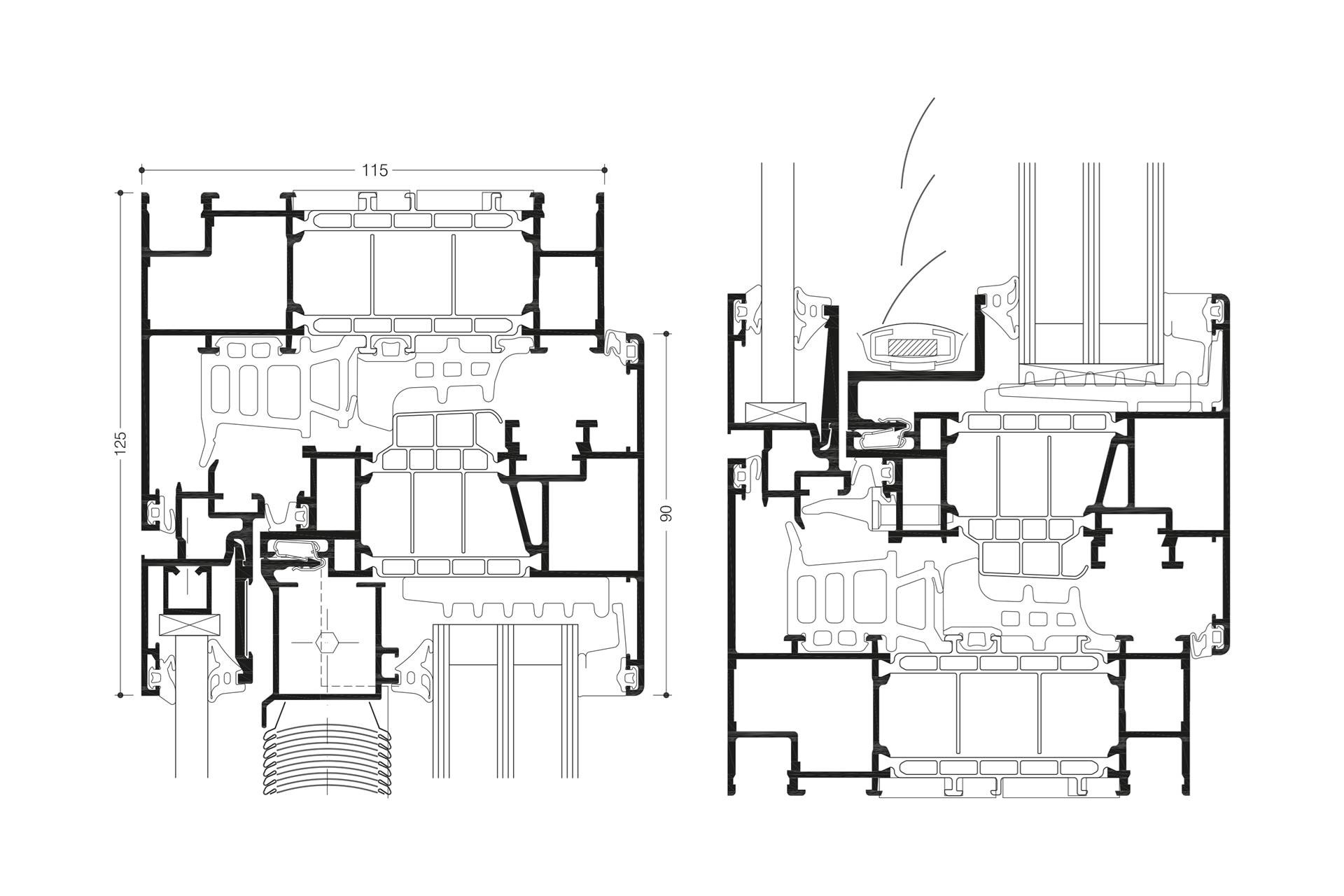
TECHNOLOGIE DE PROFIL
- Profondeur du profil: 115 mm
- Profondeur de construction: 125 ou 135 mm
- Épaisseur de remplissage jusqu’à 48 mm (58 mm) et jusqu’à 100 mm avec vitrage fixe
- Compensation de pression de la cavité
- Performances de condensation optimisées dans la cavité, confirmées officiellement par l’Institut CSTB en France (Centre Scientifique et
- Technique du Bâtiment)
- Système aveugle dissimulé qui est protégé contre les conditions météorologiques et la saleté, pas de pénétration de la lumière du jour sur les côtés
- Confort d’exploitation le plus élevé
- Installation, entretien et nettoyage faciles grâce à une ceinture extérieure opérable indépendamment
- Ceinture optionnelle avec zone universelle pour la protection solaire
PROFIL SIGHTLINES
- Profils de cadre de 84 mm à 94 mm
- Profil transom de 128 mm à 158 mm
- Profil de ceinture 35 mm
PERFORMANCE THERMIQUE
- Uw valeurs inférieures à 0,80 W/(m²K) avec une profondeur de cadre de 115 mm et une ligne de vue élégante de seulement 125 mm, une taille unitaire de 1230 mm x 1480 mm et Ug valeur de 0,60 W/(m²K) à 0,031 W/(mK) psi
ISOLATION SONORE
- Jusqu’à 50 dB
(Vitrage d’isolation sonore à l’intérieur, vitrage unique à l’extérieur) - Jusqu’à 43 dB
(Vitrage isolé à l’intérieur, vitrage unique à l’extérieur)
Matériel
- Matériel dissimulé de haute qualité avec DPS (Direct Positioning System).
- Les composants peuvent être installés dans n’importe quel ordre.
- Poids de ceinture jusqu’à 200 kg avec charnières visibles ou dissimulées
- Poids de ceinture jusqu’à 200 kg
- Tailles de ceinture (w x h): jusqu’à 1200 mm x 2500 mm
Types d’ouverture
Types d’ouverture
- Ouverture à la française
- oscillo-battante
- à soufflet

