Top accroché projection
Une vue élégante combinée à une ventilation efficace sont les caractéristiques du système de fenêtre en aluminium WICLINE evo dans la version comme une fenêtre de poche de puissance. De grandes ailes peuvent également être ouvertes vers l’extérieur grâce à des cisailles de poche cachées, où les fenêtres peuvent être fixées dans toutes les positions. Les profils de fenêtres spéciaux pour les fenêtres autonomes ou les ailes intégrées et les différentes tailles de ciseaux assurent une flexibilité maximale.
Documentation
Performances techniques
System test results / CE product pass in accordance with EN 14351-1:2006+A2:2016
Perméabilité à l’air
Étanchéité à l'eau
Résistance au vent
Efforts de manœuvre
Résistance mécanique
Ouvertures / Fermetures répétées
Résistance aux chocs
Assurance qualité
Gestion environnementale
Class 4
E1200
Class C5 / B5
Class 1
Class 4
Class 2 (10 000 cycles)
Class 3
Certified according to ISO 9001:2008
Certified according to ISO 14001
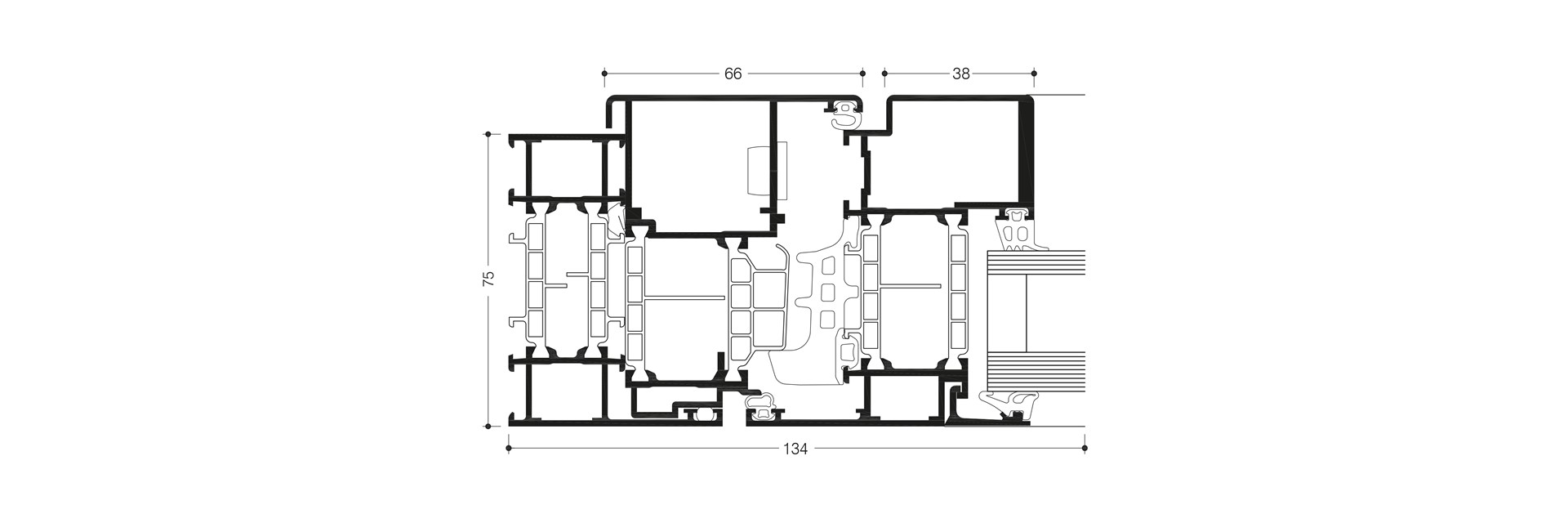
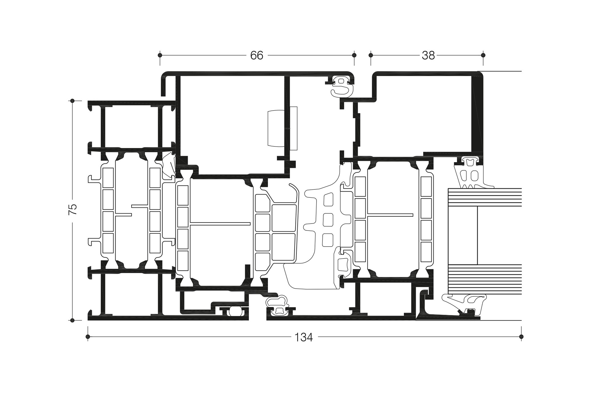
Caractéristiques techniques
Description de la construction
- Système multi-chambres hautement isolé thermiquement
- Technologie brevetée d’angle et de connexion T pour une stabilité élevée des composants
- Épaisseur de remplissage : jusqu’à 69 mm
- Pour l’intégration dans les façades de style-ligne
- Facultatif avec profil intégré
Isolation thermique
- Valeur Uf jusqu’à 1.5W/(m2K)
- Votre valeur jusqu’à 1,0 W/(m²K) avec triple vitrage
concept de joint
- Joint central avec des coins formés
Matériel
- Ciseaux intégrés et entièrement cachés, avec contrôle de la hauteur
- Fonctionnement manuel ou automatisé
- Max. poids de l’aile: 150 kg
- Max. dimensions de l’aile (B x H): 2000 mm x 2200 mm




