ouverture extérieure, haut ou côté accroché
Une ouverture d’aile extérieure offre souvent des avantages intéressants : ventilation efficace, pas d’ailes dérangeantes dans l’espace, fonctionnement manuel ou motorisé. Avec ses très grandes ailes et ses caractéristiques optimisées, WICLINE evo offre une belle alternative pour les concepteurs dans cette configuration.
Documentation
Performances techniques
System test results / CE product pass in accordance with EN 14351-1:2006+A2:2016
Perméabilité à l’air
Étanchéité à l'eau
Résistance au vent
Efforts de manœuvre
Capacité de résistance des dispositifs de sécurité
Résistance mécanique
Ouvertures / Fermetures répétées
Résistance aux chocs
Assurance qualité
Gestion environnementale
Class 4
E1200
Class C5 / B5
Class 1
Fulfilled
Class 4
Class 2 (10 000 cycles)
Class 3
Certified according to ISO 9001:2008
Certified according to ISO 14001
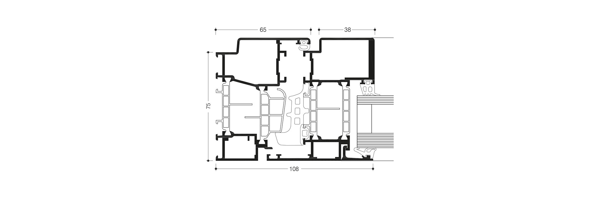
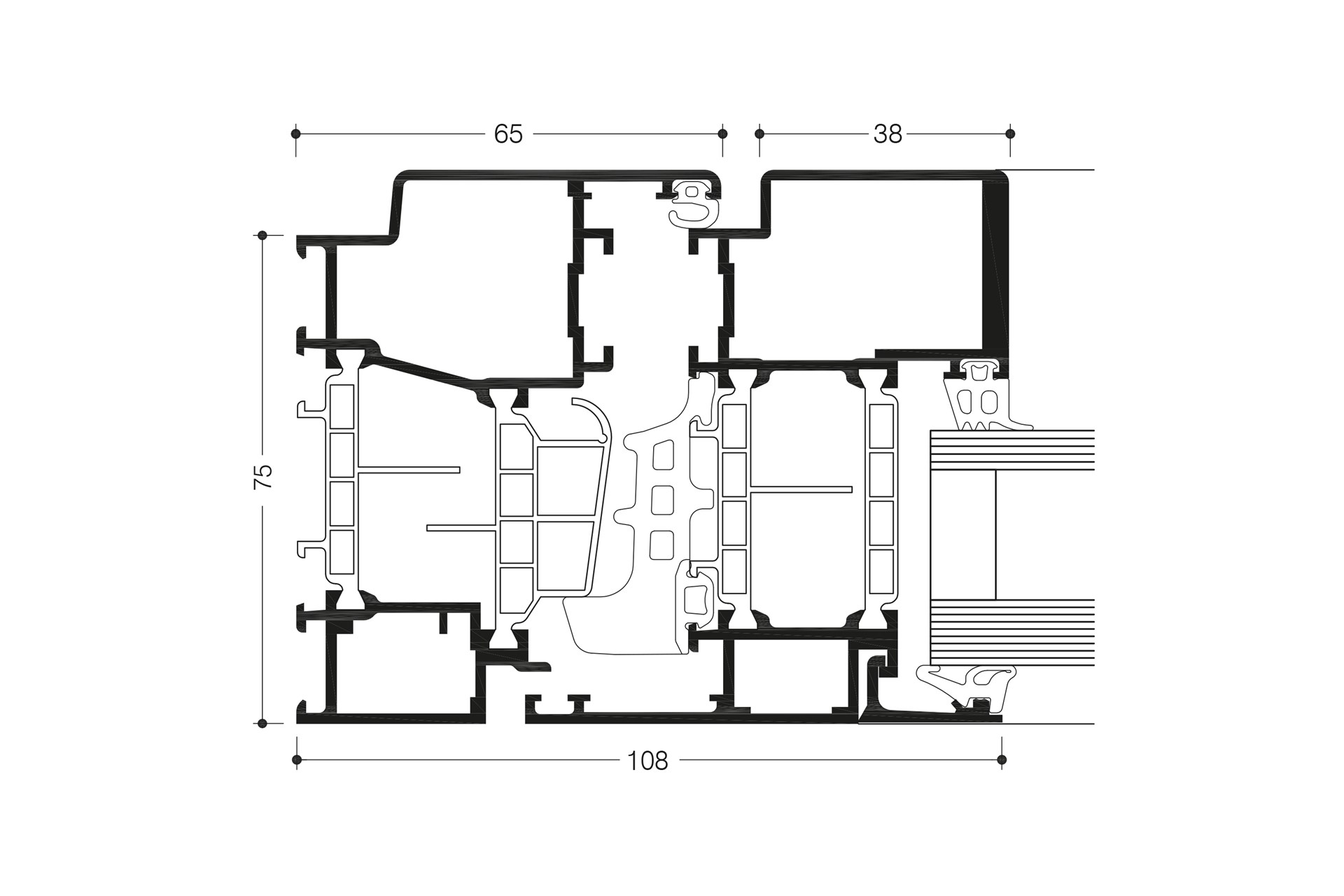
Caractéristiques techniques
Description de la construction
- Système multi-chambres hautement isolé thermiquement
- Technologie brevetée d’angle et de connexion T pour une stabilité élevée des composants
- Épaisseur de remplissage : jusqu’à 69 mm
- Joint central à deux composants haute densité
- Facultatif : avec profil de pince pour l’intégration dans les façades de style-ligne
concept de joint
- Joint central pour une étanchéité supérieure et une meilleure isolation thermique
Options
- Charnières visibles à l’extérieur, en option :
- en haut pour les fenêtres d’extension
- sur le côté pour les fenêtres rotatives
- Fonctionnement manuel ou automatisé
- Max. poids de l’aile: 150 kg
- Max. dimensions de l’aile (B x H): 2000 mm x 2000 mm
- Contrôle intégré des selles






